- Home
- Producten
- Brandwerende manchetten
- MG2-A U
- Installatie
MG2-A U - Installatie
Plaatsing in massieve wand en vloer
Het product werd getest en goedgekeurd in:
- zie classificatieoverzicht in prestatieverklaring.
- Draagconstructies met een hogere densiteit en/of dikte zijn eveneens toegelaten, zoals beschreven in EN 1366-3.
Plaats de door te voeren buis.
Houd het uiteinde van de manchet vast en plooi met de andere hand de manchet rond de buis.
Sluit de manchet door de metalen lip door de voorziene opening te schuiven. Vervolgens de pootjes van de sluiting in elkaar schuiven (links bovenop de rechtse sluiting). Plooi de metalen lip over naar rechts om de manchet te sluiten.
Houd het uiteinde van de manchet vast en plooi met de andere hand de manchet rond de buis.
Sluit de manchet door de metalen lip door de voorziene opening te schuiven. Vervolgens de pootjes van de sluiting in elkaar schuiven (links bovenop de rechtse sluiting). Plooi de metalen lip over naar rechts om de manchet te sluiten.
Massieve beton: Breng keilbouten aan in de voorgeboorde gaten Ø 6mm en klop vast. Cellenbeton: Gebruik universele schroeven M6.
Plaatsing in flexibele wand (metal stud en gipskartonplaten)
Het product werd getest en goedgekeurd in:
- zie classificatieoverzicht in prestatieverklaring.
- Draagconstructies met een hogere densiteit en/of dikte zijn eveneens toegelaten, zoals beschreven in EN 1366-3.
Bevestig twee GKF gipsplaten dikte 12,5 mm langs één zijde van de metal studwand.
Voorzie in de wand een inbouwopening Ød mm.
Voorzie in de wand een inbouwopening Ød mm.
Plaats de door te voeren buis.
Houd het uiteinde van de manchet vast en plooi met de andere hand de manchet rond de buis.
Sluit de manchet door de metalen lip door de voorziene opening te schuiven. Vervolgens de pootjes van de sluiting in elkaar schuiven (links bovenop de rechtse sluiting). Plooi de metalen lip over naar rechts om de manchet te sluiten.
Houd het uiteinde van de manchet vast en plooi met de andere hand de manchet rond de buis.
Sluit de manchet door de metalen lip door de voorziene opening te schuiven. Vervolgens de pootjes van de sluiting in elkaar schuiven (links bovenop de rechtse sluiting). Plooi de metalen lip over naar rechts om de manchet te sluiten.
Plaatsing in flexibele wand (metal stud en gipskartonplaten) met schroeven
Het product werd getest en goedgekeurd in:
- zie classificatieoverzicht in prestatieverklaring.
- Draagconstructies met een hogere densiteit en/of dikte zijn eveneens toegelaten, zoals beschreven in EN 1366-3.
De flexibele wand is opgebouwd uit 2 lagen gipskartonplaten type A (GKB) met een dikte van 12,5mm aan beide kanten van de metal stud.
Voorzie in de wand een inbouwopening van ød mm (tot ød + 5mm).
Voorzie in de wand een inbouwopening van ød mm (tot ød + 5mm).
Plaats de door te voeren buis.
Houd het uiteinde van de manchet vast en plooi met de andere hand de manchet rond de buis.
Sluit de manchet door de metalen lip door de voorziene opening te schuiven. Vervolgens de pootjes van de sluiting in elkaar schuiven (links bovenop de rechtse sluiting). Plooi de metalen lip over naar rechts om de manchet te sluiten.
Houd het uiteinde van de manchet vast en plooi met de andere hand de manchet rond de buis.
Sluit de manchet door de metalen lip door de voorziene opening te schuiven. Vervolgens de pootjes van de sluiting in elkaar schuiven (links bovenop de rechtse sluiting). Plooi de metalen lip over naar rechts om de manchet te sluiten.
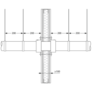
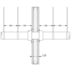
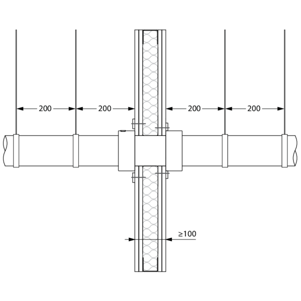
Algemene opmerkingen
- De plaatsing dient steeds te gebeuren conform het installatievoorschrift en het classificatierapport.
- Ondersteuning van de leiding is noodzakelijk om een functionele werking van de afdichting te garanderen in geval van brand. De leidingen moeten ondersteund en bevestigd worden volgens de regels van goed vakmanschap. Hiervoor verwijzen we naar de voorschriften van de fabrikant van de leidingen.
- Wanneer de sparing groter is dan vermeld, dient men de opening in de wand/vloer te verkleinen met hetzelfde materiaal als de wand/vloer.