MG2-A U - Einbau

Einbau in Massivwand und Decke

Das Produkt wurde in den folgenden Wand- und Deckentypen geprüft und zugelassen:
  • Siehe die Klassifizierungsübersicht in der Leistungserklärung.

Einbau in Leichtbauwand (Metallständer und Gipskartonplatten) mit IFW-Einbausatz

Das Produkt wurde in den folgenden Wand- und Deckentypen geprüft und zugelassen:
  • Siehe die Klassifizierungsübersicht in der Leistungserklärung.

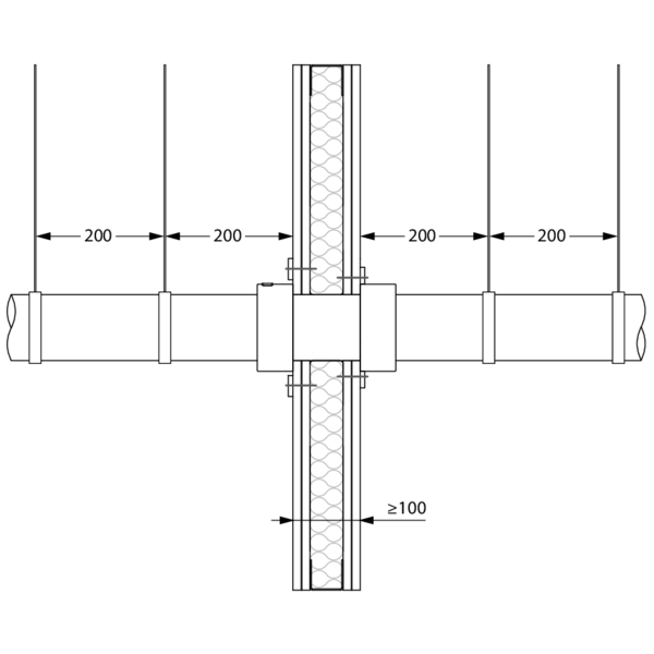
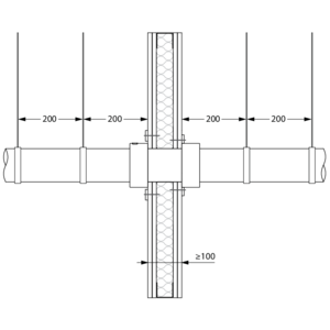
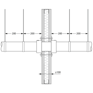
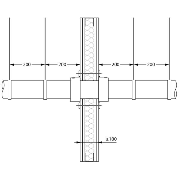
Einbau in Leichtbauwand (Metallständerwand und Gipskartonplatten) mit Schrauben

Das Produkt wurde in den folgenden Wand- und Deckentypen geprüft und zugelassen:
  • Siehe die Klassifizierungsübersicht in der Leistungserklärung.
1
Die Leichtbauwand besteht aus 2 Lagen Gipskartonplatten Typ A (GKB) mit einer Dicke von 12,5 mm auf beiden Seiten des Metallständers.
Sehen Sie eine Einbauöffnung in der Wand von ød mm (bis zu ød + 5mm) vor.
3
Das MG2-A U kann mit 40mm Schrauben befestigt werden.

Die Schrauben müssen nicht in einer Linie angebracht werden.

Allgemeine Bemerkungen

  • Die Klappe muss entsprechend dem Klassifizierungsbericht und der Installationsanweisung installiert werden
  • Die Abstützung der Rohre ist notwendig, um die Funktionstüchtigkeit der Abdichtung im Brandfall zu gewährleisten. Die Rohre sollten nach den allgemein anerkannten Regeln der Technik abgestützt und befestigt werden. Bitte beachten Sie hierzu die Anweisungen des Rohrherstellers.
  • Wenn die Spalte größer als angegeben ist, verkleinern Sie den Wanddurchbruch in der Decke mit dem gleichen Material wie die Wand.