- Home
- Products
- Fire resistant collars
- MG2-A U
- Installation
MG2-A U - Installation
Installation in rigid wall and floor
The product was tested and approved in:
- see the classification overview in the Declaration of Performance.
- Mounting is authorised in supporting constructions with a thickness and/or density equal or superior to the supporting construction used during the test, as described in EN 1366-3.
Place the plastic pipe.
Keep one end of the collar in place with one hand whilst bending the collar around the pipe with the other hand.
In order to close the collar, place the metallic flap through the foreseen opening. Then place the anchors on top of each other. Fold the flap back to the right to close the collar.
Keep one end of the collar in place with one hand whilst bending the collar around the pipe with the other hand.
In order to close the collar, place the metallic flap through the foreseen opening. Then place the anchors on top of each other. Fold the flap back to the right to close the collar.
Installation in flexible wall (metal stud and plasterboard)
The product was tested and approved in:
- see the classification overview in the Declaration of Performance.
- Mounting is authorised in supporting constructions with a thickness and/or density equal or superior to the supporting construction used during the test, as described in EN 1366-3.
Fix two gypsum boards type F with a tickness of 12,5 mm to one side of the metal stud wall.
Provide an installation opening of Ød mm.
Provide an installation opening of Ød mm.
Place the plastic pipe.
Keep one end of the collar in place with one hand whilst bending the collar around the pipe with the other hand.
In order to close the collar, place the metallic flap through the foreseen opening. Then place the anchors on top of each other. Fold the flap back to the right to close the collar.
Keep one end of the collar in place with one hand whilst bending the collar around the pipe with the other hand.
In order to close the collar, place the metallic flap through the foreseen opening. Then place the anchors on top of each other. Fold the flap back to the right to close the collar.
Installation in flexible wall (metal stud and plasterboard) with screws
The product was tested and approved in:
- see the classification overview in the Declaration of Performance.
- Mounting is authorised in supporting constructions with a thickness and/or density equal or superior to the supporting construction used during the test, as described in EN 1366-3.
The flexible wall is made of two layers of gypsum board type A (GKB) with a thickness of 12,5 mm on each side of the metal stud.
Provide an installation opening of ød mm (up to ød + 5mm).
Provide an installation opening of ød mm (up to ød + 5mm).
Place the plastic pipe.
Keep one end of the collar in place with one hand whilst bending the collar around the pipe with the other hand.
In order to close the collar, place the metallic flap through the foreseen opening. Then place the anchors on top of each other. Fold the flap back to the right to close the collar.
Keep one end of the collar in place with one hand whilst bending the collar around the pipe with the other hand.
In order to close the collar, place the metallic flap through the foreseen opening. Then place the anchors on top of each other. Fold the flap back to the right to close the collar.
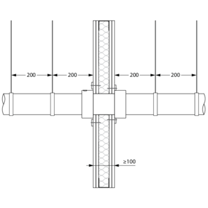
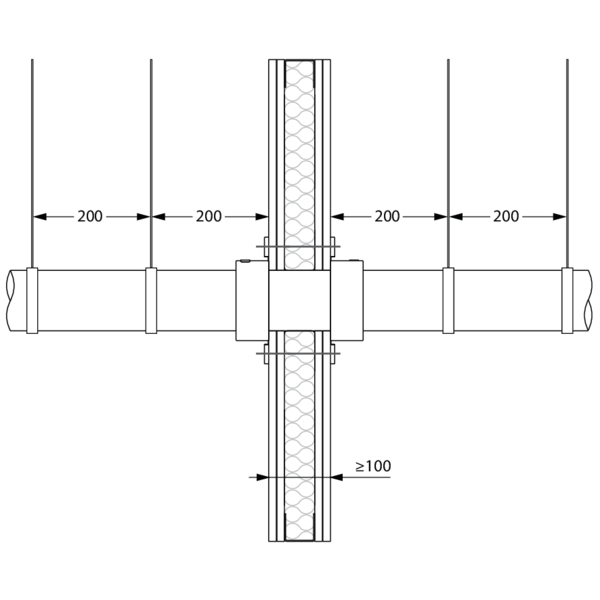
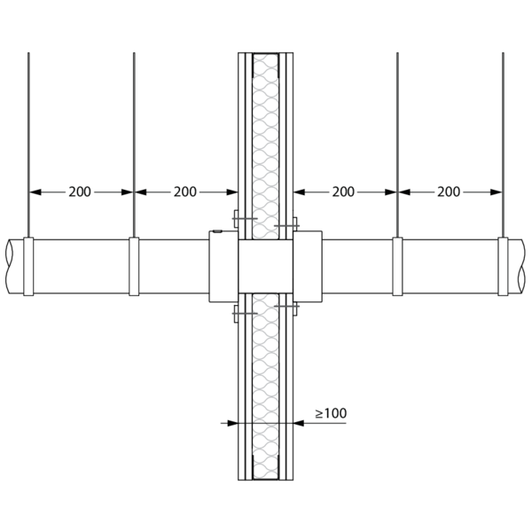
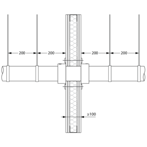
General remarks
- The installation must comply with the installation manual and the classification report.
- The pipe must be supported in order to guarantee the well-functioning of the sealing during a fire. Supports and fastenings should be realised according to the rules of good craftsmanship. For this, please refer to the pipe manufacturer's instructions.
- If the recess is larger than stated, reduce the opening in the wall/floor using the same material as the wall/floor.