- Home
- Produits
- Manchons coupe-feu
- MG2-A U
- Installation
MG2-A U - Installation
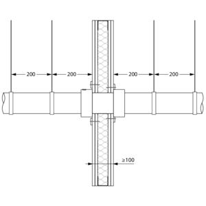
Montage en paroi et dalle massive
Le produit a été testé et approuvé en :
- voir l'aperçu des classements dans la Déclaration des Performances.
- L'installation est autorisée dans des parois qui ont une épaisseur et/ou densité similaire ou supérieure à celle du test, comme décrit dans la norme EN 1366-3.
Placez le tuyau.
Tenez l'extrémité du manchon d’une main et pliez le manchon autour du tuyau avec l'autre main.
Pour fermer le manchon, glissez la languette métallique à travers la réservation prévue, puis superposez les pattes de fixations (gauche sur droite). Pliez ensuite languette vers la droite pour fermer le manchon.
Tenez l'extrémité du manchon d’une main et pliez le manchon autour du tuyau avec l'autre main.
Pour fermer le manchon, glissez la languette métallique à travers la réservation prévue, puis superposez les pattes de fixations (gauche sur droite). Pliez ensuite languette vers la droite pour fermer le manchon.
Béton massif: Insérez des boulons dans les réservations préperforées de Ø 6mm et fixez-les Béton cellulaire: Utilisez des vis universelles M6.
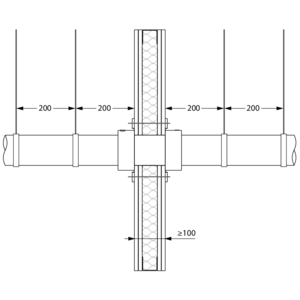
Montage en paroi flexible (ossature métallique et plaques de plâtre)
Le produit a été testé et approuvé en :
- voir l'aperçu des classements dans la Déclaration des Performances.
- L'installation est autorisée dans des parois qui ont une épaisseur et/ou densité similaire ou supérieure à celle du test, comme décrit dans la norme EN 1366-3.
Fixez deux plaques de plâtre type GKF d’épaisseur 12,5 mm d'un côté de la paroi.
Prévoyez une réservation de Ød mm dans la paroi.
Prévoyez une réservation de Ød mm dans la paroi.
Placez le tuyau.
Tenez l'extrémité du manchon d’une main et pliez le manchon autour du tuyau avec l'autre main.
Pour fermer le manchon, glissez la languette métallique à travers la réservation prévue, puis superposez les pattes de fixations (gauche sur droite). Pliez ensuite languette vers la droite pour fermer le manchon.
Tenez l'extrémité du manchon d’une main et pliez le manchon autour du tuyau avec l'autre main.
Pour fermer le manchon, glissez la languette métallique à travers la réservation prévue, puis superposez les pattes de fixations (gauche sur droite). Pliez ensuite languette vers la droite pour fermer le manchon.
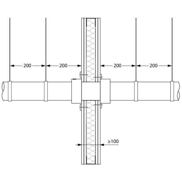
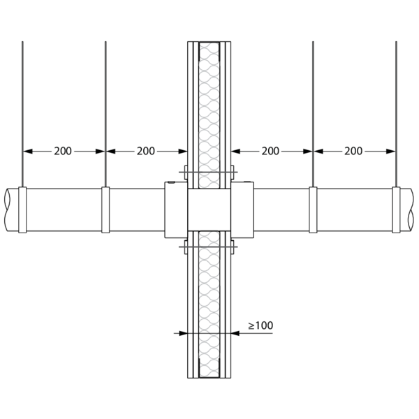
Montage en paroi flexible (ossature métallique et plaques de plâtre), fixation avec vis
Le produit a été testé et approuvé en :
- voir l'aperçu des classements dans la Déclaration des Performances.
- L'installation est autorisée dans des parois qui ont une épaisseur et/ou densité similaire ou supérieure à celle du test, comme décrit dans la norme EN 1366-3.
La paroi flexible est composée de deux plaques de plâtre du type A (GKB) avec une épaisseur de 12,5 mm, posées des deux côtés de l’ossature métallique.
Prévoyez une réservation de ød mm (max. ød + 5mm).
Prévoyez une réservation de ød mm (max. ød + 5mm).
Placez le tuyau.
Tenez l'extrémité du manchon d’une main et pliez le manchon autour du tuyau avec l'autre main.
Pour fermer le manchon, glissez la languette métallique à travers la réservation prévue, puis superposez les pattes de fixations (gauche sur droite). Pliez ensuite languette vers la droite pour fermer le manchon.
Tenez l'extrémité du manchon d’une main et pliez le manchon autour du tuyau avec l'autre main.
Pour fermer le manchon, glissez la languette métallique à travers la réservation prévue, puis superposez les pattes de fixations (gauche sur droite). Pliez ensuite languette vers la droite pour fermer le manchon.
Remarques générales
- L'installation doit être conforme au rapport de classement et à la notice technique.
- Le tuyau doit être supporté afin de pouvoir garantir le bon fonctionnement du colmatage lors d’un incendie. Les supports et fixations seront réalisés suivant les règles de l’art. Pour ce faire, veuillez vous référer aux instructions du fabricant du tuyau.
- Si la réservation est plus grande que ce qui est indiqué, réduisez la réservation dans le mur/le dalle en utilisant le même matériau que le mur/le dalle.