- Home
- Produkter
- Rökkontrollspjäll
- VUW120
- Montering
VUW120 - Montering
Montering med minsta avstånd till ett annat rökkontrollspjäll eller till en intilliggande vägg/ett intilliggande golv
Den europeiska provningsstandarden EN 1366-10 anger det minsta avstånd som krävs mellan 2 rökkontrollspjäll och mellan ett rökkontrollspjäll och en angränsande (bärande) struktur när det används vid en kompartimentsgräns (väggmonterad klassificering):
- 200 mm mellan 2 rökkontrollspjäll (mätt från spjälltunnel till spjälltunnel, exklusive anslutningsflänsar)
- 75 mm mellan ett rökkontrollspjäll och en angränsande (bärande) konstruktion (mätt från spjälltunnel, exklusive anslutningsflänsar)
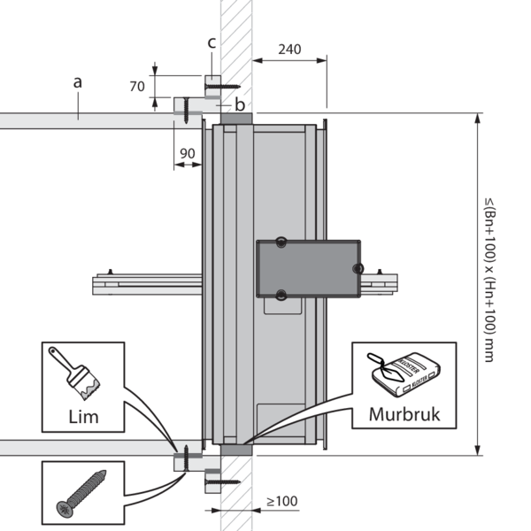
Montering i betongvägg
Produkten testades och godkändes i:
- Lättbetong ≥ 100 mm | EI 120 (vew i o) S 1500 AA multi C10000 | Murbruk | Typ av montage: infällt 0/180° | 300x300 mm ≤ VUW120 ≤ 1500x1000 mm
Gör erforderliga öppningar ≤ (nominell bredd + 100 mm) x (nominell höjd + 100 mm) i väggen.
Montera spjället i öppningen.
Täta resten av öppningen med standardmurbruk.
Montera spjället i öppningen.
Täta resten av öppningen med standardmurbruk.
Montering i en eller flera brandceller
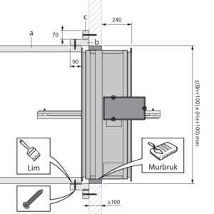
På flerfackssidan:
Anslut spjället till en rökkanal, testad enligt EN 1366-8, med en klassificering på EI120S -1500/+500Pa.
Exempel: Promatect L500 ≥ 50 mm Kanallim: Promat K84 Skruvar: ø5x90 med gänga
Placera rökkanalen (a) mot spjällets fläns. En ram (b), tillverkad av samma material, ansluter kanalen till väggen. Denna ram har en överlappning på kanalen på minst 90 mm. Fäst ramen i kanalen med skruvar (ø5x90 mm) var 150:e mm och passande kanallim. En andra ram (c) 70 mm hög, tillverkad av samma kanalmaterial, skruvas fast i väggen med skruvar som är lämpliga för den tillämpningen.
Andra möjliga typer av rökkanaler (listan är inte uttömmande): - Geotec - Geoflam (Light) - Rökkanalsystem av stål - ...
Anslut spjället till en rökkanal, testad enligt EN 1366-8, med en klassificering på EI120S -1500/+500Pa.
Exempel: Promatect L500 ≥ 50 mm Kanallim: Promat K84 Skruvar: ø5x90 med gänga
Placera rökkanalen (a) mot spjällets fläns. En ram (b), tillverkad av samma material, ansluter kanalen till väggen. Denna ram har en överlappning på kanalen på minst 90 mm. Fäst ramen i kanalen med skruvar (ø5x90 mm) var 150:e mm och passande kanallim. En andra ram (c) 70 mm hög, tillverkad av samma kanalmaterial, skruvas fast i väggen med skruvar som är lämpliga för den tillämpningen.
Andra möjliga typer av rökkanaler (listan är inte uttömmande): - Geotec - Geoflam (Light) - Rökkanalsystem av stål - ...
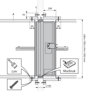
Installation med användning för flera brandceller på båda sidor
Anslut spjället till en rökkanal på båda sidor, testad enligt EN 1366-8, med en klassificering på EI120S -1500/+500Pa.
Exempel: Promatect L500 ≥ 50 mm Kanallim: Promat K84 Skruvar: ø5x90 med gänga
Placera rökkanalen (a) mot spjällets fläns. En ram (b), tillverkad av samma material, ansluter kanalen till väggen. Denna ram har en överlappning på kanalen på minst 90 mm. Fäst ramen i kanalen med skruvar (ø5x90 mm) var 150:e mm och passande kanallim. En andra ram (c) 70 mm hög, tillverkad av samma kanalmaterial, skruvas fast i väggen med skruvar som är lämpliga för den tillämpningen.
Andra möjliga typer av rökkanaler (listan är inte uttömmande): - Geotec - Geoflam (Light) - Rökkanalsystem av stål - ...
Exempel: Promatect L500 ≥ 50 mm Kanallim: Promat K84 Skruvar: ø5x90 med gänga
Placera rökkanalen (a) mot spjällets fläns. En ram (b), tillverkad av samma material, ansluter kanalen till väggen. Denna ram har en överlappning på kanalen på minst 90 mm. Fäst ramen i kanalen med skruvar (ø5x90 mm) var 150:e mm och passande kanallim. En andra ram (c) 70 mm hög, tillverkad av samma kanalmaterial, skruvas fast i väggen med skruvar som är lämpliga för den tillämpningen.
Andra möjliga typer av rökkanaler (listan är inte uttömmande): - Geotec - Geoflam (Light) - Rökkanalsystem av stål - ...
Se till att det finns en skyddad öppning för åtkomst till ställdonet.
Exempel (ej uttömmande - se 1.): Promatect L500 ≥ 50 mm
Gör en öppning i ramen (d) på 230 x 110 mm. Gör en täckplatta (e) på 280 x 210 mm av samma kanalmaterial för att täcka ställdonet (fäst med 4 skruvar ø5x90 mm). Täta öppningen runt strömkablarna med en brandsäker mastix (t.ex. BMS).
Exempel (ej uttömmande - se 1.): Promatect L500 ≥ 50 mm
Gör en öppning i ramen (d) på 230 x 110 mm. Gör en täckplatta (e) på 280 x 210 mm av samma kanalmaterial för att täcka ställdonet (fäst med 4 skruvar ø5x90 mm). Täta öppningen runt strömkablarna med en brandsäker mastix (t.ex. BMS).
Allmänna kommentarer
- Spjället ska installeras i enlighet med montageanvisningen och provningsrapporten.
- Montering av rökgasevakueringskanal måste överensstämma med klassificeringsrapporten från tillverkaren.
- Position spjällaxel: se prestandadeklarationen.
- Undvik blockering av angränsande rökgasevakueringskanaler.
- Kontrollera att bladet kan rör sig fritt.
- Rf-t rökkkontrollspjäll kan användas i kanaler som har testats enligt SS-EN 1366-8 och SS-EN 1366-9.
- Tänk på att: vid montering ska produkten hanteras med försiktighet och förbli skyddad från eventuella tätningsprodukter.
- Tänk på att: rengör all eventuellt damm och smuts innan installationen tas i drift.
- Tänk på att: se till att bladet får plats inuti rökevakueringskanaler.