- Home
- Producten
- Rookbeheersingskleppen
- VUW120
- Installatie
VUW120 - Installatie
Plaatsing op minimale afstanden van een andere rookbeheersingsklep of van een aanpalende wand/vloer
De Europese testnorm EN 1366-10 bepaalt de minimaal vereiste afstand tussen 2 rookbeheersingskleppen en tussen een rookbeheersingsklep en een andere (draag)constructie bij toepassing op een compartimentsgrens (wall mounted classificatie):
- 200 mm tussen 2 rookbeheersingskleppen (gemeten van kleptunnel tot kleptunnel, zonder de aansluitingsflenzen in rekening te nemen)
- 75 mm tussen een rookbeheersingsklep en een andere (draag)constructie (gemeten vanaf de kleptunnel, zonder de aansluitingsflenzen in rekening te nemen)
Plaatsing in massieve wand
Het product werd getest en goedgekeurd in:
- Cellenbeton ≥ 100 mm | EI 120 (vew i o) S 1500 AA multi C10000 | Mortel | Installatiemethode: ingebouwd 0/180° | 300x300 mm ≤ VUW120 ≤ 1500x1000 mm
Plaatsing in een applicatie met multi- / single-compartiment
Aan de multi-compartimentzijde:
Sluit de klep aan op een rookbeheersingskanaal, getest volgens EN 1366-8, met een classificatie van EI120S -1500/+500Pa.
Voorbeeld: Promatect L500 ≥ 50 mm Kanaallijm: Promat K84 Schroeven: ø5x90 met draad
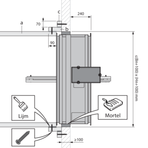
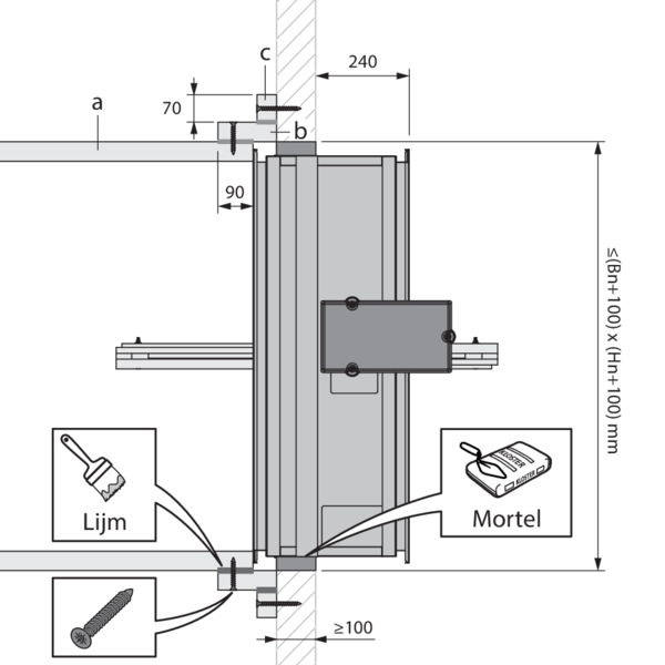
Plaats het rookbeheersingskanaal (a) tegen de flens van de klep. Een frame (b), gemaakt van hetzelfde materiaal, verbindt het kanaal met de muur. Dit frame heeft een overlap op het kanaal van minimaal 90 mm. Bevestig het frame aan het kanaal met schroeven (ø5x90 mm) om de 150 mm en bijhorende kanaallijm. Een tweede frame (c) van 70 mm hoogte, gemaakt van hetzelfde kanaalmateriaal, wordt tegen de muur geschroefd met schroeven geschikt voor die toepassing.
Andere types rookbeheersingskanalen die in aanmerking komen (lijst niet limitatief): - Geotec - Geoflam (Light) - Systeem met stalen kanalen - ...
Sluit de klep aan op een rookbeheersingskanaal, getest volgens EN 1366-8, met een classificatie van EI120S -1500/+500Pa.
Voorbeeld: Promatect L500 ≥ 50 mm Kanaallijm: Promat K84 Schroeven: ø5x90 met draad
Plaats het rookbeheersingskanaal (a) tegen de flens van de klep. Een frame (b), gemaakt van hetzelfde materiaal, verbindt het kanaal met de muur. Dit frame heeft een overlap op het kanaal van minimaal 90 mm. Bevestig het frame aan het kanaal met schroeven (ø5x90 mm) om de 150 mm en bijhorende kanaallijm. Een tweede frame (c) van 70 mm hoogte, gemaakt van hetzelfde kanaalmateriaal, wordt tegen de muur geschroefd met schroeven geschikt voor die toepassing.
Andere types rookbeheersingskanalen die in aanmerking komen (lijst niet limitatief): - Geotec - Geoflam (Light) - Systeem met stalen kanalen - ...
Plaatsing in een applicatie met multi-compartiment aan beide zijden
Sluit de klep aan beide zijden aan op een rookbeheersingskanaal, getest volgens EN 1366-8, met een classificatie van EI120S -1500/+500Pa.
Voorbeeld: Promatect L500 ≥ 50 mm Kanaallijm: Promat K84 Schroeven: ø5x90 met draad
Plaats het rookbeheersingskanaal (a) tegen de flens van de klep. Een frame (b), gemaakt van hetzelfde materiaal, verbindt het kanaal met de muur. Dit frame heeft een overlap op het kanaal van minimaal 90 mm. Bevestig het frame aan het kanaal met schroeven (ø5x90 mm) om de 150 mm en bijhorende kanaallijm. Een tweede frame (c) van 70 mm hoogte, gemaakt van hetzelfde kanaalmateriaal, wordt tegen de muur geschroefd met schroeven geschikt voor die toepassing.
Andere types rookbeheersingskanalen die in aanmerking komen (lijst niet limitatief): - Geotec - Geoflam (Light) - Systeem met stalen kanalen - ...
Voorbeeld: Promatect L500 ≥ 50 mm Kanaallijm: Promat K84 Schroeven: ø5x90 met draad
Plaats het rookbeheersingskanaal (a) tegen de flens van de klep. Een frame (b), gemaakt van hetzelfde materiaal, verbindt het kanaal met de muur. Dit frame heeft een overlap op het kanaal van minimaal 90 mm. Bevestig het frame aan het kanaal met schroeven (ø5x90 mm) om de 150 mm en bijhorende kanaallijm. Een tweede frame (c) van 70 mm hoogte, gemaakt van hetzelfde kanaalmateriaal, wordt tegen de muur geschroefd met schroeven geschikt voor die toepassing.
Andere types rookbeheersingskanalen die in aanmerking komen (lijst niet limitatief): - Geotec - Geoflam (Light) - Systeem met stalen kanalen - ...
Voorzie een beschermde opening voor toegang tot de actuator.
Voorbeeld (niet limitatief - zie 1.): Promatect L500 ≥ 50 mm
Maak een opening in het frame (d) van 230 x 110 mm. Maak een afdekplaat (e) van 280 x 210 mm gemaakt van hetzelfde kanaalmateriaal om de actuator af te dekken (bevestig met 4 schroeven van ø5x90 mm). Dicht de opening rond de elektriciteitskabels af met een brandwerende mastiek (bijv. BMS).
Voorbeeld (niet limitatief - zie 1.): Promatect L500 ≥ 50 mm
Maak een opening in het frame (d) van 230 x 110 mm. Maak een afdekplaat (e) van 280 x 210 mm gemaakt van hetzelfde kanaalmateriaal om de actuator af te dekken (bevestig met 4 schroeven van ø5x90 mm). Dicht de opening rond de elektriciteitskabels af met een brandwerende mastiek (bijv. BMS).
Algemene opmerkingen
- De plaatsing dient steeds te gebeuren conform het installatievoorschrift en het classificatierapport.
- De plaatsing van het rookbeheersingskanaal dient steeds te gebeuren conform het classificatierapport van de fabrikant.
- As oriëntatie: zie prestatieverklaring.
- Vermijd obstructie van aansluitende rookbeheersingskanalen.
- Kijk na of het klepblad vrij kan bewegen.
- Rf-t rookbeheersingskleppen mogen geplaatst worden in rookbeheersingskanalen die, naar gelang het geval, getest werden volgens EN 1366-8 en EN 1366-9.
- Opgelet: tijdens de plaatsing moet het product voorzichtig behandeld worden en beschermd blijven tegen afdichtingsproducten.
- Opgelet: voor het opstarten van het systeem moeten stof en vuil verwijderd worden.
- Opgelet: hou rekening met de minimale vrije ruimte bij het openen van het klepblad.