- Home
- Produits
- Volets de désenfumage
- VUW120
- Installation
VUW120 - Installation
Montage à distances minimales d'un autre volet de désenfumage ou d'une paroi/dalle adjacent.
La norme d'essai européenne EN 1366-10 spécifie la distance minimale requise entre deux volets de désenfumage et entre un volet de désenfumage et une construction support adjacente (paroi/dalle) lorsqu'ils sont utilisés à la limite d'un compartiment (classification en limite de compartiment) :
- 200 mm entre 2 volets de désenfumage (mesuré d'un tunnel à l'autre, sans compter les brides de raccordement).
- 75 mm entre un volet de désenfumage et une construction support adjacente (paroi/dalle) (mesuré à partir du tunnel du volet, sans compter les brides de raccordement)
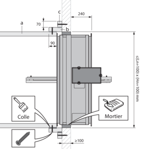
Montage en paroi massive
Le produit a été testé et approuvé en :
- Béton cellulaire ≥ 100 mm | EI 120 (vew i o) S 1500 AA multi C10000 | Mortier | Type de pose : encastré 0/180° | 300x300 mm ≤ VUW120 ≤ 1500x1000 mm
Prévoyez dans la paroi les réservations nécessaires ≤ (Ln + 100 mm) x (Hn + 100 mm).
Positionnez le volet dans la réservation.
Colmatez le reste de la réservation à l’aide de mortier standard.
Positionnez le volet dans la réservation.
Colmatez le reste de la réservation à l’aide de mortier standard.
Installation dans une application avec conduits multi- / mono-compartiment
Du côté multi-compartiment :
Raccorder le volet à un conduit de désenfumage, testé conformément à la norme EN 1366-8, avec un classement de EI120S -1500/+500Pa.
Exemple : Promatect L500 ≥ 50 mm Adhésif pour conduits : Promat K84 Vis : ø5x90 avec filetage
Placer le conduit de désenfumage (a) contre la bride du volet. Un cadre (b), fabriqué dans le même matériau, relie le conduit au mur. Ce cadre présente un chevauchement sur le conduit d'au moins 90 mm. Fixer le cadre au conduit à l'aide de vis (ø5x90 mm) tous les 150 mm et d'une colle à conduit adaptée. Un second cadre (c) de 70 mm de haut, fabriqué dans le même matériau que le conduit, est fixé au mur à l'aide de vis adaptées à cette application.
Autres types de conduits de désenfumage (liste non exhaustive) : - Geotec - Geoflam (Light) - Conduit en acier - ...
Raccorder le volet à un conduit de désenfumage, testé conformément à la norme EN 1366-8, avec un classement de EI120S -1500/+500Pa.
Exemple : Promatect L500 ≥ 50 mm Adhésif pour conduits : Promat K84 Vis : ø5x90 avec filetage
Placer le conduit de désenfumage (a) contre la bride du volet. Un cadre (b), fabriqué dans le même matériau, relie le conduit au mur. Ce cadre présente un chevauchement sur le conduit d'au moins 90 mm. Fixer le cadre au conduit à l'aide de vis (ø5x90 mm) tous les 150 mm et d'une colle à conduit adaptée. Un second cadre (c) de 70 mm de haut, fabriqué dans le même matériau que le conduit, est fixé au mur à l'aide de vis adaptées à cette application.
Autres types de conduits de désenfumage (liste non exhaustive) : - Geotec - Geoflam (Light) - Conduit en acier - ...
Installation dans une application avec conduits multi-compartiment des deux côtés
Raccorder le volet à un conduit de désenfumage des deux côtés, testé conformément à la norme EN 1366-8, avec un classement de EI120S -1500/+500Pa.
Exemple : Promatect L500 ≥ 50 mm Adhésif pour conduits : Promat K84 Vis : ø5x90 avec filetage
Placer le conduit de désenfumage (a) contre la bride du volet. Un cadre (b), fabriqué dans le même matériau, relie le conduit au mur. Ce cadre présente un chevauchement sur le conduit d'au moins 90 mm. Fixer le cadre au conduit à l'aide de vis (ø5x90 mm) tous les 150 mm et d'une colle à conduit adaptée. Un second cadre (c) de 70 mm de haut, fabriqué dans le même matériau que le conduit, est fixé au mur à l'aide de vis adaptées à cette application.
Autres types de conduits de désenfumage (liste non exhaustive) : - Geotec - Geoflam (Light) - Conduit en acier - ...
Exemple : Promatect L500 ≥ 50 mm Adhésif pour conduits : Promat K84 Vis : ø5x90 avec filetage
Placer le conduit de désenfumage (a) contre la bride du volet. Un cadre (b), fabriqué dans le même matériau, relie le conduit au mur. Ce cadre présente un chevauchement sur le conduit d'au moins 90 mm. Fixer le cadre au conduit à l'aide de vis (ø5x90 mm) tous les 150 mm et d'une colle à conduit adaptée. Un second cadre (c) de 70 mm de haut, fabriqué dans le même matériau que le conduit, est fixé au mur à l'aide de vis adaptées à cette application.
Autres types de conduits de désenfumage (liste non exhaustive) : - Geotec - Geoflam (Light) - Conduit en acier - ...
Prévoir une réservation protégée pour l'accès au moteur.
Exemple (non exhaustif - voir 1.): Promatect L500 ≥ 50 mm
Faire une réservation dans le cadre (d) de 230 x 110 mm. Fabriquer une plaque de recouvrement (e) de 280 x 210 mm dans le même matériau de conduit pour recouvrir le moteur (fixer avec 4 vis ø5x90 mm). Sceller la réservation autour des câbles d'alimentation avec un mastic coupe-feu (par exemple BMS).
Exemple (non exhaustif - voir 1.): Promatect L500 ≥ 50 mm
Faire une réservation dans le cadre (d) de 230 x 110 mm. Fabriquer une plaque de recouvrement (e) de 280 x 210 mm dans le même matériau de conduit pour recouvrir le moteur (fixer avec 4 vis ø5x90 mm). Sceller la réservation autour des câbles d'alimentation avec un mastic coupe-feu (par exemple BMS).
Remarques générales
- L'installation doit être conforme au rapport de classement et à la notice technique.
- Le montage de le conduit de désenfumage doit être conforme au rapport de classement du fabricant.
- Orientation de l'axe: voir déclaration des performances.
- Évitez l’obstruction des conduits de désenfumage connectées.
- Vérifiez le libre mouvement de la lame mobile.
- Les volets de désenfumage Rf-t peuvent être appliqués à des conduits de désenfumage soumis à des essais conformément à l'EN 1366-8 et à l'EN 1366-9 selon le cas.
- Attention : lors de la pose, le produit doit être manipulé avec précaution et protégé de toute projection de produits de calfeutrement.
- Attention : à la mise en route de l'installation, nettoyez l'ensemble des poussières et salissures.
- Attention : pour le montage en conduit de désenfumage tenez compte du débattement du volet.