MG2-A - Installatie

Plaatsing in massieve wand en vloer

Het product werd getest en goedgekeurd in:
  • zie classificatieoverzicht in prestatieverklaring.
  • Draagconstructies met een hogere densiteit en/of dikte zijn eveneens toegelaten, zoals beschreven in EN 1366-3.
1
Voorzie een inbouwopening Ød mm.
2
Houd het uiteinde van de manchet vast en plooi met de andere hand de manchet rond de buis.
Klik de pootjes van de sluiting in elkaar, sluiting rechts bovenop linkse sluiting.
3
Massieve beton: Breng keilbouten aan in de voorgeboorde gaten Ø 6mm en klop vast. Cellenbeton: Gebruik universele schroeven M6.
Plaats de tweede manchet op dezelfde manier aan de andere kant van de wand.
Kleef het etiket in de buurt van de manchet.
5
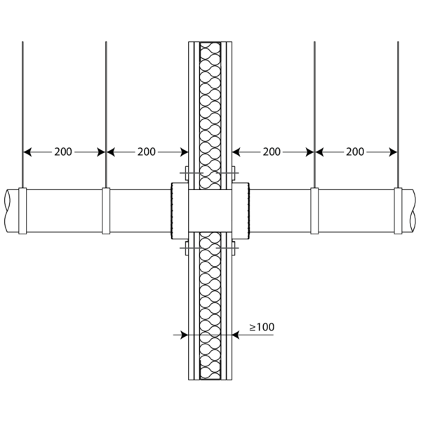
Eén manchet aan de onderzijde van de vloer volstaat voor doorvoeringen doorheen een massieve vloer.
6
Voor schuine doorvoeringen tot 30°: kies de manchet die het nauwst aansluit bij de buitendiameter van de buis. Zie classificatierapport op www.rft.eu voor classificatieoverzicht.
7
Voor nulafstanden: de manchetten mogen tegen elkaar worden geplaatst (< 100 mm). Zie prestatieverklaring voor de correcte classificatie.

Plaatsing in flexibele wand (metal stud en gipskartonplaten)

Het product werd getest en goedgekeurd in:
  • zie classificatieoverzicht in prestatieverklaring.
  • Draagconstructies met een hogere densiteit en/of dikte zijn eveneens toegelaten, zoals beschreven in EN 1366-3.
1
Bevestig twee GKF gipsplaten dikte 12,5 mm langs één zijde van de metal studwand.
Voorzie in de wand een inbouwopening Ød mm.
2
Isoleer de wand tussen de metalen profielen en werk af met twee GKF gipsplaten.
3
Plaats de door te voeren buis.
Houd het uiteinde van de manchet vast en plooi met de andere hand de manchet rond de buis.
Klik de pootjes van de sluiting in elkaar, sluiting rechts bovenop linkse sluiting.
4
De MG2-A mag bevestigd worden met zowel universele schroeven (M6) als met draadstangen, rondel en moeren (M6).
5
Plaats de tweede manchet op dezelfde manier aan de andere kant van de wand.
Kleef het etiket in de buurt van de manchet.

Plaatsing in flexibele en massieve wand, afdichting met harde steenwolplaten met coating

Het product werd getest en goedgekeurd in:
  • zie classificatieoverzicht in prestatieverklaring.
  • Draagconstructies met een hogere densiteit en/of dikte zijn eveneens toegelaten, zoals beschreven in EN 1366-3.
1
Voorzie een inbouwopening van max. 1000 x 600 mm.
2
Bevestig 2 GKF gipsplaten dikte 12,5 mm langs één zijde van de metal studs. Isoleer de wand tussen de metalen profielen (40 mm rotswol, 40 kg/m³) en werk af met 2 GKF gipsplaten.
3
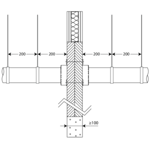
Plaats de leiding(en). De afstand tussen de leidingen onderling en tussen leiding en rand van de opening is min. 100 mm.
4
Bevestig een harde steenwolplaat van min. 50 mm dikte die eenzijdig voorzien is van brandwerende coating (type PROMASTOP-CB 50) rondom de manchetten. Gebruik een zaag/mes om de steenwol op maat te snijden. Smeer de kopse kanten van de steenwol alsook de voegen in met endotherme vulpasta (type PROMASTOP-E).
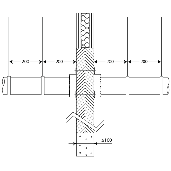
5
Bevestig de 2de steenwolplaat van min. 50mm dikte rondom de leidingen. Vermijd dat de zaagsneden van de 2 steenwolplaten samenvallen. Smeer de kopse kanten van de rotswol alsook de voegen in met endotherme vulpasta (type PROMASTOP-E).
6
Plaats de opbouwmanchetten aan beide zijden rond de leidingen en bevestig deze met draadstangen, rondellen en moeren (M6).
Kleef het etiket in de buurt van de manchet.

Algemene opmerkingen

  • De plaatsing dient steeds te gebeuren conform het installatievoorschrift en het classificatierapport.
  • Ondersteuning van de leiding is noodzakelijk om een functionele werking van de afdichting te garanderen in geval van brand. De leidingen moeten ondersteund en bevestigd worden volgens de regels van goed vakmanschap. Hiervoor verwijzen we naar de voorschriften van de fabrikant van de leidingen.
  • Wanneer de sparing groter is dan vermeld, dient men de opening in de wand/vloer te verkleinen met hetzelfde materiaal als de wand/vloer.