MG2-A - Installation

Installation in rigid wall and floor

The product was tested and approved in:
  • see the classification overview in the Declaration of Performance.
  • Mounting is authorised in supporting constructions with a thickness and/or density equal or superior to the supporting construction used during the test, as described in EN 1366-3.
1
Provide an installation opening of Ød mm.
2
Keep one end of the collar in place with one hand whilst bending the collar around the pipe with the other hand.
Click the wall anchors into each other, right anchor on top of the left one.
3
Reinforced concrete: place expander bolts in the pre-drilled holes Ø 6mm and fasten them. Aerated concrete: fix with universal M6 screws.
Place a collar on the other side in the same way.
Apply the label nearby the collar.
5
One collar on the bottom side of the floor is sufficient for floor penetrations.
6
For oblique penetrations till 30°, choose the collar with dimensions as close as possible to the outside diameter of the pipe. See the classification report on www.rft.eu for an overview of the classifications.
7
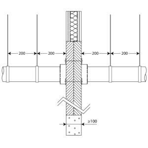
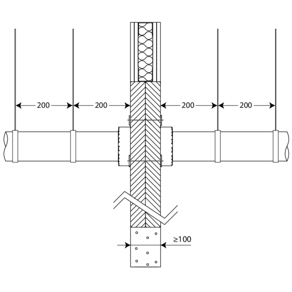
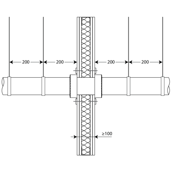
For zero distances: the collars can be placed against one another (< 100 mm). See declaration of performance for the correct classification.

Installation in flexible wall (metal stud and plasterboard)

The product was tested and approved in:
  • see the classification overview in the Declaration of Performance.
  • Mounting is authorised in supporting constructions with a thickness and/or density equal or superior to the supporting construction used during the test, as described in EN 1366-3.
1
Fix two gypsum boards type F with a tickness of 12,5 mm to one side of the metal stud wall.
Provide an installation opening of Ød mm.
2
Insulate the wall and finish with two gypsum plasterboards type F.
3
Place the plastic pipe.
Keep one end of the collar in place with one hand whilst bending the collar around the pipe with the other hand.
Click the wall anchors into each other, right anchor on top of the left one.
4
The MG2-A may be fixed by universal screws (M6) or by threaded rods, washers and bolts.
5
Place a collar on the other side in the same way.
Apply the label nearby the collar.

Installation in flexible and rigid wall, sealing with rigid stone wool boards with coating

The product was tested and approved in:
  • see the classification overview in the Declaration of Performance.
  • Mounting is authorised in supporting constructions with a thickness and/or density equal or superior to the supporting construction used during the test, as described in EN 1366-3.
1
Provide an installation opening of maximally 1000 x 600 mm.
2
Fix two gypsum plasterboards type F of 12,5 mm thickness to each side of the metal studs and insulate the wall with 40 mm mineral wool, 40 kg/m³.
3
Place the plastic pipe(s). The distances between the pipes and the edges of the seal are min. 100 mm.
4
Fix a stone wool board of min. 50 mm thickness with fire resistant coating on one side (type PROMASTOP-CB 50) around the fire collars. Use a saw or knife to dimension the stone wool boards. Apply endothermic coating (type PROMASTOP-E) on the lateral sides, as well as on the joints.
5
Put the second stone wool board of min. 50mm thickness around the pipes. Avoid the joints from coinciding. Apply endothermic coating (type PROMASTOP-E) on the lateral sides, as well as on the joints.
6
Place the surface-mounted collars at each side around the pipes and fix with threaded rods, washers and bolts (M6)
Apply the label nearby the collar.

General remarks

  • The installation must comply with the installation manual and the classification report.
  • The pipe must be supported in order to guarantee the well-functioning of the sealing during a fire. Supports and fastenings should be realised according to the rules of good craftsmanship. For this, please refer to the pipe manufacturer's instructions.
  • If the recess is larger than stated, reduce the opening in the wall/floor using the same material as the wall/floor.