MG2-A - Installation

Montage en paroi et dalle massive

Le produit a été testé et approuvé en :
  • voir l'aperçu des classements dans la Déclaration des Performances.
  • L'installation est autorisée dans des parois qui ont une épaisseur et/ou densité similaire ou supérieure à celle du test, comme décrit dans la norme EN 1366-3.
1
Prévoyez une ouverture Ød mm.
2
Tenez l'extrémité du manchon d’une main et pliez le manchon autour du tuyau avec l'autre main.
Superposez les 2 pattes de fixation situées aux deux extrémités du manchon.
3
Béton massif: Insérez des boulons dans les réservations préperforées de Ø 6mm et fixez-les Béton cellulaire: Utilisez des vis universelles M6.
Placez de la même façon le deuxième manchon de l'autre côté de la paroi.
Collez l’étiquette près du manchon.
5
Pour les traversées de dalles, un seul manchon placé sous la dalle est suffisant.
6
Pour les canalisations inclinées jusque 30°, sélectionnez la dimension, de manchon la plus proche du diamètre térieur du tuyau. Consultez le rapport de classement sur www.rft.eu pour l'aperçu des classements.
7
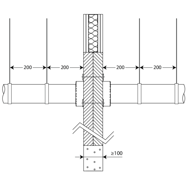
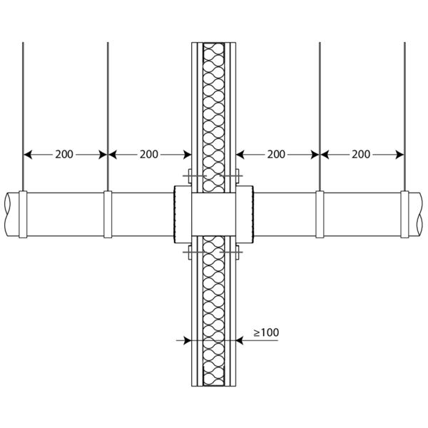
Pour distances zéro : les manchons peuvent être placés les uns contre les autres (< 100 mm). Voir déclaration des performances pour le classement correct.

Montage en paroi flexible (ossature métallique et plaques de plâtre)

Le produit a été testé et approuvé en :
  • voir l'aperçu des classements dans la Déclaration des Performances.
  • L'installation est autorisée dans des parois qui ont une épaisseur et/ou densité similaire ou supérieure à celle du test, comme décrit dans la norme EN 1366-3.
1
Fixez deux plaques de plâtre type GKF d’épaisseur 12,5 mm d'un côté de la paroi.
Prévoyez une réservation de Ød mm dans la paroi.
2
Isolez la paroi entre les profils métalliques et complétez avec deux plaques de plâtre GKF.
3
Placez le tuyau.
Tenez l'extrémité du manchon d’une main et pliez le manchon autour du tuyau avec l'autre main.
Superposez les 2 pattes de fixation situées aux deux extrémités du manchon.
4
Fixez les pattes de fixation, soit à l’aide de vis universelles(M6), soit à l’aide de tiges filetées, rondelles et d’écrous (M6).
5
Placez de la même façon le deuxième manchon de l'autre côté de la paroi.
Collez l’étiquette près du manchon.

Montage en paroi flexible et massive, calfeutrement avec des panneaux de laine de roche rigides et enduit

Le produit a été testé et approuvé en :
  • voir l'aperçu des classements dans la Déclaration des Performances.
  • L'installation est autorisée dans des parois qui ont une épaisseur et/ou densité similaire ou supérieure à celle du test, comme décrit dans la norme EN 1366-3.
1
Prévoyez une réservation de max. 1000 x 600 mm.
2
Fixez deux plaques de plâtre type GKF d’épaisseur 12,5 mm d'un côté de la paroi. Isolez la paroi entre les profils étalliques (laine minérale 40 mm, 40 kg/m³) et complétez avec deux plaques de plâtre GKF.
3
Placez le(s) tuyau(x). La distance minimale entre deux tuyaux et entre un tuyau et le bord de la réservation est de 100 mm.
4
Fixez un panneau de laine de roche d'épaisseur 50 mm recouverte d'enduit coupe-feu sur une face (type PROMASTOP-CB 50) autour du manchon. Utilisez une scie ou un cutter pour découper le panneau aux bonnes dimensions. Enduisez la tranche des panneaux et les joints d’enduit coupe-feu (type PROMASTOP-E).
5
Fixez le second panneau de laine de roche de min. 50mm d’épaisseur autour du tuyau. Veillez à ce que les joints des deux couches soient décalés. Enduisez de pâte coupe-feu (type PROMASTOP-E) la tranche des panneaux ainsi que les joints.
6
Fixez un manchon en applique de chaque côté de la paroi autour du tuyau. Fixez-le à l’aide de tiges filetées, rondelles et écrous (M6).
Collez l’étiquette près du manchon.

Remarques générales

  • L'installation doit être conforme au rapport de classement et à la notice technique.
  • Le tuyau doit être supporté afin de pouvoir garantir le bon fonctionnement du colmatage lors d’un incendie. Les supports et fixations seront réalisés suivant les règles de l’art. Pour ce faire, veuillez vous référer aux instructions du fabricant du tuyau.
  • Si la réservation est plus grande que ce qui est indiqué, réduisez la réservation dans le mur/le dalle en utilisant le même matériau que le mur/le dalle.