- Home
- Produits
- Volets de désenfumage
- VU120
- Installation
VU120 - Installation
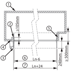
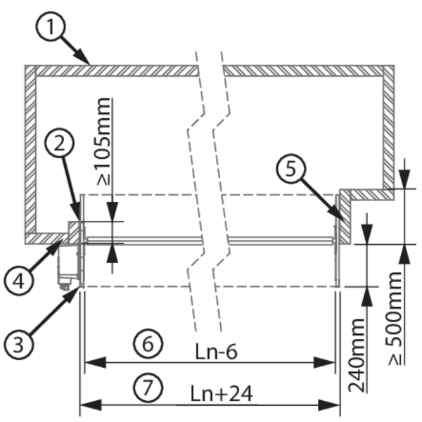
Installation en conduit horizontal ou vertical PROMATECT L500
Le produit a été testé et approuvé en :
- Promatect L500 ≥ 30 mm | EI 60 (ved hod i o) S 1500 AA multi | Interstice entre conduit et volet (≤ 6 mm) colmaté avec kit réfractaire sur une profondeur ≥ 105 mm | Type de pose : monté sur conduit 0/90°/180°/270°. Distances minimales autorisées. | 200x200 mm ≤ VU120+MANF/BEN + grille ≤ 1200x800 mm; 1000x1000. 200x200 mm ≤ VU120+NF/SF + grille ≤ 1200x650 mm; 950x750 mm
- Promatect L500 ≥ 40 mm | EI 90 (ved hod i o) S 1500 AA multi | Interstice entre conduit et volet (≤ 6 mm) colmaté avec kit réfractaire sur une profondeur ≥ 105 mm | Type de pose : monté sur conduit 0/90°/180°/270°. Distances minimales autorisées. | 200x200 mm ≤ VU120+MANF/BEN + grille ≤ 1200x800 mm; 1000x1000. 200x200 mm ≤ VU120+NF/SF + grille ≤ 1200x650 mm; 950x750 mm
- Promatect L500 ≥ 50 mm | EI 120 (ved hod i o) S 1500 AA multi | Interstice entre conduit et volet (≤ 6 mm) colmaté avec kit réfractaire sur une profondeur ≥ 105 mm | Type de pose : monté sur conduit 0/90°/180°/270°. Distances minimales autorisées. | 200x200 mm ≤ VU120+MANF/BEN + grille ≤ 1200x800 mm; 1000x1000. 200x200 mm ≤ VU120+NF/SF + grille ≤ 1200x650 mm; 950x750 mm
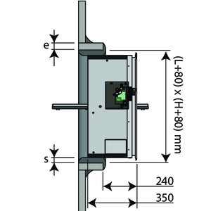
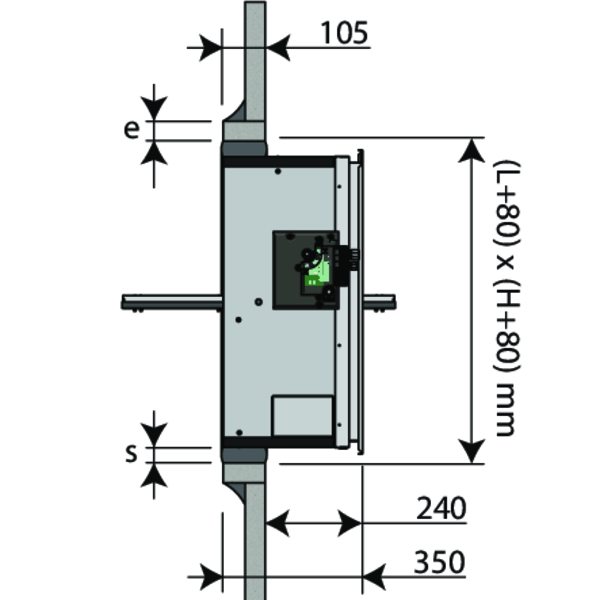
Faites une baie aux dimensions (L+A) x (H+A) mm. A = 2 x épaisseur manchon (e) + 6 mm.
Posez un manchon de même type et épaisseur que le conduit (ép. e) de profondeur minimale 105 mm dans la baie.
Fixez le manchon sur la paroi du conduit.
Enduisez les réservations d'abord avec Promacol S.
Positionnez le volet dans la réservation et vissez-le à l'aide de 12 vis Ø5x60 (conduit horizontal) ou 10 vis Ø5x60 (conduit vertical).
Attention : veillez à ce que les boulons ne dépassent pas l'épaisseur du manchon !
Le joint S entre le tunnel et le conduit (S) doit être rempli complètement avec enduit réfractaire (type Promacol S). Soutenez le tunnel ou serrez la lame dans sa position fermée pour éviter la déformation du tunnel lors du dessèchement du colmatage.
Fixez la grille au cadre par colle type Polyflex.
Vérifiez la mobilité de la lame.
Soumettez le mécanisme du clapet/volet à un test.
Posez un manchon de même type et épaisseur que le conduit (ép. e) de profondeur minimale 105 mm dans la baie.
Fixez le manchon sur la paroi du conduit.
Enduisez les réservations d'abord avec Promacol S.
Positionnez le volet dans la réservation et vissez-le à l'aide de 12 vis Ø5x60 (conduit horizontal) ou 10 vis Ø5x60 (conduit vertical).
Attention : veillez à ce que les boulons ne dépassent pas l'épaisseur du manchon !
Le joint S entre le tunnel et le conduit (S) doit être rempli complètement avec enduit réfractaire (type Promacol S). Soutenez le tunnel ou serrez la lame dans sa position fermée pour éviter la déformation du tunnel lors du dessèchement du colmatage.
Fixez la grille au cadre par colle type Polyflex.
Vérifiez la mobilité de la lame.
Soumettez le mécanisme du clapet/volet à un test.
Installation en conduit horizontal ou vertical GEOFLAM (LIGHT)
Le produit a été testé et approuvé en :
- Geoflam ≥ 30 mm | EI 60 (ved hod i o) S 1500 AA multi | Interstice entre conduit et volet (≤ 80 mm) colmaté avec kit réfractaire sur une profondeur ≥ 105 mm | Type de pose : monté sur conduit 0/90°/180°/270°. Distances minimales autorisées. | 200x200 mm ≤ VU120+MANF/BEN + grille ≤ 1200x800 mm; 1000x1000. 200x200 mm ≤ VU120+NF/SF + grille ≤ 1200x650 mm; 950x750 mm
- Geoflam ≥ 35 mm | EI 90 (ved hod i o) S 1500 AA multi | Interstice entre conduit et volet (≤ 80 mm) colmaté avec kit réfractaire sur une profondeur ≥ 105 mm | Type de pose : monté sur conduit 0/90°/180°/270°. Distances minimales autorisées. | 200x200 mm ≤ VU120+MANF/BEN + grille ≤ 1200x800 mm; 1000x1000. 200x200 mm ≤ VU120+NF/SF + grille ≤ 1200x650 mm; 950x750 mm
- Geoflam ≥ 45 mm | EI 120 (ved hod i o) S 1500 AA multi | Interstice entre conduit et volet (≤ 80 mm) colmaté avec kit réfractaire sur une profondeur ≥ 105 mm | Type de pose : monté sur conduit 0/90°/180°/270°. Distances minimales autorisées. | 200x200 mm ≤ VU120+MANF/BEN + grille ≤ 1200x800 mm; 1000x1000. 200x200 mm ≤ VU120+NF/SF + grille ≤ 1200x650 mm; 950x750 mm
- Geoflam Light ≥ 35 mm | EI 120 (ved hod i o) S 1500 AA multi | Interstice entre conduit et volet (≤ 80 mm) colmaté avec kit réfractaire sur une profondeur ≥ 105 mm | Type de pose : monté sur conduit 0/90°/180°/270°. Distances minimales autorisées. | 200x200 mm ≤ VU120+MANF/BEN + grille ≤ 1200x800 mm; 1000x1000. 200x200 mm ≤ VU120+NF/SF + grille ≤ 1200x650 mm; 950x750 mm
Faites une baie aux dimensions (L+80) x (H+80) mm.
Posez un manchon de même type et épaisseur que le conduit (ép. e) de profondeur minimale 105 mm dans la baie.
Colmatez les jonctions entre les montants et les traverses et entre le manchon et la paroi avec des polochons en filasse végétale et plâtre.
Le colmatage entre le boitier et le conduit (S) doit être rempli complètement avec polochonnage. Soutenez le tunnel ou serrez la lame dans sa position fermée pour éviter la déformation du tunnel lors du dessèchement du colmatage.
Fixez la grille au cadre par colle type Polyflex.
Vérifiez la mobilité de la lame.
Soumettez le mécanisme du clapet/volet à un test.
Posez un manchon de même type et épaisseur que le conduit (ép. e) de profondeur minimale 105 mm dans la baie.
Colmatez les jonctions entre les montants et les traverses et entre le manchon et la paroi avec des polochons en filasse végétale et plâtre.
Le colmatage entre le boitier et le conduit (S) doit être rempli complètement avec polochonnage. Soutenez le tunnel ou serrez la lame dans sa position fermée pour éviter la déformation du tunnel lors du dessèchement du colmatage.
Fixez la grille au cadre par colle type Polyflex.
Vérifiez la mobilité de la lame.
Soumettez le mécanisme du clapet/volet à un test.
Installation en conduit horizontal ou vertical GEOTEC
Le produit a été testé et approuvé en :
- Geotec ≥ 30 mm | EI 60 (ved hod i o) S 1500 AA multi | Interstice entre conduit et volet (≤ 80 mm) colmaté avec kit réfractaire sur une profondeur ≥ 105 mm | Type de pose : monté sur conduit 0/90°/180°/270°. Distances minimales autorisées. | 200x200 mm ≤ VU120+MANF/BEN + grille ≤ 1200x800 mm; 1000x1000. 200x200 mm ≤ VU120+NF/SF + grille ≤ 1200x650 mm; 950x750 mm
- Geotec ≥ 45 mm | EI 120 (ved hod i o) S 1500 AA multi | Interstice entre conduit et volet (≤ 80 mm) colmaté avec kit réfractaire sur une profondeur ≥ 105 mm | Type de pose : monté sur conduit 0/90°/180°/270°. Distances minimales autorisées. | 200x200 mm ≤ VU120+MANF/BEN + grille ≤ 1200x800 mm; 1000x1000. 200x200 mm ≤ VU120+NF/SF + grille ≤ 1200x650 mm; 950x750 mm
Réaliser une réservation de dimensions (L+80) x (H+80) mm (en cas de colmatage avec un mélange de plâtre et de filasse végétale) ou une réservation de dimensions (L+6) x (H+6) mm (en cas de colmatage avec de la colle et des vis).
Posez un manchon de même type et épaisseur que le conduit (ép. e) de profondeur minimale 105 mm dans la baie.
Colmatez les jonctions entre les montants et les traverses et entre le manchon et la paroi avec des polochons en filasse végétale et plâtre ou fixer le manchon à la paroi du conduit avec de la colle et des vis Ø 5 x (2 x e) mm par incréments de 100 mm.
Positionnez le volet dans la réservation.
Le colmatage entre le boitier et le conduit (S) doit être rempli complètement avec polochonnage ou avec la colle et les vis GEOCOL. Soutenez le tunnel ou serrez la lame dans sa position fermée pour éviter la déformation du tunnel lors du dessèchement du colmatage.
Fixez la grille au cadre par colle type Polyflex.
Vérifiez la mobilité de la lame.
Soumettez le mécanisme du clapet/volet à un test.
Posez un manchon de même type et épaisseur que le conduit (ép. e) de profondeur minimale 105 mm dans la baie.
Colmatez les jonctions entre les montants et les traverses et entre le manchon et la paroi avec des polochons en filasse végétale et plâtre ou fixer le manchon à la paroi du conduit avec de la colle et des vis Ø 5 x (2 x e) mm par incréments de 100 mm.
Positionnez le volet dans la réservation.
Le colmatage entre le boitier et le conduit (S) doit être rempli complètement avec polochonnage ou avec la colle et les vis GEOCOL. Soutenez le tunnel ou serrez la lame dans sa position fermée pour éviter la déformation du tunnel lors du dessèchement du colmatage.
Fixez la grille au cadre par colle type Polyflex.
Vérifiez la mobilité de la lame.
Soumettez le mécanisme du clapet/volet à un test.
Installation en conduit horizontal ou vertical TECNIVER
Le produit a été testé et approuvé en :
- Tecniver ≥ 35 mm | EI 60 (ved hod i o) S 1500 AA multi | Interstice entre conduit et volet (≤ 6 mm) colmaté avec kit réfractaire sur une profondeur ≥ 105 mm | Type de pose : monté sur conduit 0/90°/180°/270°. Distances minimales autorisées. | 200x200 mm ≤ VU120+MANF/BEN + grille ≤ 1200x800 mm; 1000x1000. 200x200 mm ≤ VU120+NF/SF + grille ≤ 1200x650 mm; 950x750 mm
- Tecniver ≥ 45 mm | EI 90 (ved hod i o) S 1500 AA multi | Interstice entre conduit et volet (≤ 6 mm) colmaté avec kit réfractaire sur une profondeur ≥ 105 mm | Type de pose : monté sur conduit 0/90°/180°/270°. Distances minimales autorisées. | 200x200 mm ≤ VU120+MANF/BEN + grille ≤ 1200x800 mm; 1000x1000. 200x200 mm ≤ VU120+NF/SF + grille ≤ 1200x650 mm; 950x750 mm
- Tecniver ≥ 50 mm | EI 120 (ved hod i o) S 1500 AA multi | Interstice entre conduit et volet (≤ 6 mm) colmaté avec kit réfractaire sur une profondeur ≥ 105 mm | Type de pose : monté sur conduit 0/90°/180°/270°. Distances minimales autorisées. | 200x200 mm ≤ VU120+MANF/BEN + grille ≤ 1200x800 mm; 1000x1000. 200x200 mm ≤ VU120+NF/SF + grille ≤ 1200x650 mm; 950x750 mm
Faites une baie aux dimensions (L+A) x (H+A) mm. A = 2 x épaisseur manchon (e) + 6 mm.
Posez un manchon de même type et épaisseur que le conduit (ép. e) de profondeur minimale 105 mm dans la baie.
Fixez le manchon sur la paroi du conduit.
Enduisez les feuillures de la réservation, les traverses et les montants de colle de type CF GLUE.
Positionnez le volet dans la réservation et vissez-le à l'aide de 12 vis Ø5x60 (conduit horizontal) ou 10 vis Ø5x60 (conduit vertical).
Attention : veillez à ce que les boulons ne dépassent pas l'épaisseur du manchon !
Le joint S entre le tunnel et le conduit (S) doit être rempli complètement avec de la colle (type CF glue). Soutenez le tunnel ou serrez la lame dans sa position fermée pour éviter la déformation du tunnel lors du dessèchement du colmatage.
Fixez la grille au cadre par colle type Polyflex.
Vérifiez la mobilité de la lame.
Soumettez le mécanisme du clapet/volet à un test.
Posez un manchon de même type et épaisseur que le conduit (ép. e) de profondeur minimale 105 mm dans la baie.
Fixez le manchon sur la paroi du conduit.
Enduisez les feuillures de la réservation, les traverses et les montants de colle de type CF GLUE.
Positionnez le volet dans la réservation et vissez-le à l'aide de 12 vis Ø5x60 (conduit horizontal) ou 10 vis Ø5x60 (conduit vertical).
Attention : veillez à ce que les boulons ne dépassent pas l'épaisseur du manchon !
Le joint S entre le tunnel et le conduit (S) doit être rempli complètement avec de la colle (type CF glue). Soutenez le tunnel ou serrez la lame dans sa position fermée pour éviter la déformation du tunnel lors du dessèchement du colmatage.
Fixez la grille au cadre par colle type Polyflex.
Vérifiez la mobilité de la lame.
Soumettez le mécanisme du clapet/volet à un test.
Installation en conduit horizontal ou vertical GLASROC F V500
Le produit a été testé et approuvé en :
- Glasroc F V500 ≥ 35 mm | EI 60 (ved hod i o) S 1500 AA multi | Interstice entre conduit et volet (≤ 6 mm) colmaté avec kit réfractaire sur une profondeur ≥ 105 mm | Type de pose : monté sur conduit 0/90°/180°/270°. Distances minimales autorisées. | 200x200 mm ≤ VU120+MANF/BEN + grille ≤ 1200x800 mm; 1000x1000. 200x200 mm ≤ VU120+NF/SF + grille ≤ 1200x650 mm; 950x750 mm
- Glasroc F V500 ≥ 50 mm | EI 120 (ved hod i o) S 1500 AA multi | Interstice entre conduit et volet (≤ 6 mm) colmaté avec kit réfractaire sur une profondeur ≥ 105 mm | Type de pose : monté sur conduit 0/90°/180°/270°. Distances minimales autorisées. | 200x200 mm ≤ VU120+MANF/BEN + grille ≤ 1200x800 mm; 1000x1000. 200x200 mm ≤ VU120+NF/SF + grille ≤ 1200x650 mm; 950x750 mm
Faites une baie aux dimensions (L+A) x (H+A) mm. A = 2 x épaisseur manchon (e) + 6 mm.
Posez un manchon de même type et épaisseur que le conduit (ép. e) de profondeur minimale 105 mm dans la baie.
Fixez le manchon sur la paroi du conduit.
Enduisez les feuillures de la réservation, les traverses et les montants de colle de type GLASROC F V500.
Positionnez le volet dans la réservation et vissez-le à l'aide de 12 vis Ø5x60 (conduit horizontal) ou 10 vis Ø5x60 (conduit vertical).
Attention : veillez à ce que les boulons ne dépassent pas l'épaisseur du manchon !
Le joint S entre le tunnel et le conduit (S) doit être rempli complètement avec de la colle (type Glasroc F V500). Soutenez le tunnel ou serrez la lame dans sa position fermée pour éviter la déformation du tunnel lors du dessèchement du colmatage.
Fixez la grille au cadre par colle type Polyflex.
Vérifiez la mobilité de la lame.
Soumettez le mécanisme du clapet/volet à un test.
Posez un manchon de même type et épaisseur que le conduit (ép. e) de profondeur minimale 105 mm dans la baie.
Fixez le manchon sur la paroi du conduit.
Enduisez les feuillures de la réservation, les traverses et les montants de colle de type GLASROC F V500.
Positionnez le volet dans la réservation et vissez-le à l'aide de 12 vis Ø5x60 (conduit horizontal) ou 10 vis Ø5x60 (conduit vertical).
Attention : veillez à ce que les boulons ne dépassent pas l'épaisseur du manchon !
Le joint S entre le tunnel et le conduit (S) doit être rempli complètement avec de la colle (type Glasroc F V500). Soutenez le tunnel ou serrez la lame dans sa position fermée pour éviter la déformation du tunnel lors du dessèchement du colmatage.
Fixez la grille au cadre par colle type Polyflex.
Vérifiez la mobilité de la lame.
Soumettez le mécanisme du clapet/volet à un test.
Installation en conduit horizontal ou vertical EXTHAMAT
Le produit a été testé et approuvé en :
- Exthamat ≥ 25 mm | EI 60 (ved hod i o) S 1500 AA multi | Interstice entre conduit et volet (≤ 80 mm) colmaté avec kit réfractaire sur une profondeur ≥ 105 mm | Type de pose : monté sur conduit 0/90°/180°/270°. Distances minimales autorisées. | 200x200 mm ≤ VU120+MANF/BEN + grille ≤ 1200x800 mm; 1000x1000. 200x200 mm ≤ VU120+NF/SF + grille ≤ 1200x650 mm; 950x750 mm
- Exthamat ≥ 30 mm | EI 90 (ved hod i o) S 1500 AA multi | Interstice entre conduit et volet (≤ 80 mm) colmaté avec kit réfractaire sur une profondeur ≥ 105 mm | Type de pose : monté sur conduit 0/90°/180°/270°. Distances minimales autorisées. | 200x200 mm ≤ VU120+MANF/BEN + grille ≤ 1200x800 mm; 1000x1000. 200x200 mm ≤ VU120+NF/SF + grille ≤ 1200x650 mm; 950x750 mm
- Exthamat ≥ 35 mm | EI 120 (ved hod i o) S 1500 AA multi | Interstice entre conduit et volet (≤ 80 mm) colmaté avec kit réfractaire sur une profondeur ≥ 105 mm | Type de pose : monté sur conduit 0/90°/180°/270°. Distances minimales autorisées. | 200x200 mm ≤ VU120+MANF/BEN + grille ≤ 1200x800 mm; 1000x1000. 200x200 mm ≤ VU120+NF/SF + grille ≤ 1200x650 mm; 950x750 mm
Faites une baie aux dimensions (L+80) x (H+80) mm.
Posez un manchon de même type et épaisseur que le conduit (ép. e) de profondeur minimale 105 mm dans la baie.
Colmatez les jonctions entre les montants et les traverses et entre le manchon et la paroi avec des polochons en filasse végétale et plâtre.
Le colmatage entre le boitier et le conduit (S) doit être rempli complètement avec polochonnage. Soutenez le tunnel ou serrez la lame dans sa position fermée pour éviter la déformation du tunnel lors du dessèchement du colmatage.
Fixez la grille au cadre par colle type Polyflex.
Vérifiez la mobilité de la lame.
Soumettez le mécanisme du clapet/volet à un test.
Posez un manchon de même type et épaisseur que le conduit (ép. e) de profondeur minimale 105 mm dans la baie.
Colmatez les jonctions entre les montants et les traverses et entre le manchon et la paroi avec des polochons en filasse végétale et plâtre.
Le colmatage entre le boitier et le conduit (S) doit être rempli complètement avec polochonnage. Soutenez le tunnel ou serrez la lame dans sa position fermée pour éviter la déformation du tunnel lors du dessèchement du colmatage.
Fixez la grille au cadre par colle type Polyflex.
Vérifiez la mobilité de la lame.
Soumettez le mécanisme du clapet/volet à un test.
Installation en conduit horizontal ou vertical DESENFIRE (HD/THD/STR)
Le produit a été testé et approuvé en :
- Desenfire HD ≥ 25 mm | EI 60 (ved hod i o) S 1500 AA multi | Interstice entre conduit et volet (≤ 80 mm) colmaté avec kit réfractaire sur une profondeur ≥ 105 mm | Type de pose : monté sur conduit 0/90°/180°/270°. Distances minimales autorisées. | 200x200 mm ≤ VU120+MANF/BEN + grille ≤ 1200x800 mm; 1000x1000. 200x200 mm ≤ VU120+NF/SF + grille ≤ 1200x650 mm; 950x750 mm
- Desenfire HD ≥ 35 mm | EI 120 (ved hod i o) S 1500 AA multi | Interstice entre conduit et volet (≤ 80 mm) colmaté avec kit réfractaire sur une profondeur ≥ 105 mm | Type de pose : monté sur conduit 0/90°/180°/270°. Distances minimales autorisées. | 200x200 mm ≤ VU120+MANF/BEN + grille ≤ 1200x800 mm; 1000x1000. 200x200 mm ≤ VU120+NF/SF + grille ≤ 1200x650 mm; 950x750 mm
- Desenfire STR ≥ 25 mm | EI 120 (ved hod i o) S 1500 AA multi | Interstice entre conduit et volet (≤ 80 mm) colmaté avec kit réfractaire sur une profondeur ≥ 105 mm | Type de pose : monté sur conduit 0/90°/180°/270°. Distances minimales autorisées. | 200x200 mm ≤ VU120+MANF/BEN + grille ≤ 1200x800 mm; 1000x1000. 200x200 mm ≤ VU120+NF/SF + grille ≤ 1200x650 mm; 950x750 mm
Faites une baie aux dimensions (L+80) x (H+80) mm.
Posez un manchon de même type et épaisseur que le conduit (ép. e) de profondeur minimale 105 mm dans la baie.
Colmatez les jonctions entre les montants et les traverses et entre le manchon et la paroi avec des polochons en filasse végétale et plâtre.
Le colmatage entre le boitier et le conduit (S) doit être rempli complètement avec polochonnage. Soutenez le tunnel ou serrez la lame dans sa position fermée pour éviter la déformation du tunnel lors du dessèchement du colmatage.
Fixez la grille au cadre par colle type Polyflex.
Vérifiez la mobilité de la lame.
Soumettez le mécanisme du clapet/volet à un test.
Posez un manchon de même type et épaisseur que le conduit (ép. e) de profondeur minimale 105 mm dans la baie.
Colmatez les jonctions entre les montants et les traverses et entre le manchon et la paroi avec des polochons en filasse végétale et plâtre.
Le colmatage entre le boitier et le conduit (S) doit être rempli complètement avec polochonnage. Soutenez le tunnel ou serrez la lame dans sa position fermée pour éviter la déformation du tunnel lors du dessèchement du colmatage.
Fixez la grille au cadre par colle type Polyflex.
Vérifiez la mobilité de la lame.
Soumettez le mécanisme du clapet/volet à un test.
Installation en conduit vertical béton
Le produit a été testé et approuvé en :
- Maçonnerie, blocs de béton, béton ≥ 100 mm | EI 120 (ved i o) S 1500 AA multi | Mortier | Type de pose : monté sur conduit 0/90°/180°/270°. Distances minimales autorisées. | 200x200 mm ≤ VU120+MANF/BEN + grille ≤ 1200x800 mm; 1000x1000. 200x200 mm ≤ VU120+NF/SF + grille ≤ 1200x650 mm; 950x750 mm
- Béton armé (≥ 2150 kg/m³) ≥ 70 mm | EI 90 (ved i o) S 1500 AA multi | Mortier | Type de pose : monté sur conduit 0/90°/180°/270°. Distances minimales autorisées. | 200x200 mm ≤ VU120+MANF/BEN + grille ≤ 1200x800 mm; 1000x1000. 200x200 mm ≤ VU120+NF/SF + grille ≤ 1200x650 mm; 950x750 mm
Faites une baie aux dimensions (L+20) x (H+20) mm jusqu'à (L+100) x (H+100) mm.
Positionnez le volet dans la réservation. Le joint entre le tunnel et le conduit (S) doit être rempli complètement avec du mortier standard.
Soutenez le tunnel et serrez la lame dans sa position de sécurité pour éviter la déformation du tunnel lors du dessèchement du colmatage.
Fixez la grille au cadre par colle type Polyflex.
Vérifiez la mobilité de la lame.
Soumettez le mécanisme du clapet/volet à un test.
Positionnez le volet dans la réservation. Le joint entre le tunnel et le conduit (S) doit être rempli complètement avec du mortier standard.
Soutenez le tunnel et serrez la lame dans sa position de sécurité pour éviter la déformation du tunnel lors du dessèchement du colmatage.
Fixez la grille au cadre par colle type Polyflex.
Vérifiez la mobilité de la lame.
Soumettez le mécanisme du clapet/volet à un test.
Installation à distances minimales
Les volets de désenfumage peuvent être montés à distance minimale l'un au dessus ou à côté de l'autre, s'ils sont montés dans des manchon séparés en matériau du conduit avec la résistance au feu souhaitée. Il est conseillé de ne pas dépasser une configuration de 2 x 4 (H x L).
Si plusieurs volets de désenfumage sont montés à distance minimale, les points d'appui et de renforcement doivent être ajustés proportionnellement au poids accru. Le montage du conduit doit être conforme au rapport de classement du fabricant du conduit.
Remarques générales
- L'installation doit être conforme au rapport de classement et à la notice technique.
- Le montage de le conduit de désenfumage doit être conforme au rapport de classement du fabricant.
- Orientation de l'axe: voir déclaration des performances.
- Évitez l’obstruction des conduits de désenfumage connectées.
- Vérifiez le libre mouvement de la lame mobile.
- Les volets de désenfumage Rf-t peuvent être appliqués à des conduits de désenfumage soumis à des essais conformément à l'EN 1366-8 et à l'EN 1366-9 selon le cas.
- Attention : lors de la pose, le produit doit être manipulé avec précaution et protégé de toute projection de produits de calfeutrement.
- Attention : à la mise en route de l'installation, nettoyez l'ensemble des poussières et salissures.
- Attention : pour le montage en conduit de désenfumage tenez compte du débattement du volet.