PASSAGE - Installation

Commande : fermeture manuelle

1
Ouvrez la trappe d’accès dans le profil inférieur du PASSAGE pour accéder au mécanisme manuel. Déposez la trappe d’accès sur le côté.
2
Poussez le loquet vers le haut jusqu’à ce qu’il reste en position verticale. Dans le cas d’une bobine VM : veillez à ce que la bobine soit sous tension.
3
Placez une clé dynamométrique numéro 17 sur l’écrou. Appuyez le ressort de sécurité tout en tendant le rideau. Tournez dans le sens des aiguilles d’une montre pour tirer le rideau vers le bas.
4
Attention : Veillez toujours à ce que le rideau ne soit pas trop tendu en appliquant une force trop importante sur l'axe du mécanisme. Utilisez une clé dynamométrique n°17 pour cela. Ne pas appliquer un couple supérieur à 13 Nm !
5
Replacez la trappe d’accès dans le profil inférieur et fermez le tout.

Commande : ouverture manuelle

1
Ouvrez la trappe d’accès dans le profil inférieur du PASSAGE pour accéder au mécanisme manuel. Déposez la trappe d’accès sur le côté.
2
Tirez le loquet vers le bas pour déverrouiller le mécanisme. Le rideau s’ouvre. Attention : la bobine tourne aussi.
3
Replacez la trappe d’accès dans le profil inférieur et fermez le tout.

Câblage électrique

1
Avant d’installer le PASSAGE, ouvrez la trappe d’accès et vérifiez qu’il y ait une réservation adéquate dans le profil latéral, en bas à gauche, afin de permettre le passage du câble entrant.
2
Faites passer le câble par la réservation.
Raccordez la bobine et les contacts de position avec les connecteurs fournis conformément au schéma de câblage dans la boîte de raccordement.
3
Raccordez les connecteurs.
Respectez les règles d'installation établies par la NF S 61-932.
4
Posez tous les câbles dans la boîte de raccordement et fermez la trappe d’accès.

Position dans le conduit

1
Les volets sont fixés par l'intermédiaire de manchons sur le conduit. Ce manchon peut indifféremment être fixé: dans le conduit, dans l'axe du conduit, à l'extérieur du conduit ou déporté du conduit (en traînasse).

Installation en conduit vertical béton avec précadre

Le produit a été testé et approuvé en :
  • Maçonnerie, blocs de béton, béton ≥ 100 mm | EI 60 (ved i o) S 1000 C300 AA multi | Passage 60 | Type de pose : monté sur conduit 0/90°/180°/270° | 300x300 mm ≤ PASSAGE ≤ 450x600 mm; 500x300 mm ≤ PASSAGE ≤ 1100x900 mm
  • Maçonnerie, blocs de béton, béton ≥ 100 mm | EI 120 (ved i o) S 1000 C300 AA multi | Passage 120 | Type de pose : monté sur conduit 0/90°/180°/270° | 300x300 mm ≤ PASSAGE ≤ 450x600 mm; 500x300 mm ≤ PASSAGE ≤ 1100x900 mm
1
Faites une baie aux dimensions (Ln+90) x (Hn+310) mm.
2
Tournez les quatre plaques de fixation sur le précadre à 90° en position verticale et fixez-les à l’aide des rivets à frapper fournis.
3
Le précadre doit toujours être fixé sur le conduit en béton à l’aide de vis et de chevilles. Utilisez pour cela des vis Ø4 x minimum 30 mm, en acier ou en acier inoxydable.
Remplissez la réservation du précadre de mortier. Veillez à ce que l’espace entre le précadre et la réservation soit complètement colmaté avec du mortier.
La baie finie doit être aux dimensions du précadre (Ln+80) x (Hn+300) mm.
Le mortier doit sécher complètement avant que le volet soit inséré dans le précadre.
4
Enlevez les renforts d’angle en tournant d’abord les languettes en acier afin de pouvoir retirer le renfort.
5
Placez le volet dans la réservation. Vissez le volet dans les deux profils latéraux avec les vis Ø 6 x 70 mm fournies, en respectant un pas minimal de 300 mm. Veillez à ne pas déformer le volet lors du vissage.
6
Colmatez la réservation entre le volet et le conduit avec un mastic acrylique résistant au feu à un composant, classification de réaction au feu E (par ex. Promaseal-A).
Branchez le mécanisme selon le schéma de raccordement.
Testez le bon fonctionnement du volet.

Installation en conduit vertical béton sans précadre

Le produit a été testé et approuvé en :
  • Maçonnerie, blocs de béton, béton ≥ 100 mm | EI 60 (ved i o) S 1000 C300 AA multi | Passage 60 | Type de pose : monté sur conduit 0/90°/180°/270° | 300x300 mm ≤ PASSAGE ≤ 450x600 mm; 500x300 mm ≤ PASSAGE ≤ 1100x900 mm
  • Maçonnerie, blocs de béton, béton ≥ 100 mm | EI 120 (ved i o) S 1000 C300 AA multi | Passage 120 | Type de pose : monté sur conduit 0/90°/180°/270° | 300x300 mm ≤ PASSAGE ≤ 450x600 mm; 500x300 mm ≤ PASSAGE ≤ 1100x900 mm
1
Faites une baie aux dimensions (Ln+80) x (Hn+300) mm.
Ouvrez et positionnez le volet dans la baie.
2
Placez le volet dans la réservation. Vissez le volet dans les deux profils latéraux avec les vis Ø6 x 70 mm fournies, en respectant un pas minimal de 300mm. Veillez à ne pas déformer le volet lors du vissage.
3
Colmatez la réservation entre le volet et le conduit avec un mastic acrylique résistant au feu à un composant, classification de réaction au feu E (par ex. Promaseal-A).
Branchez le mécanisme selon le schéma de raccordement.
Testez le bon fonctionnement du volet.

Installation en conduit horizontal ou vertical PROMATECT L500 avec précadre

Le produit a été testé et approuvé en :
  • Promatect L500 ≥ 30 mm | EI 60 (ved hod i o) S 1000 C300 AA multi | Passage 60 | Type de pose : monté sur conduit 0/90°/180°/270° | 300x300 mm ≤ PASSAGE ≤ 450x600 mm; 500x300 mm ≤ PASSAGE ≤ 1100x900 mm
  • Promatect L500 ≥ 50 mm | EI 120 (ved hod i o) S 1000 C300 AA multi | Passage 120 | Type de pose : monté sur conduit 0/90°/180°/270° | 300x300 mm ≤ PASSAGE ≤ 450x600 mm; 500x300 mm ≤ PASSAGE ≤ 1100x900 mm
1
Faites une baie aux dimensions (Ln+A) x (Hn+C) mm. A = 2 x épaisseur manchon (e) + 90 mm. C = 2 x épaisseur manchon (e) + 310 mm.
Posez un manchon de même type et épaisseur que le conduit (ép. e) de profondeur minimale 110 mm dans la baie.
Agrafez les éléments du manchon entre eux puis fixez le manchon sur la paroi du conduit à l'aide de colle Promacol S et de vis Ø5 x 90 mm positionnées à entraxe de 200 mm.
2
Tournez les quatre plaques de fixation sur le précadre à 90° en position verticale et fixez-les à l’aide des rivets à frapper fournis.
3
Le précadre doit toujours être fixé sur le conduit à l’aide de vis. Utilisez pour cela des vis Ø4 x minimum 30 mm, en acier ou en acier inoxydable.
Veillez à ce que l’espace entre le précadre et la réservation soit complètement colmaté avec Promacol S.
4
Enlevez les renforts d’angle en tournant d’abord les languettes en acier afin de pouvoir retirer le renfort.
5
Placez le volet dans la réservation. Vissez le volet dans les deux profils latéraux avec les vis Ø 6 x 70 mm fournies, en respectant un pas minimal de 300 mm. Veillez à ne pas déformer le volet lors du vissage.
6
Colmatez la réservation entre le volet et le conduit avec du Promaseal-A (Promat).
Branchez le mécanisme selon le schéma de raccordement.
Testez le bon fonctionnement du volet.

Installation en conduit horizontal ou vertical PROMATECT L500 sans précadre

Le produit a été testé et approuvé en :
  • Promatect L500 ≥ 30 mm | EI 60 (ved hod i o) S 1000 C300 AA multi | Passage 60 | Type de pose : monté sur conduit 0/90°/180°/270° | 300x300 mm ≤ PASSAGE ≤ 450x600 mm; 500x300 mm ≤ PASSAGE ≤ 1100x900 mm
  • Promatect L500 ≥ 50 mm | EI 120 (ved hod i o) S 1000 C300 AA multi | Passage 120 | Type de pose : monté sur conduit 0/90°/180°/270° | 300x300 mm ≤ PASSAGE ≤ 450x600 mm; 500x300 mm ≤ PASSAGE ≤ 1100x900 mm
1
Faites une baie aux dimensions (Ln+A) x (Hn+C) mm. A = 2 x épaisseur manchon (e) + 80 mm. C = 2 x épaisseur manchon (e) + 300 mm.
Posez un manchon de même type et épaisseur que le conduit (ép. e) de profondeur minimale 110 mm dans la baie.
Agrafez les éléments du manchon entre eux puis fixez le manchon sur la paroi du conduit à l'aide de colle Promacol S et de vis Ø5 x 90 mm positionnées à entraxe de 200 mm.
2
Placez le volet dans la réservation. Vissez le volet dans les deux profils latéraux avec les vis Ø 6 x 70 mm fournies, en respectant un pas minimal de 300 mm. Veillez à ne pas déformer le volet lors du vissage.
3
Colmatez la réservation entre le volet et le conduit avec du Promaseal-A (Promat).
Branchez le mécanisme selon le schéma de raccordement.
Testez le bon fonctionnement du volet.

Installation en conduit horizontal ou vertical GEOTEC avec précadre

Le produit a été testé et approuvé en :
  • Geotec ≥ 30 mm | EI 60 (ved hod i o) S 1000 C300 AA multi | Passage 60 | Type de pose : monté sur conduit 0/90°/180°/270° | 300x300 mm ≤ PASSAGE ≤ 450x600 mm; 500x300 mm ≤ PASSAGE ≤ 1100x900 mm
  • Geotec ≥ 45 mm | EI 120 (ved hod i o) S 1000 C300 AA multi | Passage 120 | Type de pose : monté sur conduit 0/90°/180°/270° | 300x300 mm ≤ PASSAGE ≤ 450x600 mm; 500x300 mm ≤ PASSAGE ≤ 1100x900 mm
1
Faites une baie aux dimensions (Ln+A) x (Hn+C) mm. A = 2 x épaisseur manchon (e) + 90 mm. C = 2 x épaisseur manchon (e) + 310 mm.
Posez un manchon de même type et épaisseur que le conduit (ép. e) de profondeur minimale 110 mm dans la baie.
Fixez les éléments du manchon entre eux et le manchon sur la paroi du conduit avec la colle GEOCOL (S) et des vis Ø 5 x (2 x e) mm positionnées au pas de 200 mm.
Enduisez les jonctions (entre les montants et les traverses et entre le manchon et la paroi) de GEOCOL (S).
2
Tournez les quatre plaques de fixation sur le précadre à 90° en position verticale et fixez-les à l’aide des rivets à frapper fournis.
3
Le précadre doit toujours être fixé sur le conduit à l’aide de vis. Utilisez pour cela des vis Ø4 x minimum 30 mm, en acier ou en acier inoxydable.
Enduisez les feuillures de la réservation de plâtre colle de type GEOCOL (S).
La baie finie doit être aux dimensions du précadre (Ln+80) x (Hn+300) mm.
4
Enlevez les renforts d’angle en tournant d’abord les languettes en acier afin de pouvoir retirer le renfort.
5
Placez le volet dans la réservation. Vissez le volet dans les deux profils latéraux avec les vis Ø 6 x 70 mm fournies, en respectant un pas minimal de 300 mm. Veillez à ne pas déformer le volet lors du vissage.
6
Colmatez la réservation entre le volet et le conduit avec un mastic acrylique résistant au feu à un composant, classification de réaction au feu E (par ex. Promaseal-A).
Branchez le mécanisme selon le schéma de raccordement.
Testez le bon fonctionnement du volet.

Installation en conduit horizontal ou vertical GEOTEC sans précadre

Le produit a été testé et approuvé en :
  • Geotec ≥ 30 mm | EI 60 (ved hod i o) S 1000 C300 AA multi | Passage 60 | Type de pose : monté sur conduit 0/90°/180°/270° | 300x300 mm ≤ PASSAGE ≤ 450x600 mm; 500x300 mm ≤ PASSAGE ≤ 1100x900 mm
  • Geotec ≥ 45 mm | EI 120 (ved hod i o) S 1000 C300 AA multi | Passage 120 | Type de pose : monté sur conduit 0/90°/180°/270° | 300x300 mm ≤ PASSAGE ≤ 450x600 mm; 500x300 mm ≤ PASSAGE ≤ 1100x900 mm
1
Faites une baie aux dimensions (Ln+A) x (Hn+C) mm. A = 2 x épaisseur manchon (e) + 80 mm. C = 2 x épaisseur manchon (e) + 300 mm.
Posez un manchon de même type et épaisseur que le conduit (ép. e) de profondeur minimale 110 mm dans la baie.
Fixez les éléments du manchon entre eux et le manchon sur la paroi du conduit avec la colle GEOCOL (S) et des vis Ø 5 x (2 x e) mm positionnées au pas de 200 mm.
Enduisez les jonctions (entre les montants et les traverses et entre le manchon et la paroi) de GEOCOL (S).
2
Placez le volet dans la réservation. Vissez le volet dans les deux profils latéraux avec les vis Ø 6 x 70 mm fournies, en respectant un pas minimal de 300 mm. Veillez à ne pas déformer le volet lors du vissage.
3
Colmatez la réservation entre le volet et le conduit avec un mastic acrylique résistant au feu à un composant, classification de réaction au feu E (par ex. Promaseal-A).
Branchez le mécanisme selon le schéma de raccordement.
Testez le bon fonctionnement du volet.

Installation en applique sur des conduits verticaux et horizontaux sans précadre

Le produit a été testé et approuvé en :
  • Promatect L500 ≥ 30 mm | EI 60 (ved hod i o) S 1000 C300 AA multi | Passage 60 | Type de pose : monté sur conduit 0/90°/180°/270° | 300x300 mm ≤ PASSAGE ≤ 450x600 mm; 500x300 mm ≤ PASSAGE ≤ 1100x900 mm
  • Geotec ≥ 30 mm | EI 60 (ved hod i o) S 1000 C300 AA multi | Passage 60 | Type de pose : monté sur conduit 0/90°/180°/270° | 300x300 mm ≤ PASSAGE ≤ 450x600 mm; 500x300 mm ≤ PASSAGE ≤ 1100x900 mm
  • Maçonnerie, blocs de béton, béton ≥ 100 mm | EI 60 (ved i o) S 1000 C300 AA multi | Passage 60 | Type de pose : monté sur conduit 0/90°/180°/270° | 300x300 mm ≤ PASSAGE ≤ 450x600 mm; 500x300 mm ≤ PASSAGE ≤ 1100x900 mm
  • Promatect L500 ≥ 50 mm | EI 120 (ved hod i o) S 1000 C300 AA multi | Passage 120 | Type de pose : monté sur conduit 0/90°/180°/270° | 300x300 mm ≤ PASSAGE ≤ 450x600 mm; 500x300 mm ≤ PASSAGE ≤ 1100x900 mm
  • Geotec ≥ 45 mm | EI 120 (ved hod i o) S 1000 C300 AA multi | Passage 120 | Type de pose : monté sur conduit 0/90°/180°/270° | 300x300 mm ≤ PASSAGE ≤ 450x600 mm; 500x300 mm ≤ PASSAGE ≤ 1100x900 mm
  • Maçonnerie, blocs de béton, béton ≥ 100 mm | EI 120 (ved i o) S 1000 C300 AA multi | Passage 120 | Type de pose : monté sur conduit 0/90°/180°/270° | 300x300 mm ≤ PASSAGE ≤ 450x600 mm; 500x300 mm ≤ PASSAGE ≤ 1100x900 mm
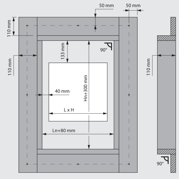
1
Faites une baie aux dimensions en relation avec L x H.
Prévoyez un manchon de montage en matériau du conduit autour du vantail avec des dimensions intérieures : (Ln + 80) x (Hn + 300) mm et profondeur d'installation: 110 mm.
2
Assurez-vous que les éléments du manchon sont toujours montés perpendiculairement les uns aux autres avec de la colle prête à l'emploi sans solvants.
Collez les éléments différents du manchon avec de la colle prête à l'emploi sans solvants. Pour les plaques de 30 mm d'épaisseur : agrafez ou vissez les pièces ensemble.
3
Prévoyez des trous de vis dans le manchon de montage à 50 mm du bord extérieur, à la fois dans les coins et au milieu.
Placez le manchon de montage sur la réservation du conduit et serrez. Assurez-vous que le haut de la réservation interne du manchon est monté à 133 mm du haut de la réservation dans le conduit lorsque le PASSAGE est orienté mécanisme en bas.
4
Après montage du manchon, appliquez du mastic acrylique résistant au feu à un composant, classification de réaction au feu E (par ex. Promaseal-A) autour du cadre pour une étanchéité optimale.
5
Placez le volet dans la réservation. Vissez le volet dans les deux profils latéraux avec les vis Ø 6 x 70 mm fournies, en respectant un pas minimal de 300 mm. Veillez à ne pas déformer le volet lors du vissage.
6
Colmatez la réservation entre le vantail et le manchon de montage avec un mastic acrylique résistant au feu à un composant, classification de réaction au feu E (par ex. Promaseal-A).
Branchez le mécanisme selon le schéma de raccordement.
Testez le bon fonctionnement du volet.
Même principe pour la mise en oeuvre du PASSAGE sous dalle.

Finition avec grille technique

1
Repliez les languettes de positionnement fournies à 90°.
2
Placez la grille sur la réservation du PASSAGE et vissez-la à travers les trous pré-percés à l'aide les vis autoperceuses 4,8 x 19 mm fournies.

Finition avec grille esthétique

1
Fixer dans les montants latéraux du PASSAGE à travers les trous pré-percés dans la grille, à l’aide de vis Ø 4,2 x 32 mm et entretoises de Ø 8 x 8 mm.

Remarques générales

  • L'installation doit être conforme au rapport de classement et à la notice technique.
  • Le montage de le conduit de désenfumage doit être conforme au rapport de classement du fabricant.
  • Orientation de l'axe: voir déclaration des performances.