- Home
- Producten
- Brandwerende kleppen
- MARKAGE FD
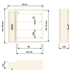
- Afmetingen
MARKAGE FD - Afmetingen
Gamma en afmetingen
Gewichten Scroll naar rechts/beneden om de volledige tabel te zien
| Hn\Bn [mm] | 200 | 250 | 300 | 350 | 400 | 450 | 500 | 550 | 600 | 650 | 700 | 750 | 800 | 850 | 900 | 950 | 1000 | |
|---|---|---|---|---|---|---|---|---|---|---|---|---|---|---|---|---|---|---|
| 200 | kg | 10,9 | 11,6 | 12,4 | 13,1 | 13,9 | 14,6 | 15,3 | 16,1 | 16,8 | 17,6 | 18,3 | 19,1 | 19,8 | 20,5 | 21,3 | 22,0 | 22,8 |
| 400 | kg | 16,5 | 17,4 | 18,4 | 19,3 | 20,2 | 21,2 | 22,1 | 23,1 | 24,0 | 24,9 | 25,9 | 26,8 | 27,8 | 28,7 | 29,6 | 30,6 | 31,5 |
| 600 | kg | 22,1 | 23,2 | 24,3 | 25,5 | 26,6 | 27,7 | 28,9 | 30,0 | 31,2 | 32,3 | 33,4 | 34,6 | 35,7 | 36,8 | 38,0 | 39,1 | 40,2 |
| 800 | kg | 27,9 | 29,3 | 30,6 | 32,0 | 33,3 | 34,6 | 36,0 | 37,3 | 38,6 | 40,0 | 41,3 | 42,6 | 44,0 | 45,3 | 46,6 | 48,0 | 49,3 |
| 1000 | kg | 33,4 | 35,0 | 36,5 | 38,0 | 39,6 | 41,1 | 42,6 | 44,2 | 45,7 | 47,2 | 48,7 | 50,3 | 51,8 | 53,3 | 54,9 | 56,4 | 57,9 |
| 1200 | kg | 39,3 | 41,0 | 42,7 | 44,5 | 46,2 | 47,9 | 49,7 | 51,4 | 53,1 | 54,9 | 56,6 | 58,3 | 60,0 | 61,8 | 63,5 | 65,2 | 67,0 |
| 1400 | kg | 44,9 | 46,8 | 48,7 | 50,7 | 52,6 | 54,5 | 56,4 | 58,4 | 60,3 | 62,2 | 64,1 | 66,1 | 68,0 | 69,9 | 71,8 | 73,8 | 75,7 |
| 1600 | kg | 50,6 | 52,7 | 54,9 | 56,1 | 59,1 | 61,2 | 63,4 | 65,5 | 67,6 | 69,7 | 71,9 | 74,0 | 76,1 | 78,2 | 80,3 | 82,5 | 84,6 |
| 1800 | kg | 56,5 | 58,8 | 61,1 | 63,4 | 65,7 | 68,1 | 70,4 | 72,7 | 75,0 | 77,3 | 79,7 | 82,0 | 84,3 | 86,6 | 89,0 | 91,3 | 93,6 |
| 2000 | kg | 61,9 | 64,5 | 67,0 | 69,5 | 72,0 | 74,5 | 77,1 | 79,6 | 82,1 | 84,6 | 87,1 | 89,6 | 92,2 | 94,7 | 97,2 | 100,7 | 102,2 |
| 2200 | kg | 67,5 | 70,2 | 72,9 | 75,7 | 78,4 | 81,1 | 83,8 | 86,5 | 89,2 | 92,0 | 94,7 | 97,4 | 100,1 | 102,8 | 104,6 | 108,2 | 111,0 |
| 2400 | kg | 73,3 | 76,2 | 79,1 | 82,0 | 84,9 | 87,8 | 90,7 | 93,7 | 96,6 | 99,5 | 102,4 | 105,3 | 108,2 | 111,1 | 111,8 | 114,7 | 119,9 |