CU-LT-1S - Installatie

Positie van de thermo-elektrische zekering (BFLT veerteruggangmotor)

1
Positie van de thermo-elektrische zekering op de tunnel van de klep: 1. op de tegenovergestelde wand van het mechanisme als H < 250 mm en B < 250 mm; 2. onderaan als H < 250 mm en B ≥ 250 mm; 3. op de mechanisme zijde als H ≥ 250 mm.

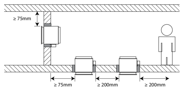
Plaatsing op minimale afstanden van een andere brandklep of van een aanpalende wand/vloer

1
Principe
Volgens de Europese testnorm EN 1366-2 bedraagt de minimaal vereiste afstand tussen 2 brandkleppen 200 mm en tussen een brandklep en een andere (draag)constructie 75 mm. Enkel als de klep op een kortere afstand van andere elementen werd getest mag ze ook zo geplaatst worden.

Plaatsing in massieve wand en vloer en in gipsblokkenwand

De klep werd getest in een cellenbeton wand met een dikte van 100 mm, in een cellenbetonvloer met een dikte van 150 mm alsook in een gipsblokkenwand met een dikte van 70 mm.

Het product werd getest en goedgekeurd in:
  • Cellenbeton ≥ 100 mm | EI 120 (ve i o) S - (500 Pa) | Niet van toepassing | Installatiemethode: opbouw, 0°/90°/180°/270° | 200x100 mm ≤ CU-LT-1s ≤ 800x600 mm
  • Cellenbeton ≥ 150 mm | EI 120 (ho i o) S - (500 Pa) | Niet van toepassing | Installatiemethode: opbouw, 0°/90°/180°/270° | 200x100 mm ≤ CU-LT-1s ≤ 800x600 mm
  • Gipsblokken ≥ 70 mm | EI 120 (ve i o) S - (500 Pa) | Niet van toepassing | Installatiemethode: opbouw, 0°/90°/180°/270° | 200x100 mm ≤ CU-LT-1s ≤ 800x600 mm

Plaatsing in flexibele wand (metal stud en gipskartonplaten)

De klep werd getest in een metal stud gipskarton wand met een brandweerstand van minimum 60' en een dikte van 100mm.

Het product werd getest en goedgekeurd in:
  • Metal stud gipsplatenwand Type F (EN 520) ≥ 100 mm | EI 90 (ve i o) S - (500 Pa) | Niet van toepassing | Installatiemethode: opbouw, 0°/90°/180°/270° | 200x100 mm ≤ CU-LT-1s ≤ 800x600 mm
  • Metal stud gipsplatenwand Type A (EN 520) ≥ 100 mm | EI 60 (ve i o) S - (500 Pa) | Niet van toepassing | Installatiemethode: opbouw, 0°/90°/180°/270° | 200x100 mm ≤ CU-LT-1s ≤ 800x600 mm

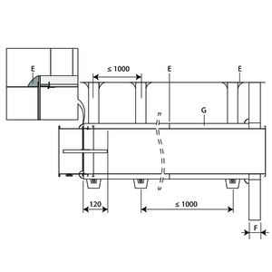
Plaatsing op afstand van de wand + GEOFLAM

Het product werd getest en goedgekeurd in:
  • Cellenbeton ≥ 100 mm | EI 120 (ve i o) S - (500 Pa) | Gegalvaniseerd kanaal + GEOFLAM® F 45 mm + mortel | Installatiemethode: montage op afstand, 0/180° | 200x100 mm ≤ CU-LT-1s ≤ 800x600 mm
3
In de wand wordt een opening met maximale afmetingen « A » voorzien.
4
De brandklep wordt op afstand gemonteerd tussen een metalen kanaal. Het kanaal wordt elke 1000 mm ondersteund.
De ophanging bestaat uit draadstangen « C » en stalen U-profielen « D ». Er is een afstand van ongeveer 25 mm tussen de draadstangen en de verticale wanden van de omkasting « B ».
5
De opening rond het kanaal in de wand wordt afgedicht met standaard mortel. Het kanaal wordt over zijn gehele lengte voorzien van staff platen type GEOFLAM F met dikte 45 mm of GEOFLAM Light met dikte 35 mm « G ».
De platen worden afgedicht met lijm en plaaster met vezels « E ». De tunnel van de klep wordt ook beschermd over een lengte van 120 mm.
6
De bescherming in staff GEOFLAM F stopt op 15 mm van de muur. De vrije ruimte tussen de muur en de omkasting uit staff wordt opgevuld met plaaster en vezels.
Deze opvulling wordt ook toegepast op de scheiding tussen de omkasting en de tunnel van de brandklep.
7
De draadstangen worden beschermd door ½ schelpen uit staff Ø 90 mm en bevestigd tussen hun door lijm en plaaster met vezels.
De profielen worden beschermd door een beschermend U-profiel uit GEOFLAM van 100 x 60 mm, gelijmd aan de onderzijde van de omkasting met lijmplaaster GEOCOL (GEOSTAFF).

Algemene opmerkingen

  • De plaatsing dient steeds te gebeuren conform het installatievoorschrift en het classificatierapport.
  • As oriëntatie: zie prestatieverklaring.
  • Vermijd obstructie van aansluitende kanalen.
  • Inbouw van het product: altijd met gesloten klepblad.
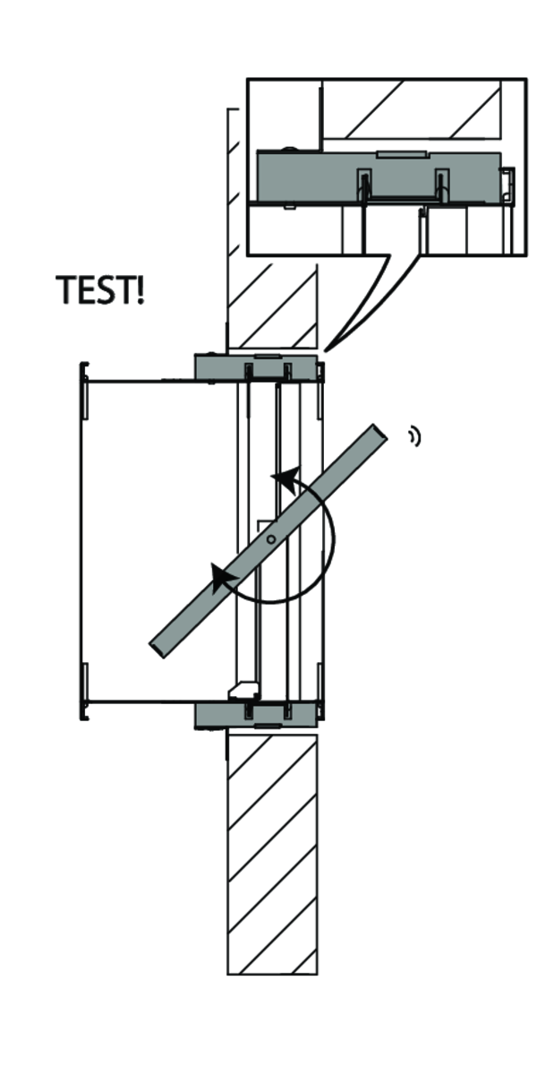
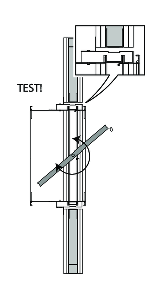
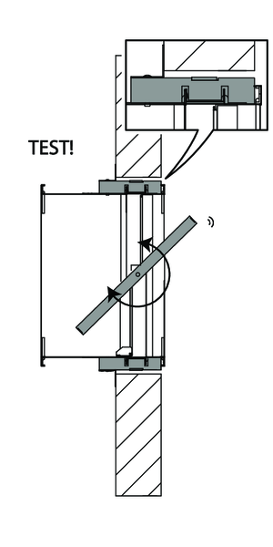
  • Kijk na of het klepblad vrij kan bewegen.
  • Bij montage dienen de veiligheidsafstanden t.o.v. andere constructie-elementen gerespecteerd te worden. Het bedieningsmechanisme moet ook toegankelijk zijn: voorzie een speling van 200 mm rond de behuizing.
  • De klasse van luchtdichtheid blijft behouden indien de installatie van de brandklep gebeurt conform de installatievoorschriften
  • Rf-t brandkleppen worden steeds getest in gestandaardiseerde draagconstructies volgens EN 1366-2. De behaalde resultaten gelden voor gelijksoortige draagconstructies met een brandweerstand, dikte en dichtheid gelijk aan of groter dan de draagconstructie van de test.
  • Als de wanddikte groter is dan de minimale dikte aangegeven in onze installatievoorschriften, gelden volgende voorwaarden voor de afdichtdiepte: - Bij flexibele wanden en sandwichpaneelsysteemwanden moet de afdichting steeds over de volledige diepte van de wand aangebracht worden. - Bij massieve wanden, massieve vloeren en gipsblokkenwanden volstaat de minimale afdichtdiepte zoals aangeduid in onze installatievoorschriften (vaak gelijk aan de minimale wanddikte). Afdichting aan te brengen ter hoogte van het klepblad (vanaf de wall limit aanduiding/inbouwaanslag).
  • Bij inbouw van een brandklep in een flexibele metal stud wand is het bij sommige installatiemethodes vanuit brandtechnisch oogpunt niet noodzakelijk om versterkingsprofielen rond de wandopening aan te brengen (zie verder). Hou voor opbouw van dit type wanden steeds rekening met de algemene instructies van de producent van deze wandsystemen.
  • De klep moet bereikbaar zijn voor inspectie en onderhoud.
  • Minstens 2 visuele controles per jaar zijn aangewezen.