CU-LT-1S - Installation

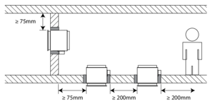
Installation à distance minimale d'un autre clapet ou d'une paroi adjacente

1
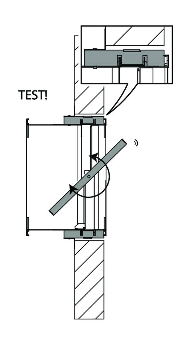
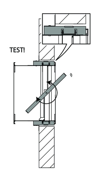
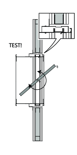
Principe
Selon la norme d’essai européenne, un clapet coupe-feu doit être installé à une distance minimale de 75 mm d’une paroi adjacente et de 200 mm d’un autre clapet, sauf si la solution a été testée à une distance inférieure.

Montage en paroi et dalle massive et en paroi carreaux de plâtre

Le clapet a été testé dans une paroi béton cellulaire d'épaisseur 100 mm, dans une dalle béton d'épaisseur 150 mm et dans une paroi carreaux de plâtre d'épaisseur 70 mm.

Le produit a été testé et approuvé en :
  • Béton cellulaire / béton (armé) ≥ 100 mm | EI 120 (ve i o) S - (500 Pa) | Sans calfeutrement | Type de pose : en applique, 0/90/180/270° | 200x100 mm ≤ CU-LT-1s ≤ 800x600 mm
  • Béton cellulaire / béton (armé) ≥ 150 mm | EI 120 (ho i o) S - (500 Pa) | Sans calfeutrement | Type de pose : en applique, 0/90/180/270° | 200x100 mm ≤ CU-LT-1s ≤ 800x600 mm
  • Carreaux de plâtre ≥ 70 mm | EI 120 (ve i o) S - (500 Pa) | Sans calfeutrement | Type de pose : en applique, 0/90/180/270° | 200x100 mm ≤ CU-LT-1s ≤ 800x600 mm

Montage en paroi flexible (ossature métallique et plaques de plâtre)

Le clapet a été testé dans une paroi metal stud plaques de plâtre avec une résistance au feu minimale de 60' et une épaisseur de 100 mm.

Le produit a été testé et approuvé en :
  • Ossature métallique et plaques de plâtre Type F (EN 520) ≥ 100 mm | EI 90 (ve i o) S - (500 Pa) | Sans calfeutrement | Type de pose : en applique, 0/90/180/270° | 200x100 mm ≤ CU-LT-1s ≤ 800x600 mm
  • Ossature métallique et plaques de plâtre Type A (EN 520) ≥ 100 mm | EI 60 (ve i o) S - (500 Pa) | Sans calfeutrement | Type de pose : en applique, 0/90/180/270° | 200x100 mm ≤ CU-LT-1s ≤ 800x600 mm

Pose déportée de la paroi + GEOFLAM

Le produit a été testé et approuvé en :
  • Béton cellulaire / béton (armé) ≥ 100 mm | EI 120 (ve i o) S - (500 Pa) | Gaine galvanisé + GEOFLAM® F 45 mm + mortier | Type de pose : pose déportée, 0/180° | 200x100 mm ≤ CU-LT-1s ≤ 800x600 mm
3
Une réservation de dimensions maximales « A » est réalisée au travers de la paroi.
4
Le clapet est monté déporté sur une gaine traversante en tôle d’acier galvanisé. Un supportage est mis en oeuvre au pas de 1000 mm.
Les suspentes sont composées de tiges filetées « C » et de rails de supportage « D ». Une distance d’environ 25 mm est respectée entre les tiges filetées et les faces verticales du gaine « B ».
5
La réservation autour de la gaine dans la paroi est remplie par du mortier standard. La gaine traversante est recouvert de plaques de staff de référence GEOFLAM F d’épaisseur 45 mm ou GEOFLAM Light d’épaisseur 35 mm « G ».
Les plaques sont fixées entre elles autour de la gaine par colle et polochonnage « E ». Le corps du clapet est également ainsi protégé sur une longueur de 120 mm.
6
La protection en staff GEOFLAM F s’arrête à 15 mm du mur. L’espace libre entre le mur et la protection en staff est comblé par bourrage de polochons (mélange de plâtre et de filasse).
Ce bourrage est également appliqué sur la jonction entre la gaine et le tunnel du clapet.
7
Les tiges filetées sont protégées par ½ coquilles en staff Ø 90 mm et maintenues entre elles par colle et polochonnage.
La traverse est protégée par un profilé en « U » de protection en GEOFLAM 100 x 60 mm, collé à la sous-face du gaine par du plâtre pour collage de type GEOCOL (GEOSTAFF).

Remarques générales

  • L'installation doit être conforme au rapport de classement et à la notice technique.
  • Orientation de l'axe: voir déclaration des performances.
  • Évitez l’obstruction des gaines connectées.
  • Installation du produit: toujours avec la lame fermée.
  • Vérifiez le libre mouvement de la lame mobile.
  • Respectez les distances de sécurité par rapport aux autres éléments constructifs. Le mécanisme de déclenchement doit également rester accessible : prévoyez pour cela un espace libre de 200 mm autour du boîtier.
  • La classe d'étanchéité à l'air est maintenue si l'installation du clapet se fait conformément à la notice technique.
  • Les clapets coupe-feu Rf-t sont toujours testés dans des châssis de supports standardisés conformément à la EN 1366-2. Les résultats obtenus sont valables pour tous les châssis de supports similaires qui ont une résistance au feu, une épaisseur et une densité similaire ou supérieure à celles du test.
  • Si l'épaisseur du mur dépasse l'épaisseur minimale indiquée dans nos instructions d'installation, les conditions suivantes s'appliquent à la profondeur du joint : - Pour les parois flexibles et les parois en système de panneaux sandwich, le joint doit toujours être appliqué sur toute la profondeur de la paroi. - Pour les parois massives, les dalles massives et les parois en blocs de plâtre, la profondeur de calfeutrement minimale indiquée dans nos instructions de pose (souvent égale à l'épaisseur minimale de la paroi) est suffisante. Appliquer le joint à la hauteur du clapet (à partir de l'indication de la limite du mur).
  • Lors de l'installation d'un clapet coupe-feu dans une paroi métallique flexible, certaines méthodes d'installation ne nécessitent pas la mise en place de profilés de renforcement autour de la réservation de la paroi du point de vue de la protection contre l'incendie (voir ci-dessous). Il convient de toujours suivre les instructions générales du fabricant de ces systèmes de parois lors de la construction de ce type de paroi.
  • Le clapet doit être accessible pour inspection et entretien.
  • Prévoyez au moins 2 contrôles visuels chaque année.