- Home
- Prodotti
- Serrande tagliafuoco
- CU2-L500
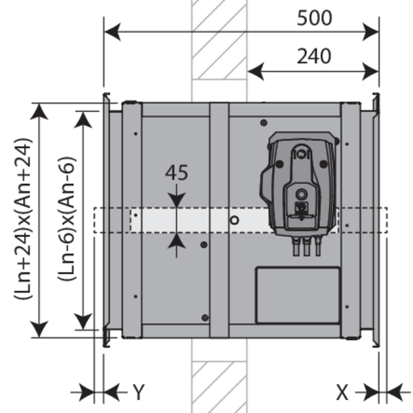
- Dimensioni
CU2-L500 - Dimensioni
Gamma e dimensioni
Pesi Scorri verso il basso/destra per visualizzare l'intera tabella
| An\Ln [mm] | 200 | 250 | 300 | 350 | 400 | 450 | 500 | 550 | 600 | 650 | 700 | 750 | 800 | 850 | 900 | 950 | 1000 | 1050 | 1100 | 1150 | 1200 | 1250 | 1300 | 1350 | 1400 | 1450 | 1500 | |
|---|---|---|---|---|---|---|---|---|---|---|---|---|---|---|---|---|---|---|---|---|---|---|---|---|---|---|---|---|
| 200 | kg | 9,8 | 11,0 | 12,1 | 13,3 | 14,4 | 15,6 | 16,8 | 17,9 | 19,1 | 20,2 | 21,4 | 22,5 | 23,7 | 24,8 | 26,0 | 27,2 | 28,3 | 27,7 | 28,9 | 30,0 | 31,2 | 32,3 | 33,5 | 34,6 | 35,8 | 37,0 | 38,1 |
| 250 | kg | 10,9 | 12,2 | 13,4 | 14,6 | 15,8 | 17,1 | 18,3 | 19,5 | 20,7 | 22,0 | 23,2 | 24,4 | 25,6 | 26,9 | 28,1 | 29,3 | 28,8 | 30,0 | 31,3 | 32,5 | 33,7 | 34,9 | 36,2 | 37,4 | 38,6 | 39,8 | 41,1 |
| 300 | kg | 12,0 | 13,3 | 14,6 | 15,9 | 17,2 | 18,5 | 19,8 | 21,1 | 22,4 | 23,7 | 25,0 | 26,3 | 27,6 | 28,9 | 30,2 | 29,7 | 31,0 | 32,3 | 33,6 | 34,9 | 36,2 | 37,5 | 38,8 | 40,1 | 41,4 | 42,7 | 44,0 |
| 350 | kg | 13,1 | 14,5 | 15,9 | 17,2 | 18,6 | 20,0 | 21,3 | 22,7 | 24,1 | 25,4 | 26,8 | 28,2 | 29,6 | 30,9 | 30,5 | 31,9 | 33,3 | 34,6 | 36,0 | 37,4 | 38,8 | 40,1 | 41,5 | 42,9 | 44,2 | 45,6 | 47,0 |
| 400 | kg | 14,2 | 15,7 | 17,1 | 18,5 | 20,0 | 21,4 | 22,9 | 24,3 | 25,7 | 27,2 | 28,6 | 30,1 | 31,5 | 31,2 | 32,6 | 34,1 | 35,5 | 37,0 | 38,4 | 39,8 | 41,3 | 42,7 | 44,2 | 45,6 | 47,0 | 48,5 | 49,9 |
| 450 | kg | 15,3 | 16,8 | 18,3 | 19,9 | 21,4 | 22,9 | 24,4 | 25,9 | 27,4 | 28,9 | 30,4 | 31,9 | 31,7 | 33,2 | 34,7 | 36,2 | 37,8 | 39,3 | 40,8 | 42,3 | 43,8 | 45,3 | 46,8 | 48,3 | 49,8 | 51,4 | 52,9 |
| 500 | kg | 16,4 | 18,0 | 19,6 | 21,2 | 22,8 | 24,3 | 25,9 | 27,5 | 29,1 | 30,7 | 32,2 | 32,1 | 33,7 | 35,2 | 36,8 | 38,4 | 40,0 | 41,6 | 43,2 | 44,7 | 46,3 | 47,9 | 49,5 | 51,1 | 52,7 | 54,2 | 55,8 |
| 550 | kg | 17,5 | 19,2 | 20,8 | 22,5 | 24,1 | 25,8 | 27,4 | 29,1 | 30,7 | 32,4 | 32,3 | 34,0 | 35,6 | 37,3 | 38,9 | 40,6 | 42,2 | 43,9 | 45,5 | 47,2 | 48,9 | 50,5 | 52,2 | 53,8 | 55,5 | 57,1 | 58,8 |
| 600 | kg | 18,6 | 20,3 | 22,1 | 23,8 | 25,5 | 27,2 | 29,0 | 30,7 | 32,4 | 32,4 | 34,1 | 35,8 | 37,6 | 39,3 | 41,0 | 42,7 | 44,5 | 46,2 | 47,9 | 49,6 | 51,4 | 53,1 | 54,8 | 56,6 | 58,3 | 60,0 | 61,7 |
| 650 | kg | 19,7 | 21,5 | 23,3 | 25,1 | 26,9 | 28,7 | 30,5 | 32,3 | 32,3 | 34,1 | 35,9 | 37,7 | 39,5 | 41,3 | 43,1 | 44,9 | 46,7 | 48,5 | 50,3 | 52,1 | 53,9 | 55,7 | 57,5 | 59,3 | 61,1 | 62,9 | 64,7 |
| 700 | kg | 20,8 | 22,7 | 24,5 | 26,4 | 28,3 | 30,1 | 32,0 | 32,1 | 34,0 | 35,9 | 37,7 | 39,6 | 41,5 | 43,3 | 45,2 | 47,1 | 48,9 | 50,8 | 52,7 | 54,6 | 56,4 | 58,3 | 60,2 | 62,0 | 63,9 | 65,8 | 67,6 |
| 750 | kg | 21,9 | 23,8 | 25,8 | 27,7 | 29,7 | 31,6 | 31,8 | 33,7 | 35,7 | 37,6 | 39,6 | 41,5 | 43,4 | 45,4 | 47,3 | 49,3 | 51,2 | 53,1 | 55,1 | 57,0 | 58,9 | 60,9 | 62,8 | 64,8 | 66,7 | 68,6 | 70,6 |
| 800 | kg | 23,0 | 25,0 | 27,0 | 29,0 | 31,1 | 31,3 | 33,3 | 35,3 | 37,3 | 39,4 | 41,4 | 43,4 | 45,4 | 47,4 | 49,4 | 51,4 | 53,4 | 55,4 | 57,4 | 59,5 | 61,5 | 63,5 | 65,5 | 67,5 | 69,5 | 71,5 | 73,5 |
| 850 | kg | 24,1 | 26,2 | 28,3 | 30,4 | 30,7 | 32,8 | 34,8 | 36,9 | 39,0 | 41,1 | 43,2 | 45,3 | 47,3 | 49,4 | 51,5 | 53,6 | 55,7 | 57,7 | 59,8 | 61,9 | 64,0 | 66,1 | 68,2 | 70,2 | 72,3 | 74,4 | 76,5 |
| 900 | kg | 25,2 | 27,4 | 29,5 | 29,9 | 32,1 | 34,2 | 36,4 | 38,5 | 40,7 | 42,8 | 45,0 | 47,1 | 49,3 | 51,5 | 53,6 | 55,8 | 57,9 | 60,1 | 62,2 | 64,4 | 66,5 | 68,7 | 70,8 | 73,0 | 75,1 | 77,3 | 79,4 |
| 950 | kg | 26,3 | 28,5 | 29,0 | 31,2 | 33,4 | 35,7 | 37,9 | 40,1 | 42,4 | 44,6 | 46,8 | 49,0 | 51,2 | 53,5 | 55,7 | 57,9 | 60,1 | 62,4 | 64,6 | 66,8 | 69,0 | 71,3 | 73,5 | 75,7 | 77,9 | 80,2 | 82,4 |
| 1000 | kg | 27,4 | 28,0 | 30,2 | 32,5 | 34,8 | 37,1 | 39,4 | 41,7 | 44,0 | 46,3 | 48,6 | 50,9 | 53,2 | 55,5 | 57,8 | 60,1 | 62,4 | 64,7 | 67,0 | 69,3 | 71,6 | 73,9 | 76,2 | 78,5 | 80,8 | 83,0 | 85,3 |