OUVRAGE - Installation

Installation in the facade with EASY-KAP mounting frame

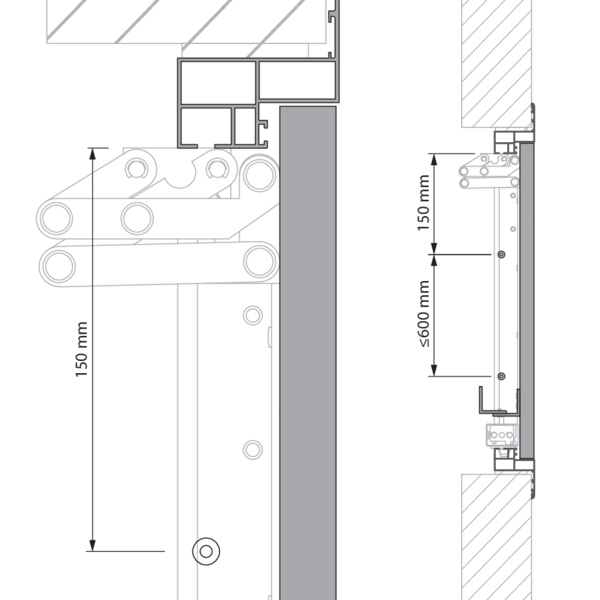
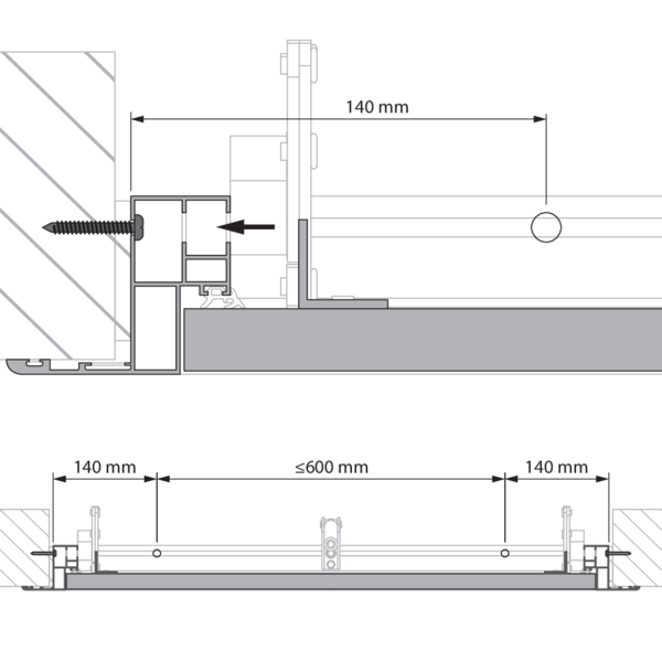
1

If the mounting frame is screwed in:





3


Test the proper operation of the shutter.

General remarks

  • The installation must comply with the installation manual and the classification report.
  • The installation of the smoke control duct must comply with the classification report delivered by the manufacturer.
  • Axis orientation: see the declaration of performance.
  • Avoid the obstruction of adjoining smoke control ducts.
  • Verify if the blade can move freely.
  • Rf-t smoke dampers may be applied to smoke control ducts that have been tested according to EN 1366-8 and EN 1366-9 as appropriate.
  • Caution: when fitting, the product should be handled with care and remain protected from any sealing products.
  • Caution: before putting the installation into operation, clean off all the dust and dirt.
  • Caution: bear in mind the blade’s clearance inside the smoke control duct.