- Home
- Products
- Smoke control dampers
- OUVRAGE
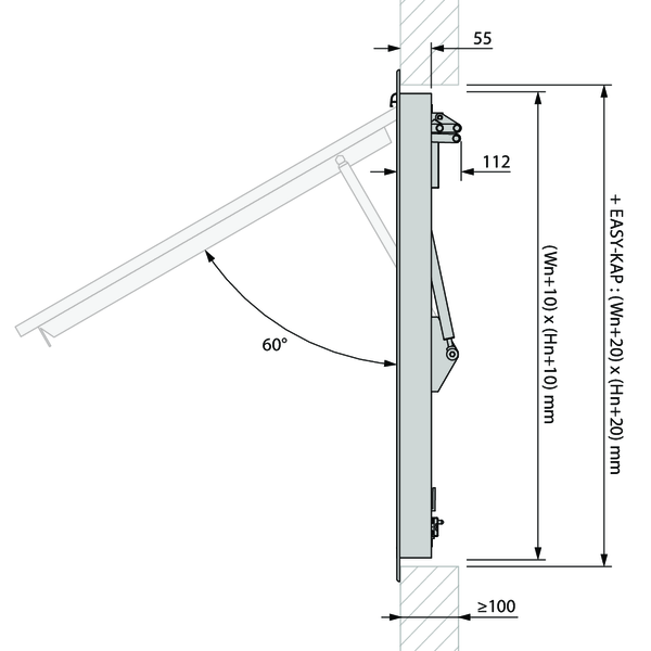
- Dimensions
OUVRAGE - Dimensions
Weights Scroll down/right to view the entire table
| Hn\Wn [mm] | 350 | 400 | 450 | 500 | 550 | 600 | 650 | 700 | 750 | 800 | 850 | 900 | 950 | 1000 | 1050 | 1100 | |
|---|---|---|---|---|---|---|---|---|---|---|---|---|---|---|---|---|---|
| 385 | kg | 3,4 | 3,6 | 3,9 | 4,1 | 4,3 | 4,6 | 4,8 | 5,1 | 5,3 | 5,5 | 5,8 | 6,0 | 6,2 | 6,5 | 6,7 | 7,0 |
| 415 | kg | 3,5 | 3,8 | 4,0 | 4,3 | 4,5 | 4,8 | 5,1 | 5,3 | 5,6 | 5,8 | 6,1 | 6,3 | 6,6 | 6,9 | 7,1 | 7,4 |
| 445 | kg | 3,6 | 3,9 | 4,2 | 4,5 | 4,7 | 5,0 | 5,3 | 5,6 | 5,9 | 6,1 | 6,4 | 6,7 | 7,0 | 7,2 | 7,5 | 7,8 |
| 475 | kg | 3,8 | 4,1 | 4,4 | 4,7 | 5,0 | 5,2 | 5,5 | 5,8 | 6,1 | 6,4 | 6,7 | 7,0 | 7,3 | 7,6 | 7,9 | 8,2 |
| 505 | kg | 3,9 | 4,2 | 4,5 | 4,8 | 5,2 | 5,5 | 5,8 | 6,1 | 6,4 | 6,7 | 7,0 | 7,3 | 7,7 | 8,0 | 8,3 | 8,6 |
| 535 | kg | 4,0 | 4,4 | 4,7 | 5,0 | 5,4 | 5,7 | 6,0 | 6,4 | 6,7 | 7,0 | 7,4 | 7,7 | 8,0 | 8,3 | 8,7 | 9,0 |
| 565 | kg | 4,7 | 5,0 | 5,4 | 5,7 | 6,1 | 6,4 | 6,8 | 7,1 | 7,5 | 7,8 | 8,2 | 8,5 | 8,9 | 9,2 | 9,6 | 9,9 |
| 595 | kg | 4,8 | 5,2 | 5,5 | 5,9 | 6,3 | 6,6 | 7,0 | 7,4 | 7,8 | 8,1 | 8,5 | 8,9 | 9,2 | 9,6 | 10,0 | 10,3 |
| 625 | kg | 4,9 | 5,3 | 5,7 | 6,1 | 6,5 | 6,9 | 7,3 | 7,6 | 8,0 | 8,4 | 8,8 | 9,2 | 9,6 | 10,0 | 10,4 | 10,7 |
| 655 | kg | 5,1 | 5,5 | 5,9 | 6,3 | 6,7 | 7,1 | 7,5 | 7,9 | 8,3 | 8,7 | 9,1 | 9,5 | 9,9 | 10,3 | 10,8 | 11,2 |
| 685 | kg | 5,2 | 5,6 | 6,0 | 6,5 | 6,9 | 7,3 | 7,7 | 8,2 | 8,6 | 9,0 | 9,4 | 9,9 | 10,3 | 10,7 | 11,1 | 11,6 |
| 715 | kg | 5,3 | 5,8 | 6,2 | 6,7 | 7,1 | 7,5 | 8,0 | 8,4 | 8,9 | 9,3 | 9,8 | 10,2 | 10,6 | 11,1 | 11,5 | 12,0 |
| 745 | kg | 5,5 | 5,9 | 6,4 | 6,8 | 7,3 | 7,8 | 8,2 | 8,7 | 9,2 | 9,6 | 10,1 | 10,5 | 11,0 | 11,5 | 11,9 | 12,4 |
| 775 | kg | 5,6 | 6,1 | 6,5 | 7,0 | 7,5 | 8,0 | 8,5 | 8,9 | 9,4 | 9,9 | 10,4 | 10,9 | 11,4 | 11,8 | 12,3 | 12,8 |
| 805 | kg | 5,7 | 6,2 | 6,7 | 7,2 | 7,7 | 8,2 | 8,7 | 9,2 | 9,7 | 10,2 | 10,7 | 11,2 | 11,7 | 12,2 | 12,7 | 13,2 |
| 835 | kg | 5,8 | 6,4 | 6,9 | 7,4 | 7,9 | 8,4 | 9,0 | 9,5 | 10,0 | 10,5 | 11,0 | 11,5 | 12,1 | 12,6 | 13,1 | 13,6 |
| 865 | kg | 6,0 | 6,5 | 7,0 | 7,6 | 8,1 | 8,7 | 9,2 | 9,7 | 10,3 | 10,8 | 11,3 | 11,9 | 12,4 | 12,9 | 13,5 | 14,0 |
| 895 | kg | 6,1 | 6,7 | 7,2 | 7,8 | 8,3 | 8,9 | 9,4 | 10,0 | 10,5 | 11,1 | 11,7 | 12,2 | 12,8 | 13,3 | 13,9 | 14,4 |
| 925 | kg | 6,2 | 6,8 | 7,4 | 8,0 | 8,5 | 9,1 | 9,7 | 10,3 | 10,8 | 11,4 | 12,0 | 12,5 | 13,1 | 13,7 | 14,3 | 14,8 |
| 955 | kg | 6,4 | 7,0 | 7,6 | 8,1 | 8,7 | 9,3 | 9,9 | 10,5 | 11,1 | 11,7 | 12,3 | 12,9 | 13,5 | 14,1 | 14,7 | 15,2 |
| 985 | kg | 6,5 | 7,1 | 7,7 | 8,3 | 8,9 | 9,6 | 10,2 | 10,8 | 11,4 | 12,0 | 12,6 | 13,2 | 13,8 | 14,4 | 15,0 | 15,7 |
| 1015 | kg | 6,6 | 7,3 | 7,9 | 8,5 | 9,1 | 9,8 | 10,4 | 11,0 | 11,7 | 12,3 | 12,9 | 13,5 | 14,2 | 14,8 | 15,4 | 16,1 |
| 1045 | kg | 6,8 | 7,4 | 8,1 | 8,7 | 9,3 | 10,0 | 10,6 | 11,3 | 11,9 | 12,6 | 13,2 | 13,9 | 14,5 | 15,2 | 15,8 | 16,5 |
| 1075 | kg | 6,9 | 7,6 | 8,2 | 8,9 | 9,6 | 10,2 | 10,9 | 11,6 | 12,2 | 12,9 | 13,6 | 14,2 | 14,9 | 15,6 | 16,2 | 16,9 |
| 1105 | kg | 7,0 | 7,7 | 8,4 | 9,1 | 9,8 | 10,4 | 11,1 | 11,8 | 12,5 | 13,2 | 13,9 | 14,6 | 15,2 | 15,9 | 16,6 | 17,3 |