Go to Rf-t homepage Open to innovation, closed to fire back
  • Home
    • Brand/brandgasspjäll
    • Brandspjäll med smältsäkring
    • Rökkontrollspjäll
    • Controllers
    • Brandcellsindelning
    • Rökevakuering
    • Rättsligt sammanhang
    • Brandspjäll och klimatanläggningar
    • Rf-Technologies
    • Kvalitet
    • Referenser
    • Karriär
    • Vanliga frågor
    • Logga in
    • Skapa ditt konto
    • Glömt ditt lösenord?
    • BIM
    • Calculation Tools
    • Prestandadeklarationer
    • Adress och vägbeskrivning
    • Inloggning
    • Säljteam
    • Efterförsäljning
    • België
    • Belgique
    • Deutschland
    • United Kingdom
    • France
    • Italia
    • Nederland
    • Schweiz
    • Suisse
    • Svenska
    • Europe (English)
©2025 Rf-Technologies NV/SA. Alla rättigheter förbehållna. Sekretess och ansvarsfriskrivning Allmänna villkor Platskarta
Rf-t Rf-t Open to innovation, closed to fire
  • Svenska

    Choose your language:

    • België
    • Belgique
    • Deutschland
    • United Kingdom
    • France
    • Italia
    • Nederland
    • Schweiz
    • Suisse
    • Svenska
    • Europe (English)
  • Logga in
  • Configurator
  • Om oss
  • Kontakta oss
Rf-t Open to innovation, closed to fire

VU120

  • Funktioner och komponenter
  • Dimensioner
  • Urval data
  • Montering
  • Klassificering
  • Dokument
  • Mekanismer
  • Tillbehör och kits
  • Flänsar (tidpunkten för beställning)
  • Home
  • Produkter
  • Rökkontrollspjäll
  • VU120
  • Flänsar (tidpunkten för beställning)

VU120 - Flänsar (tidpunkten för beställning)

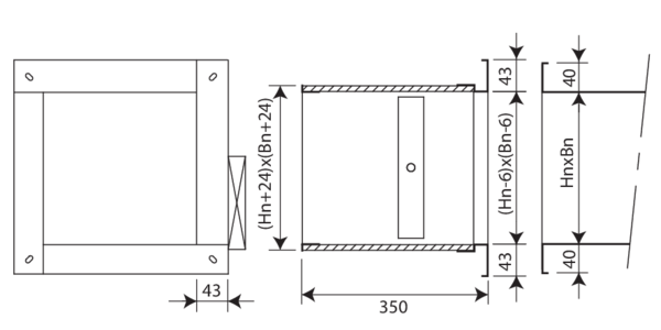
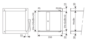
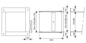
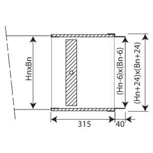
PS - Utan flänskant (standardfläns schaktsidan) Även möjlig på schaktsidan PG30, PG20, PG40 och PM.

PG30 - Anslutning till kanaler med 30 mm flänsar (antingen med gejdskena eller med skruvar). Även möjlig på schaktsidan istället för PS-anslutning (vid beställningen). Elliptiska hål Ø 8,5 x 16 mm.

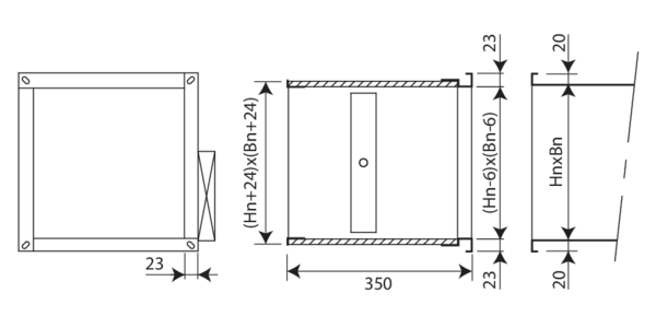
PG20 - Anslutning till kanaler med 20 mm flänsar, med elliptiska hål Ø 6,5 x 16 mm. Även möjlig på schaktsidan istället för PS-anslutning (vid beställningen).

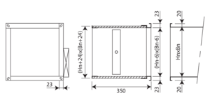
PG40 - Anslutning till kanaler med 40 mm flänsar, med elliptiska hål Ø 8,5 x 16 mm. Även möjlig på schaktsidan istället för PS- eller PG30-anslutning (vid beställningen).

PM - Anslutning till kanal genom inskjutning. Denna ram används när det inte finns plats för en standard PG30-ram. Kan användas på mekanismsidan istället för PG30-anslutning (vid beställningen).

PRJ - Cirkulär anslutning med gummitätning på rektangulärt spjäll med PG20-fläns. Kan användas på mekanismsidan istället för PG30-anslutning (vid beställningen).

PPT (+PG3V) - Galler som passar som skyddsgaller i slutet av en ventilationskanal. Den förlängda ramen PG3V ingår då spjällbladet är större än höljet. Kan användas på mekanismsidan istället för PG30-anslutning (vid beställningen).

  • Funktioner och komponenter
  • Dimensioner
  • Urval data
  • Montering
  • Klassificering
  • Dokument
  • Mekanismer
  • Tillbehör och kits
  • Flänsar (tidpunkten för beställning)
To top

Produkter

  • Brand/brandgasspjäll
  • Brandspjäll med smältsäkring
  • Rökkontrollspjäll
  • Controllers

Brandsäkerhet

  • Brandcellsindelning
  • Rökevakuering
  • Rättsligt sammanhang
  • Brandspjäll och klimatanläggningar

Om Rf-Technologies

  • Rf-Technologies
  • Kvalitet
  • Referenser
  • Karriär
  • Vanliga frågor

Min Rf-t

  • Logga in
  • Skapa ditt konto
  • Glömt ditt lösenord?
  • BIM
  • Calculation Tools
  • Prestandadeklarationer

Kontakt

  • Adress och vägbeskrivning
  • Inloggning
  • Säljteam
  • Efterförsäljning
©2025 Rf-Technologies NV/SA. Alla rättigheter förbehållna.
  • Sekretess och ansvarsfriskrivning
  • Allmänna villkor
  • Platskarta