- Home
- Produits
- Clapets coupe-feu
- CU2
- Installation
CU2 - Installation
Installation à distance minimale d'un autre clapet ou d'une paroi adjacente
Principe
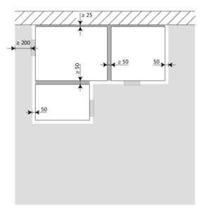
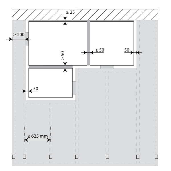
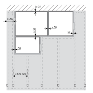
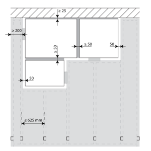
Selon la norme d’essai européenne EN 1366-2, un clapet coupe-feu doit être installé à une distance minimale de 75 mm d’une paroi adjacente et de 200 mm d’un autre clapet, sauf si la solution a été testée à une distance inférieure. Cette gamme de clapets Rf-t a été testée avec succès et peut être installée, en paroi verticale ou en dalle, à une distance inférieure au minimum imposé par la norme.
Pour les clapets rectangulaires, la distance minimale est fixée à 50 mm entre 2 clapets ou entre clapet et paroi verticale et à 25 mm entre clapet et dalle horizontale.
Selon la norme d’essai européenne EN 1366-2, un clapet coupe-feu doit être installé à une distance minimale de 75 mm d’une paroi adjacente et de 200 mm d’un autre clapet, sauf si la solution a été testée à une distance inférieure. Cette gamme de clapets Rf-t a été testée avec succès et peut être installée, en paroi verticale ou en dalle, à une distance inférieure au minimum imposé par la norme.
Pour les clapets rectangulaires, la distance minimale est fixée à 50 mm entre 2 clapets ou entre clapet et paroi verticale et à 25 mm entre clapet et dalle horizontale.
Solution certifiée
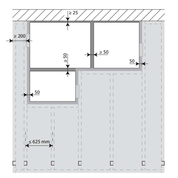
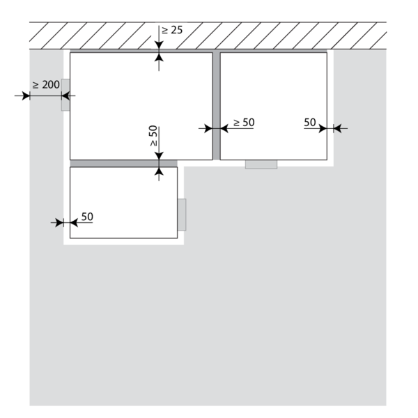
La solution certifiée pour les clapets Rf-t se compose des éléments suivants : A : colmatage universel distance minimale; B : colmatage selon déclaration des performances.
A. Colmatage de la réservation du côté des distances minimales par rapport à une paroi/dalle adjacente ou un autre clapet coupe-feu : des panneaux rigides de laine de roche (150 kg/m³) sont appliqués sur une profondeur de min. 400 mm, dont 150 mm sur le côté mécanique de la paroi. Les panneaux de laine de roche doivent au moins affleurer le mur.
Ce colmatage s’effectue sur toute la largeur/hauteur du clapet.
Lorsque le clapet est posé à une distance de 25 mm d’une dalle/plafond, les panneaux rigides de laine de roche à haute densité (A) peuvent être remplacés par de la laine de roche standard (40 kg/m³), compressée à 40% minimum.
B. Colmatage du reste de la réservation selon les solutions existantes (déclaration des performances).
Des informations détaillées pour chaque combinaison paroi/colmatage se trouvent sous les méthodes d'installation respectives.
La solution certifiée pour les clapets Rf-t se compose des éléments suivants : A : colmatage universel distance minimale; B : colmatage selon déclaration des performances.
A. Colmatage de la réservation du côté des distances minimales par rapport à une paroi/dalle adjacente ou un autre clapet coupe-feu : des panneaux rigides de laine de roche (150 kg/m³) sont appliqués sur une profondeur de min. 400 mm, dont 150 mm sur le côté mécanique de la paroi. Les panneaux de laine de roche doivent au moins affleurer le mur.
Ce colmatage s’effectue sur toute la largeur/hauteur du clapet.
Lorsque le clapet est posé à une distance de 25 mm d’une dalle/plafond, les panneaux rigides de laine de roche à haute densité (A) peuvent être remplacés par de la laine de roche standard (40 kg/m³), compressée à 40% minimum.
B. Colmatage du reste de la réservation selon les solutions existantes (déclaration des performances).
Des informations détaillées pour chaque combinaison paroi/colmatage se trouvent sous les méthodes d'installation respectives.
Limitations
La direction de l'axe de la lame est au choix de l’installateur: axe horizontal ou vertical.
Au maximum 2 clapets rectangulaires peuvent être installés à distance minimale l’un de l’autre, tant verticalement que horizontalement (avec un groupe de maximum 4 clapets).
Remarque : pour le colmatage à l’aide de panneaux de laine de roche coupe-feu, le nombre maximal de clapets dépend également de la surface maximale autorisée pour le matériau de colmatage sélectionné. Pour cette information, nous vous référons aux instructions du fabricant.
La direction de l'axe de la lame est au choix de l’installateur: axe horizontal ou vertical.
Au maximum 2 clapets rectangulaires peuvent être installés à distance minimale l’un de l’autre, tant verticalement que horizontalement (avec un groupe de maximum 4 clapets).
Remarque : pour le colmatage à l’aide de panneaux de laine de roche coupe-feu, le nombre maximal de clapets dépend également de la surface maximale autorisée pour le matériau de colmatage sélectionné. Pour cette information, nous vous référons aux instructions du fabricant.
Montage en paroi et dalle massive
Le produit a été testé et approuvé en :
- Béton cellulaire / béton (armé) ≥ 100 mm | EI 120 (ve i o) S - (500 Pa) | Plâtre | Type de pose : encastré 0/180°. Distances minimales autorisées. | 200x200 mm ≤ CU2 ≤ 1500x1000 mm
- Béton cellulaire / béton (armé) ≥ 150 mm | EI 120 (ho i o) S - (500 Pa) | Mortier | Type de pose : encastré 0/90/180/270°. Distances minimales autorisées. | 200x200 mm ≤ CU2 ≤ 1500x1000 mm
- Béton cellulaire / béton (armé) ≥ 100 mm | EI 120 (ve i o) S - (500 Pa) | Mortier | Type de pose : encastré 0/90/180/270°. Distances minimales autorisées. | 200x200 mm ≤ CU2 ≤ 1200x800 mm
- Béton cellulaire / béton (armé) ≥ 100 mm | EI 90 (ve i o) S - (500 Pa) | Plâtre | Type de pose : encastré 0/90/180/270°. Distances minimales autorisées. | 200x200 mm ≤ CU2 ≤ 1200x800 mm
- Béton cellulaire / béton (armé) ≥ 100 mm | EI 60 (ve i o) S - (500 Pa) | Mortier / Plâtre | Type de pose : encastré 0/90/180/270°. Distances minimales autorisées. | 1200x800 mm < CU2 ≤ 1500x1000 mm
- Béton cellulaire / béton (armé) ≥ 100 mm | E 120 (ve i o) S - (500 Pa) | Mortier / Plâtre | Type de pose : encastré 0/90/180/270°. Distances minimales autorisées. | 1200x800 mm < CU2 ≤ 1500x1000 mm
Les clapets peuvent être installés à distance minimale d'une dalle/d'un plafond (≥ 25 mm), d’une paroi ou d’un autre clapet (≥ 50 mm).
Installez et fixez les clapets dans la réservation.
Colmatez la réservation du côté des distances minimales à l’aide de panneaux rigides de laine de roche (≥ 150 kg/m³) sur une profondeur de 400 mm (150 mm du côté mécanique de la paroi).
Ce colmatage s’effectue sur toute la largeur/hauteur du clapet.
Lorsque le clapet est posé à une distance de 25 mm d’une dalle/plafond, les panneaux rigides de laine de roche à haute densité peuvent être remplacés par de la laine de roche standard (≥ 40 kg/m³, par ex. Rockfit 431), compressée à 40% minimum.
Colmatez la réservation du côté des distances minimales à l’aide de panneaux rigides de laine de roche (≥ 150 kg/m³) sur une profondeur de 400 mm (150 mm du côté mécanique de la paroi).
Ce colmatage s’effectue sur toute la largeur/hauteur du clapet.
Lorsque le clapet est posé à une distance de 25 mm d’une dalle/plafond, les panneaux rigides de laine de roche à haute densité peuvent être remplacés par de la laine de roche standard (≥ 40 kg/m³, par ex. Rockfit 431), compressée à 40% minimum.
Montage en paroi flexible (ossature métallique et plaques de plâtre)
Le produit a été testé et approuvé en :
- Ossature métallique et plaques de plâtre Type A (EN 520) ≥ 100 mm | EI 60 (ve i o) S - (500 Pa) | Laine de roche ≥ 40 kg/m³ + talons | Type de pose : encastré 0/180°. Distances minimales autorisées. | 200x200 mm ≤ CU2 ≤ 1200x800 mm
- Ossature métallique et plaques de plâtre Type F (EN 520) ≥ 100 mm | EI 90 (ve i o) S - (500 Pa) | Laine de roche ≥ 40 kg/m³ + talons | Type de pose : encastré 0/180°. Distances minimales autorisées. | 200x200 mm ≤ CU2 ≤ 1200x800 mm
Les clapets peuvent être installés à distance minimale d'une dalle/d'un plafond (≥ 25 mm), d’une paroi ou d’un autre clapet (≥ 50 mm).
Installez et fixez les clapets dans la réservation.
Colmatez la réservation du côté des distances minimales à l’aide de panneaux rigides de laine de roche (≥ 150 kg/m³) sur une profondeur de 400 mm (150 mm du côté mécanique de la paroi).
Ce colmatage s’effectue sur toute la largeur/hauteur du clapet.
Lorsque le clapet est posé à une distance de 25 mm d’une dalle/plafond, les panneaux rigides de laine de roche à haute densité peuvent être remplacés par de la laine de roche standard (≥ 40 kg/m³, par ex. Rockfit 431), compressée à 40% minimum.
Colmatez la réservation du côté des distances minimales à l’aide de panneaux rigides de laine de roche (≥ 150 kg/m³) sur une profondeur de 400 mm (150 mm du côté mécanique de la paroi).
Ce colmatage s’effectue sur toute la largeur/hauteur du clapet.
Lorsque le clapet est posé à une distance de 25 mm d’une dalle/plafond, les panneaux rigides de laine de roche à haute densité peuvent être remplacés par de la laine de roche standard (≥ 40 kg/m³, par ex. Rockfit 431), compressée à 40% minimum.
Montage en paroi flexible - ossature métallique et plâtre
Le produit a été testé et approuvé en :
- Ossature métallique et plaques de plâtre Type A (EN 520) ≥ 100 mm | EI 60 (ve i o) S - (500 Pa) | Plâtre | Type de pose : encastré 0/180°. Distances minimales autorisées. | 200x200 mm ≤ CU2 ≤ 1500x1000 mm
- Ossature métallique et plaques de plâtre Type F (EN 520) ≥ 100 mm | EI 120 (ve i o) S - (500 Pa) | Plâtre | Type de pose : encastré 0/180°. Distances minimales autorisées. | 200x200 mm ≤ CU2 ≤ 1500x1000 mm
Les clapets peuvent être installés à distance minimale d'une dalle/d'un plafond (≥ 25 mm), d’une paroi ou d’un autre clapet (≥ 50 mm).
Installez et fixez les clapets dans la réservation.
Colmatez la réservation du côté des distances minimales à l’aide de panneaux rigides de laine de roche (≥ 150 kg/m³) sur une profondeur de 400 mm (150 mm du côté mécanique de la paroi).
Ce colmatage s’effectue sur toute la largeur/hauteur du clapet.
Lorsque le clapet est posé à une distance de 25 mm d’une dalle/plafond, les panneaux rigides de laine de roche à haute densité peuvent être remplacés par de la laine de roche standard (≥ 40 kg/m³, par ex. Rockfit 431), compressée à 40% minimum.
Colmatez la réservation du côté des distances minimales à l’aide de panneaux rigides de laine de roche (≥ 150 kg/m³) sur une profondeur de 400 mm (150 mm du côté mécanique de la paroi).
Ce colmatage s’effectue sur toute la largeur/hauteur du clapet.
Lorsque le clapet est posé à une distance de 25 mm d’une dalle/plafond, les panneaux rigides de laine de roche à haute densité peuvent être remplacés par de la laine de roche standard (≥ 40 kg/m³, par ex. Rockfit 431), compressée à 40% minimum.
Montage en paroi carreaux de plâtre
Le produit a été testé et approuvé en :
- Carreaux de plâtre ≥ 100 mm | EI 120 (ve i o) S - (500 Pa) | Colle carreaux de plâtre | Type de pose : encastré 0/180°. Distances minimales autorisées. | 200x200 mm ≤ CU2 ≤ 1500x1000 mm
- Carreaux de plâtre ≥ 70 mm | EI 120 (ve i o) S - (500 Pa) | Colle carreaux de plâtre | Type de pose : encastré 0/180°. Distances minimales autorisées. | 200x200 mm ≤ CU2 ≤ 1200x800 mm
Les clapets peuvent être installés à distance minimale d'une dalle/d'un plafond (≥ 25 mm), d’une paroi ou d’un autre clapet (≥ 50 mm).
Installez et fixez les clapets dans la réservation.
Colmatez la réservation du côté des distances minimales à l’aide de panneaux rigides de laine de roche (≥ 150 kg/m³) sur une profondeur de 400 mm (150 mm du côté mécanique de la paroi).
Ce colmatage s’effectue sur toute la largeur/hauteur du clapet.
Lorsque le clapet est posé à une distance de 25 mm d’une dalle/plafond, les panneaux rigides de laine de roche à haute densité peuvent être remplacés par de la laine de roche standard (≥ 40 kg/m³, par ex. Rockfit 431), compressée à 40% minimum.
Colmatez la réservation du côté des distances minimales à l’aide de panneaux rigides de laine de roche (≥ 150 kg/m³) sur une profondeur de 400 mm (150 mm du côté mécanique de la paroi).
Ce colmatage s’effectue sur toute la largeur/hauteur du clapet.
Lorsque le clapet est posé à une distance de 25 mm d’une dalle/plafond, les panneaux rigides de laine de roche à haute densité peuvent être remplacés par de la laine de roche standard (≥ 40 kg/m³, par ex. Rockfit 431), compressée à 40% minimum.
Montage en paroi flexible (ossature métallique et plaques de plâtre)
Le produit a été testé et approuvé en :
- Ossature métallique et plaques de plâtre Type A (EN 520) ≥ 100 mm | EI 90 (ve i o) S - (500 Pa) | Laine de roche ≥ 60 kg/m³ | Type de pose : encastré 0/180°. Distances minimales autorisées. | 200x200 mm ≤ CU2 ≤ 1200x800 mm
- Ossature métallique et plaques de plâtre Type F (EN 520) ≥ 100 mm | EI 90 (ve i o) S - (500 Pa) | Laine de roche ≥ 60 kg/m³ | Type de pose : encastré 0/180°. Distances minimales autorisées. | 200x200 mm ≤ CU2 ≤ 1200x800 mm
Remarques générales
- L'installation doit être conforme au rapport de classement et à la notice technique.
- Orientation de l'axe: voir déclaration des performances.
- Évitez l’obstruction des gaines connectées.
- Installation du produit: toujours avec la lame fermée.
- Vérifiez le libre mouvement de la lame mobile.
- Respectez les distances de sécurité par rapport aux autres éléments constructifs. Le mécanisme de déclenchement doit également rester accessible : prévoyez pour cela un espace libre de 200 mm autour du boîtier.
- La classe d'étanchéité à l'air est maintenue si l'installation du clapet se fait conformément à la notice technique.
- Les clapets coupe-feu Rf-t sont toujours testés dans des châssis de supports standardisés conformément à la EN 1366-2. Les résultats obtenus sont valables pour tous les châssis de supports similaires qui ont une résistance au feu, une épaisseur et une densité similaire ou supérieure à celles du test.
- Si l'épaisseur du mur dépasse l'épaisseur minimale indiquée dans nos instructions d'installation, les conditions suivantes s'appliquent à la profondeur du joint : - Pour les parois flexibles et les parois en système de panneaux sandwich, le joint doit toujours être appliqué sur toute la profondeur de la paroi. - Pour les parois massives, les dalles massives et les parois en blocs de plâtre, la profondeur de calfeutrement minimale indiquée dans nos instructions de pose (souvent égale à l'épaisseur minimale de la paroi) est suffisante. Appliquer le joint à la hauteur du clapet (à partir de l'indication de la limite du mur).
- Lors de l'installation d'un clapet coupe-feu dans une paroi métallique flexible, certaines méthodes d'installation ne nécessitent pas la mise en place de profilés de renforcement autour de la réservation de la paroi du point de vue de la protection contre l'incendie (voir ci-dessous). Il convient de toujours suivre les instructions générales du fabricant de ces systèmes de parois lors de la construction de ce type de paroi.
- Le clapet doit être accessible pour inspection et entretien.
- Prévoyez au moins 2 contrôles visuels chaque année.