- Home
- Produits
- Clapets coupe-feu
- CU2-L500
- Installation
CU2-L500 - Installation
Installation à distance minimale d'un autre clapet ou d'une paroi adjacente
Principe
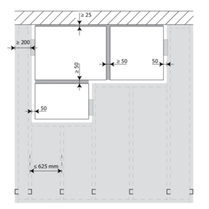
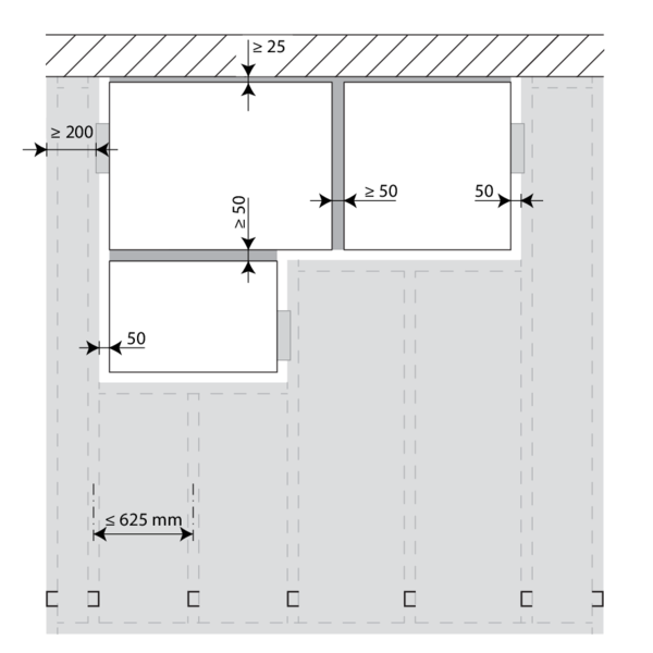
Selon la norme d’essai européenne EN 1366-2, un clapet coupe-feu doit être installé à une distance minimale de 75 mm d’une paroi/dalle adjacente et de 200 mm d’un autre clapet, sauf si la solution a été testée à une distance inférieure. Cette gamme de clapets Rf-t a été testée avec succès et peut être installée, en paroi verticale ou en dalle, à une distance inférieure au minimum imposé par la norme.
Pour les clapets rectangulaires, la distance minimale est fixée à 50 mm entre 2 clapets ou entre clapet et paroi verticale et à 25 mm entre clapet et dalle horizontale.
Selon la norme d’essai européenne EN 1366-2, un clapet coupe-feu doit être installé à une distance minimale de 75 mm d’une paroi/dalle adjacente et de 200 mm d’un autre clapet, sauf si la solution a été testée à une distance inférieure. Cette gamme de clapets Rf-t a été testée avec succès et peut être installée, en paroi verticale ou en dalle, à une distance inférieure au minimum imposé par la norme.
Pour les clapets rectangulaires, la distance minimale est fixée à 50 mm entre 2 clapets ou entre clapet et paroi verticale et à 25 mm entre clapet et dalle horizontale.
Solution certifiée
La solution certifiée pour les clapets Rf-t se compose des éléments suivants : A : colmatage universel distance minimale; B : colmatage selon déclaration des performances.
A. Colmatage de la réservation du côté des distances minimales par rapport à une paroi/dalle adjacente ou un autre clapet coupe-feu : des panneaux rigides de laine de roche (150 kg/m³) sont appliqués sur une profondeur de min. 400 mm, dont 150 mm sur le côté mécanique de la paroi. Les panneaux de laine de roche doivent au moins affleurer le mur.
Ce colmatage s’effectue sur toute la largeur/hauteur du clapet.
Lorsque le clapet est posé à une distance de 25 mm d’une dalle/plafond, les panneaux rigides de laine de roche à haute densité (A) peuvent être remplacés par de la laine de roche standard (40 kg/m³), compressée à 40% minimum.
B. Colmatage du reste de la réservation selon les solutions existantes (déclaration des performances).
Des informations détaillées pour chaque combinaison paroi/colmatage se trouvent sous les méthodes d'installation respectives.
La solution certifiée pour les clapets Rf-t se compose des éléments suivants : A : colmatage universel distance minimale; B : colmatage selon déclaration des performances.
A. Colmatage de la réservation du côté des distances minimales par rapport à une paroi/dalle adjacente ou un autre clapet coupe-feu : des panneaux rigides de laine de roche (150 kg/m³) sont appliqués sur une profondeur de min. 400 mm, dont 150 mm sur le côté mécanique de la paroi. Les panneaux de laine de roche doivent au moins affleurer le mur.
Ce colmatage s’effectue sur toute la largeur/hauteur du clapet.
Lorsque le clapet est posé à une distance de 25 mm d’une dalle/plafond, les panneaux rigides de laine de roche à haute densité (A) peuvent être remplacés par de la laine de roche standard (40 kg/m³), compressée à 40% minimum.
B. Colmatage du reste de la réservation selon les solutions existantes (déclaration des performances).
Des informations détaillées pour chaque combinaison paroi/colmatage se trouvent sous les méthodes d'installation respectives.
Limitations
La direction de l'axe de la lame est au choix de l’installateur: axe horizontal ou vertical.
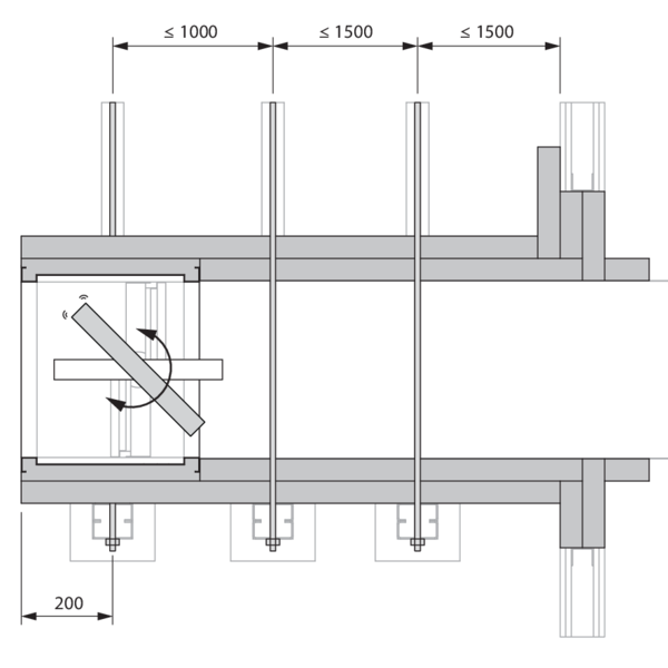
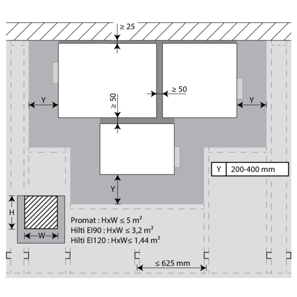
Au maximum 2 clapets rectangulaires peuvent être installés à distance minimale l’un de l’autre, tant verticalement que horizontalement (avec un groupe de maximum 4 clapets).
Remarque : pour le colmatage à l’aide de panneaux de laine de roche coupe-feu, le nombre maximal de clapets dépend également de la surface maximale autorisée pour le matériau de colmatage sélectionné. Pour cette information, nous vous référons aux instructions du fabricant.
La direction de l'axe de la lame est au choix de l’installateur: axe horizontal ou vertical.
Au maximum 2 clapets rectangulaires peuvent être installés à distance minimale l’un de l’autre, tant verticalement que horizontalement (avec un groupe de maximum 4 clapets).
Remarque : pour le colmatage à l’aide de panneaux de laine de roche coupe-feu, le nombre maximal de clapets dépend également de la surface maximale autorisée pour le matériau de colmatage sélectionné. Pour cette information, nous vous référons aux instructions du fabricant.
Montage en paroi et dalle massive
Le produit a été testé et approuvé en :
Les clapets peuvent être installés à distance minimale d'une dalle/d'un plafond (≥ 25 mm), d’une paroi ou d’un autre clapet (≥ 50 mm).
Installez et fixez les clapets dans la réservation.
Colmatez la réservation du côté des distances minimales à l’aide de panneaux rigides de laine de roche (≥ 150 kg/m³) sur une profondeur de 400 mm (150 mm du côté mécanique de la paroi).
Ce colmatage s’effectue sur toute la largeur/hauteur du clapet.
Lorsque le clapet est posé à une distance de 25 mm d’une dalle/plafond, les panneaux rigides de laine de roche à haute densité peuvent être remplacés par de la laine de roche standard (≥ 40 kg/m³, par ex. Rockfit 431), compressée à 40% minimum.
Colmatez la réservation du côté des distances minimales à l’aide de panneaux rigides de laine de roche (≥ 150 kg/m³) sur une profondeur de 400 mm (150 mm du côté mécanique de la paroi).
Ce colmatage s’effectue sur toute la largeur/hauteur du clapet.
Lorsque le clapet est posé à une distance de 25 mm d’une dalle/plafond, les panneaux rigides de laine de roche à haute densité peuvent être remplacés par de la laine de roche standard (≥ 40 kg/m³, par ex. Rockfit 431), compressée à 40% minimum.
Montage en paroi flexible (ossature métallique et plaques de plâtre)
Le produit a été testé et approuvé en :
Les clapets peuvent être installés à distance minimale d'une dalle/d'un plafond (≥ 25 mm), d’une paroi ou d’un autre clapet (≥ 50 mm).
Installez et fixez les clapets dans la réservation.
Colmatez la réservation du côté des distances minimales à l’aide de panneaux rigides de laine de roche (≥ 150 kg/m³) sur une profondeur de 400 mm (150 mm du côté mécanique de la paroi).
Ce colmatage s’effectue sur toute la largeur/hauteur du clapet.
Lorsque le clapet est posé à une distance de 25 mm d’une dalle/plafond, les panneaux rigides de laine de roche à haute densité peuvent être remplacés par de la laine de roche standard (≥ 40 kg/m³, par ex. Rockfit 431), compressée à 40% minimum.
Colmatez la réservation du côté des distances minimales à l’aide de panneaux rigides de laine de roche (≥ 150 kg/m³) sur une profondeur de 400 mm (150 mm du côté mécanique de la paroi).
Ce colmatage s’effectue sur toute la largeur/hauteur du clapet.
Lorsque le clapet est posé à une distance de 25 mm d’une dalle/plafond, les panneaux rigides de laine de roche à haute densité peuvent être remplacés par de la laine de roche standard (≥ 40 kg/m³, par ex. Rockfit 431), compressée à 40% minimum.
Montage en paroi flexible - ossature métallique et plâtre
Le produit a été testé et approuvé en :
Les clapets peuvent être installés à distance minimale d'une dalle/d'un plafond (≥ 25 mm), d’une paroi ou d’un autre clapet (≥ 50 mm).
Installez et fixez les clapets dans la réservation.
Colmatez la réservation du côté des distances minimales à l’aide de panneaux rigides de laine de roche (≥ 150 kg/m³) sur une profondeur de 400 mm (150 mm du côté mécanique de la paroi).
Ce colmatage s’effectue sur toute la largeur/hauteur du clapet.
Lorsque le clapet est posé à une distance de 25 mm d’une dalle/plafond, les panneaux rigides de laine de roche à haute densité peuvent être remplacés par de la laine de roche standard (≥ 40 kg/m³, par ex. Rockfit 431), compressée à 40% minimum.
Colmatez la réservation du côté des distances minimales à l’aide de panneaux rigides de laine de roche (≥ 150 kg/m³) sur une profondeur de 400 mm (150 mm du côté mécanique de la paroi).
Ce colmatage s’effectue sur toute la largeur/hauteur du clapet.
Lorsque le clapet est posé à une distance de 25 mm d’une dalle/plafond, les panneaux rigides de laine de roche à haute densité peuvent être remplacés par de la laine de roche standard (≥ 40 kg/m³, par ex. Rockfit 431), compressée à 40% minimum.
Montage en paroi flexible - ossature métallique et mortier
Le produit a été testé et approuvé en :
- Ossature métallique et plaques de plâtre Type A (EN 520) ≥ 100 mm | EI 60 (ve i o) S - (300 Pa) | Mortier | Type de pose : encastré 0/180°. Distances minimales autorisées. | 200x200 mm ≤ CU2 ≤ 1500x1000 mm
Les clapets peuvent être installés à distance minimale d'une dalle/d'un plafond (≥ 25 mm), d’une paroi ou d’un autre clapet (≥ 50 mm).
Installez et fixez les clapets dans la réservation.
Colmatez la réservation du côté des distances minimales à l’aide de panneaux rigides de laine de roche (≥ 150 kg/m³) sur une profondeur de 400 mm (150 mm du côté mécanique de la paroi).
Ce colmatage s’effectue sur toute la largeur/hauteur du clapet.
Lorsque le clapet est posé à une distance de 25 mm d’une dalle/plafond, les panneaux rigides de laine de roche à haute densité peuvent être remplacés par de la laine de roche standard (≥ 40 kg/m³, par ex. Rockfit 431), compressée à 40% minimum.
Colmatez la réservation du côté des distances minimales à l’aide de panneaux rigides de laine de roche (≥ 150 kg/m³) sur une profondeur de 400 mm (150 mm du côté mécanique de la paroi).
Ce colmatage s’effectue sur toute la largeur/hauteur du clapet.
Lorsque le clapet est posé à une distance de 25 mm d’une dalle/plafond, les panneaux rigides de laine de roche à haute densité peuvent être remplacés par de la laine de roche standard (≥ 40 kg/m³, par ex. Rockfit 431), compressée à 40% minimum.
Montage en paroi carreaux de plâtre
Le produit a été testé et approuvé en :
Les clapets peuvent être installés à distance minimale d'une dalle/d'un plafond (≥ 25 mm), d’une paroi ou d’un autre clapet (≥ 50 mm).
Installez et fixez les clapets dans la réservation.
Colmatez la réservation du côté des distances minimales à l’aide de panneaux rigides de laine de roche (≥ 150 kg/m³) sur une profondeur de 400 mm (150 mm du côté mécanique de la paroi).
Ce colmatage s’effectue sur toute la largeur/hauteur du clapet.
Lorsque le clapet est posé à une distance de 25 mm d’une dalle/plafond, les panneaux rigides de laine de roche à haute densité peuvent être remplacés par de la laine de roche standard (≥ 40 kg/m³, par ex. Rockfit 431), compressée à 40% minimum.
Colmatez la réservation du côté des distances minimales à l’aide de panneaux rigides de laine de roche (≥ 150 kg/m³) sur une profondeur de 400 mm (150 mm du côté mécanique de la paroi).
Ce colmatage s’effectue sur toute la largeur/hauteur du clapet.
Lorsque le clapet est posé à une distance de 25 mm d’une dalle/plafond, les panneaux rigides de laine de roche à haute densité peuvent être remplacés par de la laine de roche standard (≥ 40 kg/m³, par ex. Rockfit 431), compressée à 40% minimum.
Montage en paroi flexible et massive, calfeutrement à l'aide de panneaux de laine de roche rigides et enduit
Le produit a été testé et approuvé en :
Le colmatage s'effectue au moyen de 2 couches de panneaux de laine minérale d'épaisseur 50 mm recouverte d'enduit coupe-feu sur une face (type PROMASTOP-CB 50 / PROMASTOP-CB/CC 50 / HILTI CFS-CT B / Mulcol Multimastic FB1 / PYRO-SAFE® FLAMMOTECT-A).
Les 2 couches sont posées à joints décalés et ces joints sont recouverts sur tout le contour du panneau d'enduit de type PROMASTOP-CC / HILTI CFS-S-ACR / Mulcol Multimastic SP / PYRO-SAFE® FLAMMOTECT-A.
Le clapet peut mais ne doit pas être centré dans la réservation (de dimensions maximales clapet + 600 mm). Une distance maximale de 400 mm doit être respectée par rapport au bord de la réservation.
Les clapets peuvent être installés à distance minimale d'une dalle/d'un plafond (≥ 25 mm), d’une paroi ou d’un autre clapet (≥ 50 mm).
Installez et fixez les clapets dans la réservation.
Colmatez la réservation du côté des distances minimales à l’aide de panneaux rigides de laine de roche (≥ 150 kg/m³) sur une profondeur de 400 mm (150 mm du côté mécanique de la paroi).
Ce colmatage s’effectue sur toute la largeur/hauteur du clapet.
Lorsque le clapet est posé à une distance de 25 mm d’une dalle/plafond, les panneaux rigides de laine de roche à haute densité peuvent être remplacés par de la laine de roche standard (≥ 40 kg/m³, par ex. Rockfit 431), compressée à 40% minimum.
Colmatez la réservation du côté des distances minimales à l’aide de panneaux rigides de laine de roche (≥ 150 kg/m³) sur une profondeur de 400 mm (150 mm du côté mécanique de la paroi).
Ce colmatage s’effectue sur toute la largeur/hauteur du clapet.
Lorsque le clapet est posé à une distance de 25 mm d’une dalle/plafond, les panneaux rigides de laine de roche à haute densité peuvent être remplacés par de la laine de roche standard (≥ 40 kg/m³, par ex. Rockfit 431), compressée à 40% minimum.
Pose déportée de la paroi, calfeutrement et isolation à l'aide de panneaux de laine de roche rigides et enduit
*Pour un classement jusqu'à EI 60 S : panneaux de laine de roche pré-enduit de type PYRO-SAFE® FLAMMOTECT-A peuvent être remplacés par un type similaire de panneau de laine de roche présentant au moins la même classe de réaction au feu, la même densité et la même épaisseur (testé selon EN 1366-3).
Le produit a été testé et approuvé en :
- Béton cellulaire ≥ 100 mm | EI 90 (ve i o) S - (300 Pa) | Gaine galvanisé + panneaux de laine de roche + enduit ≥ 150 kg/m³ 2x50 mm | Type de pose : pose déportée, 0/180° | 200x200 mm ≤ CU2 ≤ 1500x1000 mm
- Ossature métallique et plaques de plâtre Type A (EN 520) ≥ 100 mm | EI 60 (ve i o) S - (300 Pa) | Gaine galvanisé + panneaux de laine de roche + enduit ≥ 150 kg/m³ 2x50 mm | Type de pose : pose déportée, 0/180° | 200x200 mm ≤ CU2 ≤ 1500x1000 mm
- Ossature métallique et plaques de plâtre Type F (EN 520) ≥ 100 mm | EI 90 (ve i o) S - (300 Pa) | Gaine galvanisé + panneaux de laine de roche + enduit ≥ 150 kg/m³ 2x50 mm | Type de pose : pose déportée, 0/180° | 200x200 mm ≤ CU2 ≤ 1500x1000 mm
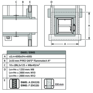
Une réservation de maximum (Ln+600 mm) x (Hn+600 mm) est prévue dans la paroi à travers laquelle passe la gaine de ventilation. La réservation autour de la gaine dans la paroi sera scellée avec une couche de laine de roche enduite de type PYRO-SAFE® FLAMMOTECT-A. Les bords seront scellés avec de la pâte PYRO-SAFE® FLAMMOTECT-A pour assurer l'étanchéité des panneaux.
La totalité de la longueur du gaine et de la clapet coupe-feu sera revêtue de panneaux de laine de roche enduites. Pour fixer les panneaux à la gaine, elles seront enduites de pâte coupe-feu sur le côté le long de la gaine et sur les bords et fixées avec des vis et des rondelles (C). Les panneaux au niveau du clapet coupe-feu sont ajustées de manière à former une surface unique avec les panneaux de la gaine de ventilation, en laissant un espace pour le mécanisme.
La deuxième couche de laine de roche enduite est placée dans la paroi dont les bords sont scellés avec de la pâte coupe-feu.
Sur la paroi latérale du clapet, une couche supplémentaire de panneaux de laine de roche enduites est ajoutée en haut, en chevauchant de 100 mm la paroi sur les deux côtés et le haut. Les bords de ces panneaux sont également pourvus d'une couche de pâte coupe-feu.
Une deuxième couche de panneaux de laine de roche enduites est ajoutée autour de la gaine et du clapet coupe-feu, et les bords des panneaux sont à nouveau traités avec une couche de pâte coupe-feu. Les panneaux sont fixées avec des vis et des rondelles (C).
Le support est installé et les profilés ainsi que les tiges filetées sont enveloppés d'une couche de panneaux de laine de roche enduites. De la pâte coupe-feu est appliquée sur les bords.
Montage en dalle massive, calfeutrement à l'aide de panneaux de laine de roche rigides et enduit
Le produit a été testé et approuvé en :
Le colmatage s'effectue au moyen de 2 couches de panneaux de laine minérale d'épaisseur 50 mm recouverte d'enduit coupe-feu sur une face (type PROMASTOP-CB 50 / PROMASTOP-CB/CC 50 / HILTI CFS-CT B).
Les 2 couches sont posées à joints décalés et ces joints sont recouverts sur tout le contour du panneau d'enduit de type PROMASTOP-CC / HILTI CFS-S-ACR.
Remarques générales
- L'installation doit être conforme au rapport de classement et à la notice technique.
- Orientation de l'axe: voir déclaration des performances.
- Évitez l’obstruction des gaines connectées.
- Installation du produit: toujours avec la lame fermée.
- Vérifiez le libre mouvement de la lame mobile.
- Respectez les distances de sécurité par rapport aux autres éléments constructifs. Le mécanisme de déclenchement doit également rester accessible : prévoyez pour cela un espace libre de 200 mm autour du boîtier.
- La classe d'étanchéité à l'air est maintenue si l'installation du clapet se fait conformément à la notice technique.
- Les clapets coupe-feu Rf-t sont toujours testés dans des châssis de supports standardisés conformément à la EN 1366-2. Les résultats obtenus sont valables pour tous les châssis de supports similaires qui ont une résistance au feu, une épaisseur et une densité similaire ou supérieure à celles du test.
- Si l'épaisseur du mur dépasse l'épaisseur minimale indiquée dans nos instructions d'installation, les conditions suivantes s'appliquent à la profondeur du joint : - Pour les parois flexibles et les parois en système de panneaux sandwich, le joint doit toujours être appliqué sur toute la profondeur de la paroi. - Pour les parois massives, les dalles massives et les parois en blocs de plâtre, la profondeur de calfeutrement minimale indiquée dans nos instructions de pose (souvent égale à l'épaisseur minimale de la paroi) est suffisante. Appliquer le joint à la hauteur du clapet (à partir de l'indication de la limite du mur).
- Lors de l'installation d'un clapet coupe-feu dans une paroi métallique flexible, certaines méthodes d'installation ne nécessitent pas la mise en place de profilés de renforcement autour de la réservation de la paroi du point de vue de la protection contre l'incendie (voir ci-dessous). Il convient de toujours suivre les instructions générales du fabricant de ces systèmes de parois lors de la construction de ce type de paroi.
- Le clapet doit être accessible pour inspection et entretien.
- Prévoyez au moins 2 contrôles visuels chaque année.