- Home
- Produits
- Clapets coupe-feu
- CU-LT
- Installation
CU-LT - Installation
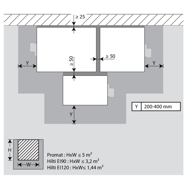
Installation à distance minimale d'un autre clapet ou d'une paroi adjacente
Principe
Selon la norme d’essai européenne EN 1366-2, un clapet coupe-feu doit être installé à une distance minimale de 75 mm d’une paroi/dalle adjacente et de 200 mm d’un autre clapet, sauf si la solution a été testée à une distance inférieure. Cette gamme de clapets Rf-t a été testée avec succès et peut être installée, en paroi verticale ou en dalle, à une distance inférieure au minimum imposé par la norme.
Pour les clapets rectangulaires, la distance minimale est fixée à 50 mm entre 2 clapets ou entre clapet et paroi verticale et à 25 mm entre clapet et dalle horizontale.
Selon la norme d’essai européenne EN 1366-2, un clapet coupe-feu doit être installé à une distance minimale de 75 mm d’une paroi/dalle adjacente et de 200 mm d’un autre clapet, sauf si la solution a été testée à une distance inférieure. Cette gamme de clapets Rf-t a été testée avec succès et peut être installée, en paroi verticale ou en dalle, à une distance inférieure au minimum imposé par la norme.
Pour les clapets rectangulaires, la distance minimale est fixée à 50 mm entre 2 clapets ou entre clapet et paroi verticale et à 25 mm entre clapet et dalle horizontale.
Solution certifiée
La solution certifiée pour les clapets Rf-t se compose des éléments suivants : A : colmatage universel distance minimale; B : colmatage selon déclaration des performances.
A. Colmatage de la réservation du côté des distances minimales par rapport à une paroi/dalle adjacente ou un autre clapet coupe-feu : des panneaux rigides de laine de roche (150 kg/m³) sont appliqués sur une profondeur de min. 400 mm, dont 150 mm sur le côté mécanique de la paroi. Les panneaux de laine de roche doivent au moins affleurer le mur.
Ce colmatage s’effectue sur toute la largeur/hauteur du clapet.
Lorsque le clapet est posé à une distance de 25 mm d’une dalle/plafond, les panneaux rigides de laine de roche à haute densité (A) peuvent être remplacés par de la laine de roche standard (40 kg/m³), compressée à 40% minimum.
B. Colmatage du reste de la réservation selon les solutions existantes (déclaration des performances).
Des informations détaillées pour chaque combinaison paroi/colmatage se trouvent sous les méthodes d'installation respectives.
La direction de l'axe de la lame est au choix de l’installateur: axe horizontal ou vertical.
La solution certifiée pour les clapets Rf-t se compose des éléments suivants : A : colmatage universel distance minimale; B : colmatage selon déclaration des performances.
A. Colmatage de la réservation du côté des distances minimales par rapport à une paroi/dalle adjacente ou un autre clapet coupe-feu : des panneaux rigides de laine de roche (150 kg/m³) sont appliqués sur une profondeur de min. 400 mm, dont 150 mm sur le côté mécanique de la paroi. Les panneaux de laine de roche doivent au moins affleurer le mur.
Ce colmatage s’effectue sur toute la largeur/hauteur du clapet.
Lorsque le clapet est posé à une distance de 25 mm d’une dalle/plafond, les panneaux rigides de laine de roche à haute densité (A) peuvent être remplacés par de la laine de roche standard (40 kg/m³), compressée à 40% minimum.
B. Colmatage du reste de la réservation selon les solutions existantes (déclaration des performances).
Des informations détaillées pour chaque combinaison paroi/colmatage se trouvent sous les méthodes d'installation respectives.
La direction de l'axe de la lame est au choix de l’installateur: axe horizontal ou vertical.
Limitations
Au maximum 2 clapets rectangulaires peuvent être installés à distance minimale l’un de l’autre, tant verticalement que horizontalement (avec un groupe de maximum 4 clapets).
Remarque : pour le colmatage à l’aide de panneaux de laine de roche coupe-feu, le nombre maximal de clapets dépend également de la surface maximale autorisée pour le matériau de colmatage sélectionné. Pour cette information, nous vous référons aux instructions du fabricant.
Remarque : des conditions distinctes s'appliquent à l'installation dans une paroi flexible (contre cloison) et dans une paroi CLT. Des informations détaillées peuvent être trouvées dans les méthodes d'installation correspondantes.
Au maximum 2 clapets rectangulaires peuvent être installés à distance minimale l’un de l’autre, tant verticalement que horizontalement (avec un groupe de maximum 4 clapets).
Remarque : pour le colmatage à l’aide de panneaux de laine de roche coupe-feu, le nombre maximal de clapets dépend également de la surface maximale autorisée pour le matériau de colmatage sélectionné. Pour cette information, nous vous référons aux instructions du fabricant.
Remarque : des conditions distinctes s'appliquent à l'installation dans une paroi flexible (contre cloison) et dans une paroi CLT. Des informations détaillées peuvent être trouvées dans les méthodes d'installation correspondantes.
Montage en paroi et dalle massive
Le produit a été testé et approuvé en :
- Béton cellulaire ≥ 100 mm | EI 90 (ve i o) S - (500 Pa) | Mortier | Type de pose : encastré 0/90/180/270°. Distances minimales autorisées. | 200x100 mm ≤ CU-LT ≤ 800x600 mm
- Béton cellulaire ≥ 100 mm | EI 120 (ve i o) S - (500 Pa) | Plâtre | Type de pose : encastré 0/90/180/270°. Distances minimales autorisées. | 200x100 mm ≤ CU-LT ≤ 800x600 mm
- Béton armé ≥ 110 mm | EI 90 (ho i o) S - (500 Pa) | Mortier | Type de pose : encastré 0/90/180/270°. Distances minimales autorisées. | 200x100 mm ≤ CU-LT ≤ 800x600 mm
- Béton armé ≥ 150 mm | EI 120 (ho i o) S - (500 Pa) | Plâtre | Type de pose : encastré 0/90/180/270°. Distances minimales autorisées. | 200x100 mm ≤ CU-LT ≤ 800x600 mm
Les clapets peuvent être installés à distance minimale d'une dalle/d'un plafond (≥ 25 mm), d’une paroi ou d’un autre clapet (≥ 50 mm).
Installez et fixez les clapets dans la réservation.
Colmatez la réservation du côté des distances minimales à l’aide de panneaux rigides de laine de roche (≥ 150 kg/m³) sur une profondeur de 400 mm (150 mm du côté mécanique de la paroi).
Ce colmatage s’effectue sur toute la largeur/hauteur du clapet.
Lorsque le clapet est posé à une distance de 25 mm d’une dalle/plafond, les panneaux rigides de laine de roche à haute densité peuvent être remplacés par de la laine de roche standard (≥ 40 kg/m³, par ex. Rockfit 431), compressée à 40% minimum.
Colmatez la réservation du côté des distances minimales à l’aide de panneaux rigides de laine de roche (≥ 150 kg/m³) sur une profondeur de 400 mm (150 mm du côté mécanique de la paroi).
Ce colmatage s’effectue sur toute la largeur/hauteur du clapet.
Lorsque le clapet est posé à une distance de 25 mm d’une dalle/plafond, les panneaux rigides de laine de roche à haute densité peuvent être remplacés par de la laine de roche standard (≥ 40 kg/m³, par ex. Rockfit 431), compressée à 40% minimum.
Montage en paroi massive avec bloc d'installation IFW
Le produit a été testé et approuvé en :
- Béton cellulaire ≥ 105 mm | EI 90 (ve i o) S - (300 Pa) | Bloc d'installation IFW | Type de pose : encastré 0/90/180/270°. Distances minimales autorisées. | 200x100 mm ≤ CU-LT ≤ 800x600 mm
- Béton cellulaire ≥ 100 mm | EI 90 (ve i o) S - (500 Pa) | Bloc d'installation IFW | Type de pose : encastré 0/90/180/270° | 200x100 mm ≤ CU-LT ≤ 800x600 mm
Montage en paroi flexible (ossature métallique et plaques de plâtre) avec bloc d'installation IFW
Le produit a été testé et approuvé en :
- Ossature métallique et plaques de plâtre Type A (EN 520) ≥ 100 mm | EI 60 (ve i o) S - (500 Pa) | Bloc d'installation IFW | Type de pose : encastré 0/90/180/270° | 200x100 mm ≤ CU-LT ≤ 800x600 mm
- Ossature métallique et plaques de plâtre Type F (EN 520) ≥ 100 mm | EI 90 (ve i o) S - (500 Pa) | Bloc d'installation IFW | Type de pose : encastré 0/90/180/270° | 200x100 mm ≤ CU-LT ≤ 800x600 mm
Montage en paroi flexible - ossature métallique et plâtre
Le produit a été testé et approuvé en :
- Ossature métallique et plaques de plâtre Type A (EN 520) ≥ 100 mm | EI 60 (ve i o) S - (500 Pa) | Plâtre | Type de pose : encastré 0/90/180/270°. Distances minimales autorisées. | 200x100 mm ≤ CU-LT ≤ 800x600 mm
- Ossature métallique et plaques de plâtre Type F (EN 520) ≥ 100 mm | EI 90 (ve i o) S - (500 Pa) | Plâtre | Type de pose : encastré 0/90/180/270°. Distances minimales autorisées. | 200x100 mm ≤ CU-LT ≤ 800x600 mm
Les clapets peuvent être installés à distance minimale d'une dalle/d'un plafond (≥ 25 mm), d’une paroi ou d’un autre clapet (≥ 50 mm).
Assemblez la paroi légère en prévoyant un chevêtre autour de la réservation.
Lors du montage d'un seul clapet coupe-feu à distance minimale du plafond, il n'est pas nécessaire, du point de vue de la protection incendie, de prévoir un chevêtre autour de la réservation.
Lors du montage d'un seul clapet coupe-feu à distance minimale du plafond, il n'est pas nécessaire, du point de vue de la protection incendie, de prévoir un chevêtre autour de la réservation.
Installez et fixez les clapets dans la réservation.
Colmatez la réservation du côté des distances minimales à l’aide de panneaux rigides de laine de roche (≥ 150 kg/m³) sur une profondeur de 400 mm (150 mm du côté mécanique de la paroi).
Ce colmatage s’effectue sur toute la largeur/hauteur du clapet.
Lorsque le clapet est posé à une distance de 25 mm d’une dalle/plafond, les panneaux rigides de laine de roche à haute densité peuvent être remplacés par de la laine de roche standard (≥ 40 kg/m³, par ex. Rockfit 431), compressée à 40% minimum.
Colmatez la réservation du côté des distances minimales à l’aide de panneaux rigides de laine de roche (≥ 150 kg/m³) sur une profondeur de 400 mm (150 mm du côté mécanique de la paroi).
Ce colmatage s’effectue sur toute la largeur/hauteur du clapet.
Lorsque le clapet est posé à une distance de 25 mm d’une dalle/plafond, les panneaux rigides de laine de roche à haute densité peuvent être remplacés par de la laine de roche standard (≥ 40 kg/m³, par ex. Rockfit 431), compressée à 40% minimum.
Montage en paroi flexible - ossature métallique et mortier
Le produit a été testé et approuvé en :
- Ossature métallique et plaques de plâtre Type A (EN 520) ≥ 100 mm | EI 60 (ve i o) S - (300 Pa) | Mortier | Type de pose : encastré 0/180°. Distances minimales autorisées. | 200x100 mm ≤ CU-LT ≤ 800x600 mm
- Ossature métallique et plaques de plâtre Type F (EN 520) ≥ 100 mm | EI 90 (ve i o) S - (300 Pa) | Mortier | Type de pose : encastré 0/180°. Distances minimales autorisées. | 200x100 mm ≤ CU-LT ≤ 800x600 mm
Les clapets peuvent être installés à distance minimale d'une dalle/d'un plafond (≥ 25 mm), d’une paroi ou d’un autre clapet (≥ 50 mm).
Assemblez la paroi légère en prévoyant un chevêtre autour de la réservation.
Lors du montage d'un seul clapet coupe-feu à distance minimale du plafond, il n'est pas nécessaire, du point de vue de la protection incendie, de prévoir un chevêtre autour de la réservation.
Lors du montage d'un seul clapet coupe-feu à distance minimale du plafond, il n'est pas nécessaire, du point de vue de la protection incendie, de prévoir un chevêtre autour de la réservation.
Installez et fixez les clapets dans la réservation.
Colmatez la réservation du côté des distances minimales à l’aide de panneaux rigides de laine de roche (≥ 150 kg/m³) sur une profondeur de 400 mm (150 mm du côté mécanique de la paroi).
Ce colmatage s’effectue sur toute la largeur/hauteur du clapet.
Lorsque le clapet est posé à une distance de 25 mm d’une dalle/plafond, les panneaux rigides de laine de roche à haute densité peuvent être remplacés par de la laine de roche standard (≥ 40 kg/m³, par ex. Rockfit 431), compressée à 40% minimum.
Colmatez la réservation du côté des distances minimales à l’aide de panneaux rigides de laine de roche (≥ 150 kg/m³) sur une profondeur de 400 mm (150 mm du côté mécanique de la paroi).
Ce colmatage s’effectue sur toute la largeur/hauteur du clapet.
Lorsque le clapet est posé à une distance de 25 mm d’une dalle/plafond, les panneaux rigides de laine de roche à haute densité peuvent être remplacés par de la laine de roche standard (≥ 40 kg/m³, par ex. Rockfit 431), compressée à 40% minimum.
Montage en paroi de gaines techniques, calfeutrement au plâtre
Le produit a été testé et approuvé en :
- Ossature métallique et plaques de plâtre Type A (EN 520) ≥ 75 mm | EI 30 (ve i o) S - (500 Pa) | Plâtre | Type de pose : encastré 0/90/180/270°. Distances minimales autorisées. | 200x100 mm ≤ CU-LT ≤ 800x600 mm
Montage en paroi de gaines techniques, calfeutrement avec des panneaux de laine de roche rigides et enduit - EI 30 S
Le produit a été testé et approuvé en :
- Ossature métallique et plaques de plâtre Type F (EN 520) ≥ 75 mm | EI 30 (ve i o) S - (300 Pa) | Panneaux de laine de roche + enduit ≥ 140 kg/m³ | Type de pose : encastré 0/90/180/270°. Distances minimales autorisées. | 200x100 mm ≤ CU-LT ≤ 800x600 mm
Le colmatage s'effectue au moyen de 2 couches de panneaux de laine minérale d'épaisseur 50 mm. Les 2 couches sont posées à joints décalés et ces joints sont recouverts sur tout le contour d'enduit.
Montage en paroi de gaines techniques, calfeutrement avec des panneaux de laine de roche rigides et enduit - EI 60 S
Le produit a été testé et approuvé en :
- Ossature métallique et plaques de plâtre Type F (EN 520) ≥ 80 mm | EI 60 (ve i o) S - (300 Pa) | Panneaux de laine de roche + enduit ≥ 150 kg/m³ | Type de pose : encastré 0/180°. Distances minimales autorisées. | 200x100 mm ≤ CU-LT ≤ 800x600 mm
Le colmatage s'effectue au moyen de 2 couches de panneaux de laine minérale d'épaisseur 50 mm. Les 2 couches sont posées à joints décalés et ces joints sont recouverts sur tout le contour d'enduit.
Le clapet peut mais ne doit pas être centré dans la réservation (de dimensions maximales Ln x Hn clapet + 800 mm). Une distance maximale de 400 mm doit être respectée par rapport au bord de la réservation.
Au maximum 2 clapets coupe-feu peuvent être installés à une distance plus courte d'une dalle/d'un plafond (≥ 50 mm) ou d'un autre clapet (≥ 100 mm).
La réservation autour du clapet (en cas d'installation à une distance plus courte, également entre le clapet et la dalle/le plafond et entre max. 2 clapets coupe-feu) est étanchée à l'aide de 2 panneaux de laine de roche rigides de 50 mm. Ces panneaux doivent être posés a joints décalés et ces joints sont recouverts sur tout le contour d’enduit.
Montage en gaine technique (contre cloison) flexible avec bloc d'installation IFW
Le produit a été testé et approuvé en :
- Ossature métallique et plaques de plâtre Type F (EN 520) ≥ 90 mm | EI 90 (ve i o) S - (300 Pa) | Bloc d'installation IFW | Type de pose : encastré 0/90/180/270°. Distances minimales autorisées. | 200x100 mm ≤ CU-LT ≤ 800x600 mm
Montage en paroi CLT avec bloc d'installation IFW
Le produit a été testé et approuvé en :
- Bois lamellé-croisé ≥ 100 mm | EI 90 (ve i o) S - (300 Pa) | Bloc d'installation IFW | Type de pose : encastré 0/90/180/270°. Distances minimales autorisées. | 200x100 mm ≤ CU-LT ≤ 800x600 mm
Montage en paroi CLT, calfeutrement avec des panneaux de laine de roche enduits d'un enduit dur
Le produit a été testé et approuvé en :
- Bois lamellé-croisé ≥ 100 mm | EI 60 (ve i o) S - (300 Pa) | Panneaux de laine de roche + enduit ≥ 150 kg/m³ | 200x100 mm ≤ CU-LT ≤ 800x600 mm
Montage en paroi flexible et massive, calfeutrement avec des panneaux de laine de roche rigides et enduit
Le produit a été testé et approuvé en :
- Béton cellulaire ≥ 100 mm | EI 120 (ve i o) S - (300 Pa) | Panneaux de laine de roche + enduit ≥ 140 kg/m³ + enduit sur tunnel | Type de pose : encastré 0/90/180/270°. Distances minimales autorisées. | 200x100 mm ≤ CU-LT ≤ 800x600 mm
- Béton cellulaire ≥ 100 mm | EI 90 (ve i o) S - (300 Pa) | Panneaux de laine de roche + enduit ≥ 140 kg/m³ | Type de pose : encastré 0/90/180/270°. Distances minimales autorisées. | 200x100 mm ≤ CU-LT ≤ 800x600 mm
- Ossature métallique et plaques de plâtre Type A (EN 520) ≥ 100 mm | EI 60 (ve i o) S - (300 Pa) | Panneaux de laine de roche + enduit ≥ 140 kg/m³ | Type de pose : encastré 0/90/180/270°. Distances minimales autorisées. | 200x100 mm ≤ CU-LT ≤ 800x600 mm
- Ossature métallique et plaques de plâtre Type F (EN 520) ≥ 100 mm | EI 120 (ve i o) S - (300 Pa) | Panneaux de laine de roche + enduit ≥ 140 kg/m³ + enduit sur tunnel | Type de pose : encastré 0/90/180/270°. Distances minimales autorisées. | 200x100 mm ≤ CU-LT ≤ 800x600 mm
- Ossature métallique et plaques de plâtre Type F (EN 520) ≥ 100 mm | EI 90 (ve i o) S - (300 Pa) | Panneaux de laine de roche + enduit ≥ 140 kg/m³ | Type de pose : encastré 0/90/180/270°. Distances minimales autorisées. | 200x100 mm ≤ CU-LT ≤ 800x600 mm
Pour une paroi flexible, prévoyez un chevêtre autour de la réservation. Exception : pour la résistance au feu EI60S et si colmatage avec des panneaux de laine de roche de type Promastop ou Hilti, il n'est pas nécessaire, du point de vue de la protection incendie, de prévoir un chevêtre.
Le colmatage s'effectue au moyen de 2 couches de panneaux de laine minérale d'épaisseur 50 mm recouverte d'enduit coupe-feu sur une face (type PROMASTOP-CB 50 / PROMASTOP-CB/CC 50 / HILTI CFS-CT B / Mulcol Multimastic FB1 / PYRO-SAFE® FLAMMOTECT-A).
EI120S uniquement possible avec du matériel Hilti ou Promat.
EI120S uniquement possible avec du matériel Hilti ou Promat.
Les 2 couches sont posées à joints décalés et ces joints sont recouverts sur tout le contour du panneau d'enduit de type PROMASTOP-CC / HILTI CFS-S-ACR / Mulcol Multimastic SP / PYRO-SAFE® FLAMMOTECT-A.
Pour EI 120 S, le tunnel du clapet doit être recouvert d'un couche (> 1 mm) d'enduit (type PROMASTOP-CC / HILTI CFS-CT) des deux côtés de la paroi.
Appliquer également ce couche d'enduit pour EI 60 S si aucun chevêtre n'a été prévu autour de la réservation.
Appliquer également ce couche d'enduit pour EI 60 S si aucun chevêtre n'a été prévu autour de la réservation.
Le clapet peut mais ne doit pas être centré dans la réservation (de dimensions maximales clapet + 600 mm). Une distance maximale de 400 mm doit être respectée par rapport au bord de la réservation.
Les clapets peuvent être installés à distance minimale d'une dalle/d'un plafond (≥ 25 mm), d’une paroi ou d’un autre clapet (≥ 50 mm).
Assemblez la paroi légère en prévoyant un chevêtre autour de la réservation.
Lors du montage d'un seul clapet coupe-feu à distance minimale du plafond, il n'est pas nécessaire, du point de vue de protection incendie, de prévoir un chevêtre autour du clapet coupe-feu en cas de résistance au feu EI60S souhaitée.
Lors du montage d'un seul clapet coupe-feu à distance minimale du plafond, il n'est pas nécessaire, du point de vue de protection incendie, de prévoir un chevêtre autour du clapet coupe-feu en cas de résistance au feu EI60S souhaitée.
Installez et fixez les clapets dans la réservation.
Colmatez la réservation du côté des distances minimales à l’aide de panneaux rigides de laine de roche (≥ 150 kg/m³) sur une profondeur de 400 mm (150 mm du côté mécanique de la paroi).
Ce colmatage s’effectue sur toute la largeur/hauteur du clapet.
Lorsque le clapet est posé à une distance de 25 mm d’une dalle/plafond, les panneaux rigides de laine de roche à haute densité peuvent être remplacés par de la laine de roche standard (≥ 40 kg/m³, par ex. Rockfit 431), compressée à 40% minimum.
Colmatez la réservation du côté des distances minimales à l’aide de panneaux rigides de laine de roche (≥ 150 kg/m³) sur une profondeur de 400 mm (150 mm du côté mécanique de la paroi).
Ce colmatage s’effectue sur toute la largeur/hauteur du clapet.
Lorsque le clapet est posé à une distance de 25 mm d’une dalle/plafond, les panneaux rigides de laine de roche à haute densité peuvent être remplacés par de la laine de roche standard (≥ 40 kg/m³, par ex. Rockfit 431), compressée à 40% minimum.
Montage en dalle massive, calfeutrement avec des panneaux de laine de roche rigides et enduit
Le produit a été testé et approuvé en :
- Béton cellulaire ≥ 150 mm | EI 120 (ho i o) S - (300 Pa) | Panneaux de laine de roche + enduit ≥ 140 kg/m³ + enduit sur tunnel | Type de pose : encastré 0/90/180/270°. Distances minimales autorisées. | 200x100 mm ≤ CU-LT ≤ 800x600 mm
- Béton cellulaire ≥ 150 mm | EI 90 (ho i o) S - (300 Pa) | Panneaux de laine de roche + enduit ≥ 140 kg/m³ | Type de pose : encastré 0/90/180/270°. Distances minimales autorisées. | 200x100 mm ≤ CU-LT ≤ 800x600 mm
Le colmatage s'effectue au moyen de 2 couches de panneaux de laine minérale d'épaisseur 50 mm recouverte d'enduit coupe-feu sur une face (type PROMASTOP-CB 50 / PROMASTOP-CB/CC 50 / HILTI CFS-CT B).
Les 2 couches sont posées à joints décalés et ces joints sont recouverts sur tout le contour du panneau d'enduit de type PROMASTOP-CC / HILTI CFS-S-ACR.
Pour EI 120 S, le tunnel du clapet doit être recouvert d'un couche (> 1 mm) d'enduit (type PROMASTOP-CC / HILTI CFS-CT) des deux côtés de la dalle.
(seulement pour 120 minutes)
(seulement pour 120 minutes)
Pose déportée de la paroi, calfeutrement et isolation avec des panneaux de laine de roche rigides et enduit
Le produit a été testé et approuvé en :
- Béton cellulaire ≥ 100 mm | EI 60 (ve i o) S - (300 Pa) | Gaine galvanisé + panneaux de laine de roche + enduit ≥ 140 kg/m³ 1x60 mm + bloc d'installation IFW | Type de pose : pose déportée, 0/180°. Distances minimales autorisées. | 200x100 mm ≤ CU-LT ≤ 800x600 mm
- Béton cellulaire ≥ 100 mm | EI 90 (ve i o) S - (300 Pa) | Gaine galvanisé + panneaux de laine de roche + enduit ≥ 140 kg/m³ 1x80 mm + bloc d'installation IFW | Type de pose : pose déportée, 0/180°. Distances minimales autorisées. | 200x100 mm ≤ CU-LT ≤ 800x600 mm
- Béton cellulaire ≥ 100 mm | EI 90 (ve i o) S - (300 Pa) | Gaine galvanisé + panneaux de laine de roche + enduit ≥ 140 kg/m³ 2x50 mm + bloc d'installation IFW | Type de pose : pose déportée, 0/180°. Distances minimales autorisées. | 200x100 mm ≤ CU-LT ≤ 800x600 mm
- Ossature métallique et plaques de plâtre Type A (EN 520) ≥ 100 mm | EI 60 (ve i o) S - (300 Pa) | Gaine galvanisé + panneaux de laine de roche + enduit ≥ 140 kg/m³ 1x60 mm + bloc d'installation IFW | Type de pose : pose déportée, 0/180°. Distances minimales autorisées. | 200x100 mm ≤ CU-LT ≤ 800x600 mm
- Ossature métallique et plaques de plâtre Type A (EN 520) ≥ 100 mm | EI 60 (ve i o) S - (300 Pa) | Gaine galvanisé + panneaux de laine de roche + enduit ≥ 140 kg/m³ 2x50 mm + bloc d'installation IFW | Type de pose : pose déportée, 0/180°. Distances minimales autorisées. | 200x100 mm ≤ CU-LT ≤ 800x600 mm
- Ossature métallique et plaques de plâtre Type F (EN 520) ≥ 100 mm | EI 90 (ve i o) S - (300 Pa) | Gaine galvanisé + panneaux de laine de roche + enduit ≥ 140 kg/m³ 2x50 mm + bloc d'installation IFW | Type de pose : pose déportée, 0/180°. Distances minimales autorisées. | 200x100 mm ≤ CU-LT ≤ 800x600 mm
Pour un classement EI60S : les panneaux de laine de roche pré-enduit de type Promastop CB60 ou CB-CC50 peuvent être remplacés par un type similaire de panneau de laine de roche présentant au moins la même classe de réaction au feu, la même densité et la même épaisseur (testé selon EN 1366-3).
Une réservation de dimensions maximales « A » est réalisée au travers de la paroi. Pour une cloison légère, prévoir l’assemblage de la paroi selon «Montage en paroi flexible et massive - calfeutrement panneaux de laine de roche coupe-feu» ci-avant.
Le clapet est pourvu du kit IFW et monté déporté sur une gaine traversante en tôle d’acier galvanisé. Un supportage est mis en oeuvre au pas de 1500 mm ainsi qu’un supportage complémentaire au niveau de la jonction entre la gaine et le clapet.
Les suspentes sont composées de tiges filetées « C » et de rails de supportage « D ». Une distance d’environ 25 mm est respectée entre les tiges filetées et les faces verticales du caisson en laine de roche « B ».
Les suspentes sont composées de tiges filetées « C » et de rails de supportage « D ». Une distance d’environ 25 mm est respectée entre les tiges filetées et les faces verticales du caisson en laine de roche « B ».
La réservation autour de la gaine dans la paroi est remplie par une épaisseur de panneaux de laine de roche de type Promastop CB(/CC) / Hilti CFS-CT B « G » revêtus sur les chants d’enduit PROMASTOP-CC / HILTI CFS-S ACR permettant leur fixation.
La gaine traversante est recouverte de panneaux de laine de roche « G » revêtus sur une face d’enduit coupe-feu pour adhérer à la gaine et fixés à la gaine par vis et rondelles « E ».
Le corps du clapet est également ainsi protégé sur une longueur de 150 mm. Une réservation est opérée dans le panneau de laine de roche à hauteur du mécanisme afin de garantir l’accès à celui-ci.
Les jonctions entre panneaux, entre panneaux et paroi, ainsi que les vis et les rondelles sont enduits par un coating de type PROMASTOP-CC / HILTI CFS-S ACR.
Le corps du clapet est également ainsi protégé sur une longueur de 150 mm. Une réservation est opérée dans le panneau de laine de roche à hauteur du mécanisme afin de garantir l’accès à celui-ci.
Les jonctions entre panneaux, entre panneaux et paroi, ainsi que les vis et les rondelles sont enduits par un coating de type PROMASTOP-CC / HILTI CFS-S ACR.
Un panneau de laine de roche supplémentaire de largeur « B » et de hauteur 100 mm, enduit de coating PROMASTOP-CC / HILTI CFS-S ACR, est posé à la jonction entre le caisson de laine de roche et le colmatage de la paroi.
Les clapets peuvent être installés à distance minimale d'une dalle/d'un plafond, d’une paroi ou d’un autre clapet.
Colmatez la réservation du côté des distances minimales à l’aide de panneaux rigides de laine de roche (≥ 150 kg/m³) sur une profondeur de 400 mm (150 mm du côté mécanique de la paroi).
Lorsque la distance entre le clapet et la paroi est supérieure à 75 mm, le colmatage de la réservation entre clapet et paroi est réalisé selon le classement pré-existant.
Lorsque la distance entre le clapet et la paroi est supérieure à 75 mm, le colmatage de la réservation entre clapet et paroi est réalisé selon le classement pré-existant.
Pose déportée de la paroi + GEOFLAM
Le produit a été testé et approuvé en :
- Béton cellulaire ≥ 100 mm | EI 120 (ve i o) S - (500 Pa) | Gaine galvanisé + GEOFLAM® F 45 mm + mortier | Type de pose : pose déportée, 0/180°. Distances minimales autorisées. | 200x100 mm ≤ CU-LT ≤ 800x600 mm
- Béton cellulaire ≥ 100 mm | EI 120 (ve i o) S - (500 Pa) | Gaine galvanisé + GEOFLAM® Light 35 mm + mortier | Type de pose : pose déportée, 0/180°. Distances minimales autorisées. | 200x100 mm ≤ CU-LT ≤ 800x600 mm
Le clapet est monté déporté sur une gaine traversante en tôle d’acier galvanisé. Un supportage est mis en oeuvre au pas de 1000 mm.
Les suspentes sont composées de tiges filetées « C » et de rails de supportage « D ». Une distance d’environ 25 mm est respectée entre les tiges filetées et les faces verticales du gaine « B ».
Les suspentes sont composées de tiges filetées « C » et de rails de supportage « D ». Une distance d’environ 25 mm est respectée entre les tiges filetées et les faces verticales du gaine « B ».
La réservation autour de la gaine dans la paroi est remplie par du mortier standard. La gaine traversante est recouvert de plaques de staff de référence GEOFLAM F d’épaisseur 45 mm ou GEOFLAM Light d’épaisseur 35 mm « G ».
Les plaques sont fixées entre elles autour de la gaine par colle et polochonnage « E ». Le corps du clapet est également ainsi protégé sur une longueur de 120 mm.
Les plaques sont fixées entre elles autour de la gaine par colle et polochonnage « E ». Le corps du clapet est également ainsi protégé sur une longueur de 120 mm.
La protection en staff GEOFLAM F s’arrête à 15 mm du mur. L’espace libre entre le mur et la protection en staff est comblé par bourrage de polochons (mélange de plâtre et de filasse).
Ce bourrage est également appliqué sur la jonction entre la gaine et le tunnel du clapet.
Ce bourrage est également appliqué sur la jonction entre la gaine et le tunnel du clapet.
Les tiges filetées sont protégées par ½ coquilles en staff Ø 90 mm et maintenues entre elles par colle et polochonnage.
La traverse est protégée par un profilé en « U » de protection en GEOFLAM 100 x 60 mm, collé à la sous-face du gaine par du plâtre pour collage de type GEOCOL (GEOSTAFF).
La traverse est protégée par un profilé en « U » de protection en GEOFLAM 100 x 60 mm, collé à la sous-face du gaine par du plâtre pour collage de type GEOCOL (GEOSTAFF).
Les clapets peuvent être installés à distance minimale d'une dalle/d'un plafond (≥ 25 mm), d’une paroi ou d’un autre clapet (≥ 50 mm).
Remarques générales
- L'installation doit être conforme au rapport de classement et à la notice technique.
- Orientation de l'axe: voir déclaration des performances.
- Évitez l’obstruction des gaines connectées.
- Installation du produit: toujours avec la lame fermée.
- Vérifiez le libre mouvement de la lame mobile.
- Respectez les distances de sécurité par rapport aux autres éléments constructifs. Le mécanisme de déclenchement doit également rester accessible : prévoyez pour cela un espace libre de 200 mm autour du boîtier.
- La classe d'étanchéité à l'air est maintenue si l'installation du clapet se fait conformément à la notice technique.
- Les clapets coupe-feu Rf-t sont toujours testés dans des châssis de supports standardisés conformément à la EN 1366-2. Les résultats obtenus sont valables pour tous les châssis de supports similaires qui ont une résistance au feu, une épaisseur et une densité similaire ou supérieure à celles du test.
- Si l'épaisseur du mur dépasse l'épaisseur minimale indiquée dans nos instructions d'installation, les conditions suivantes s'appliquent à la profondeur du joint : - Pour les parois flexibles et les parois en système de panneaux sandwich, le joint doit toujours être appliqué sur toute la profondeur de la paroi. - Pour les parois massives, les dalles massives et les parois en blocs de plâtre, la profondeur de calfeutrement minimale indiquée dans nos instructions de pose (souvent égale à l'épaisseur minimale de la paroi) est suffisante. Appliquer le joint à la hauteur du clapet (à partir de l'indication de la limite du mur).
- Lors de l'installation d'un clapet coupe-feu dans une paroi métallique flexible, certaines méthodes d'installation ne nécessitent pas la mise en place de profilés de renforcement autour de la réservation de la paroi du point de vue de la protection contre l'incendie (voir ci-dessous). Il convient de toujours suivre les instructions générales du fabricant de ces systèmes de parois lors de la construction de ce type de paroi.
- Le clapet doit être accessible pour inspection et entretien.
- Prévoyez au moins 2 contrôles visuels chaque année.